Для студентов МГТУ им. Н.Э.Баумана по предмету Детали машин (ДМ)ДМ 1572 - Привод цепного транспортера с двухступенчатым цилиндрическим редукторомДМ 1572 - Привод цепного транспортера с двухступенчатым цилиндрическим редуктором
4,90547171
2021-04-292024-09-03СтудИзба
Курсовая работа 15: ДМ 1572 - Привод цепного транспортера с двухступенчатым цилиндрическим редуктором вариант 1572
-64%
Описание
Чертеж PDF в формате A1, Нет РПЗ
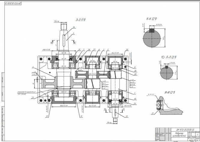
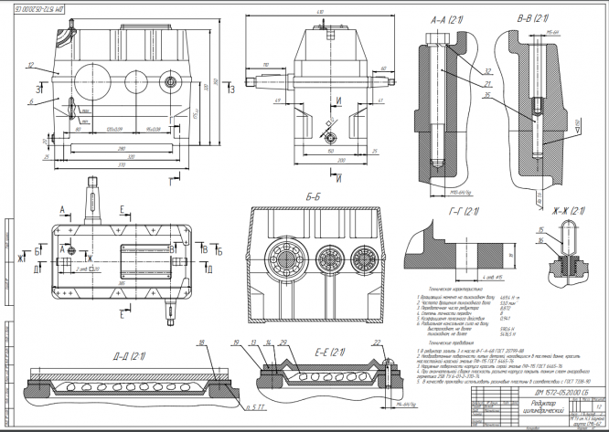
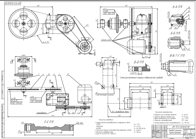
Курсовой проект ДМ 1572 (Привод цепного транспортера с цилиндрический редуктор)
![]()
Курсовой проект ДМ 1572 (Привод цепного транспортера с цилиндрический редуктор)



Характеристики курсовой работы
Предмет
Учебное заведение
Семестр
Номер задания
Вариант
Просмотров
484
Размер
1,51 Mb
Список файлов
Курсовой проект ДМ 1572 (Привод цепного транспортера с цилиндрический редуктор)
А1 - Общий вид.pdf
А1 - Приводной вал.pdf
А1 - Разрез редуктора.pdf
А1 - Редуктор.pdf
А2 - Муфта.pdf
А3 - Вал.pdf
Лист 1.PNG
Общая спецификация.pdf
Спецификация на муфту.pdf
Спецификация на приводной вал.pdf
Спецификация на редуктор.pdf
Шкив ведущий.pdf

Друзья, спасибо за доверие! Если вам понравилась работа – поставьте 5⭐ и напишите отзыв. Это поможет другим студентам, а мне даст силы делать ещё больше качественных материалов для вас 🔥