Дипломный проект Таскаев Н.А. 955 (1234721), страница 5
Текст из файла (страница 5)
Для всех помещений производственных и складских зданий должны быть установлены предельно допустимые нормы одновременно используемых и хранимых взрывопожароопасных веществ и материалов.
После окончания смены не допускается оставлять на рабочих местах сгораемые отходы производства, легковоспламеняющиеся, горючие жидкости и использованные обтирочные материалы.
Не использованные в течение рабочей смены легковоспламеняющиеся жидкости и горючие жидкости должны сдаваться в цеховые кладовые или храниться в металлических ящиках (шкафах). Использованные обтирочные материалы необходимо убирать в металлические ящики с плотно закрывающимися крышками и по окончании смены удалять из производственных помещений.
Ежедневно по окончании работы ответственный за пожарную безопасность подразделения обязан произвести осмотр закрываемых помещений. Перечень помещений и порядок осмотра устанавливается руководителем подразделения. Результаты осмотра должны быть записаны в специальную тетрадь (журнал) и скреплены подписями лиц, производивших осмотр.
Администрацией объекта должен быть установлен порядок замены промасленной спецодежды на чистую (периодичность стирки и обезжиривания).
Хранение промасленной спецодежды должно производиться в металлических шкафах в развешенном виде. Для проветривания дверцы шкафов должны иметь отверстия в верхней или нижней части.
Курение на территории объекта, в производственных, вспомогательных и административных зданиях допускается только в специально отведенных (по согласованию с пожарной охраной объекта) местах, оборудованных урнами и емкостями с водой. Места для курения должны быть обозначены знаком в соответствии с требованиями действующего стандарта.
В подвальных помещениях и цокольных этажах производственных и административных зданий запрещается применение и хранение взрывчатых веществ, баллонов с газами под давлением, целлулоида, кинопленки, пластмасс и других материалов, имеющих повышенную пожарную опасность.
Запрещается в чердачных и технических помещениях, а также технических этажах и подпольях хранение материальных ценностей.
Чердачные помещения, а также технические этажи и подвалы должны быть постоянно закрыты на замок. На дверях чердачных помещений и технических этажей должны быть надписи о месте хранения ключей. Окна чердачных помещений и технических этажей должны быть остеклены и закрыты.
Конструктивные решения противопожарных преград должны соответствовать проектной документации, утвержденной в установленном порядке.
Проверка состояния противопожарных преград должна проводиться ежегодно, при этом необходимо проверить исправность и герметичность противопожарных дверей, окон, ворот, люков, клапанов, тамбур - шлюзов; наличие зазоров и нарушений герметичности в узлах, стыках и местах пересечения преград различными коммуникациями; наличие и исправность автоматических устройств, предотвращающих распространение огня и продуктов горения по каналам, шахтам и трубопроводам в случае пожара.
Обнаруженные неисправности должны своевременно устраняться
Все выше перечисленные требования в Эксплуатационном вагонном депо выполняются и ведется постоянный надзор за их исполнением без нарушений.
2.2.3Строительная часть
Здание служебно-бытового корпуса:
Трех этажное здание, геометрические размеры 55м на 16 м, высота 10м.
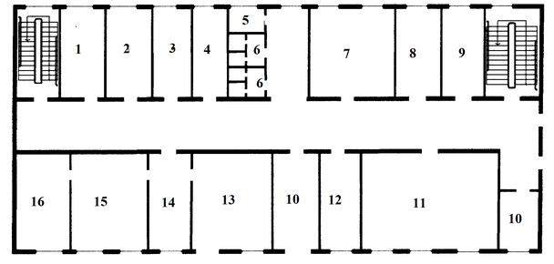
II степени огнестойкости. Имеется чердачное помещение. Схема служебно-бытового корпуса проиллюстрирована ниже, рисунках 2.2, 2.3, 2.4. В таблицах 2.6, 2.7 и 2.8 указаны наименования помещений.
Строительные материалы и конструкции:
-
фундамент– железобетонный, блочный;
-
стены – кирпичные;
-
перегородки–кирпичные;
-
перекрытия – железобетонные;
-
полы – железобетонные, кафельная плитка, линолеум;
-
кровля – кровельное железо по деревянной обрешетке;
-
проемы оконные – деревянные;
-
проемы дверные – деревянные, металлические;
-
внутренняя отделка – штукатурка, окраска стен, обои, пластиковые панели;
-
лестничные марши – железобетонные.
Рисунок 2.2 Схема служебно-бытового корпуса, первый этаж
Таблица 2.6
Наименование помещений первого этажа служебно-бытового корпуса
| № п/п | Наименование помещений |
| 1 | Кладовая |
| 2 | Охлаждающая камера |
| 3 | Гардероб |
| 4 | Душевая |
| 5 | Подсобное помещение |
| 6 | Машинное отделение |
| 7 | Вентиляционная камера |
| 8 | Бытовая комната |
| 9 | Раздевалка |
| 10 | Туалет |
| 11 | Пультовая |
| 12 | Парная |
| 13 | Электрощитовая |
| 14 | Преддушевая |
| 15 | Обеденный зал |
| 16 | Горячий цех |
| 17 | Холодный цех |
| 18 | Мясо-рыбный цех |
| 19 | Овощной цех |
| 20 | Мойка |
| 21 | Бельевая |
| 22 | Тепловой узел |
| 23 | Кабинет |
Рис. 2.3 Схема служебно-бытового корпуса, второй этаж
Таблица 2.7
Наименование помещений второго этажа служебно-бытового корпуса
| № п/п | Наименование помещений |
| 1 | Кабинет |
| 2 | Смотровой кабинет |
| 3 | Процедурный кабинет |
| 4 | Кабинет стерилизации |
| 5 | Склад |
| 6 | Вент.камера |
| 7 | Учебный класс |
| 8 | Душевая |
| 9 | Туалет |
| 10 | Гардероб |
| 11 | Раздевалка |
| 12 | Конференц. Зал |
| 13 | сушилка |
Рисунок 2.4 Схема служебно-бытового корпуса, третий этаж
Таблица 2.8
Наименование помещений третьего этажа служебно-бытового корпуса
| № п/п | Наименование помещений |
| 1 | Отдел кадров |
| 2 | Плановый отдел |
| 3 | Проф. Кабинет |
| 4 | Кабинет |
| 5 | Душевая |
| 6 | Туалет |
| 7 | Тех. Отдел |
| 8 | Технологическая группа |
| 9 | Кабинет АСУ |
| 10 | Отдел труда |
| 11 | Бухгалтерия |
| 12 | Главный бухгалтер |
| 13 | Главный инженер |
| 14 | Приемная |
| 15 | Кабинет начальника депо |
| 16 | Комната отдыха |
Пункт технического осмотра вагонов:
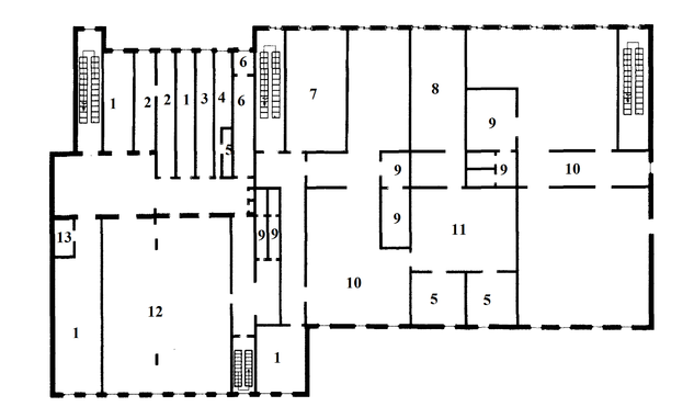
двух этажное здание, геометрические размеры 13м на 50 м, высота 6 м. II степени огнестойкости. Имеется чердачное и подвальное помещение. Схема пункта технического осмотра вагонов проиллюстрирована ниже на рисунках 2.5 и 2.6. В таблицах 2.9 и 2.10 указаны наименования помещений.
Строительные материалы и конструкции:
-
фундамент- железобетонные блоки;
-
стены – кирпичные, оштукатуренные;
-
перегородки–кирпичные;
-
перекрытия – железобетонные плиты;
-
полы – железобетонные;
-
кровля – шифер по деревянной обрешетке;
-
проемы оконные – деревянные;
-
проемы дверные – деревянные, металлические;
-
внутренняя отделка – штукатурка, окраска стен, обои;
-
лестничные марши – железобетонные.
Рисунок 2.5 Схема пункта технического осмотра вагонов, первый этаж
Таблица 2.9
Наименование помещений первого этажа пункта технического осмотра
| № п/п | Наименование помещений |
| 1 | Элеваторный узел |
| 2 | Кладовая |
| 3 | Мастерская |
| 4 | Кабинет |
| 5 | Комната приема пищи |
| 6 | Учебный класс |
| 7 | Раздевалка |
| 8 | Электрощитовая |
| 9 | Туалет |
| 10 | Душевая |
| 11 | Сауна |
| 12 | Бытовая |
| 13 | Сушилка |














