Trebovania_k_oformleniyu_VKR_2016ispravl ennoe (1233304), страница 7
Текст из файла (страница 7)
Для листов основных комплектов рабочих чертежей,
графических документов проектной документации
и графических документов по инженерным изысканиям
Примечание. Для графических документов по инженерным изысканиям запись "Н. контр." ("Нормоконтроль") в основной надписи допускается не выполнять.
Форма 4
Для чертежей строительных изделий (первый лист)
Форма 5
Для эскизных чертежей общих видов нетиповых изделий,
всех видов текстовых документов (первый или заглавный лист)
Примечание. Основную надпись по форме 5 допускается использовать для графических документов по инженерным изысканиям, не используемых в проектировании в качестве графической основы.
Форма 6
Для чертежей строительных изделий, эскизных чертежей общих видов нетиповых изделий и всех видов текстовых документов (последующие листы)
Примечание. Основную надпись по форме 6 допускается использовать для последующих листов графических документов по инженерным изысканиям, не используемых в проектировании в качестве графической основы.
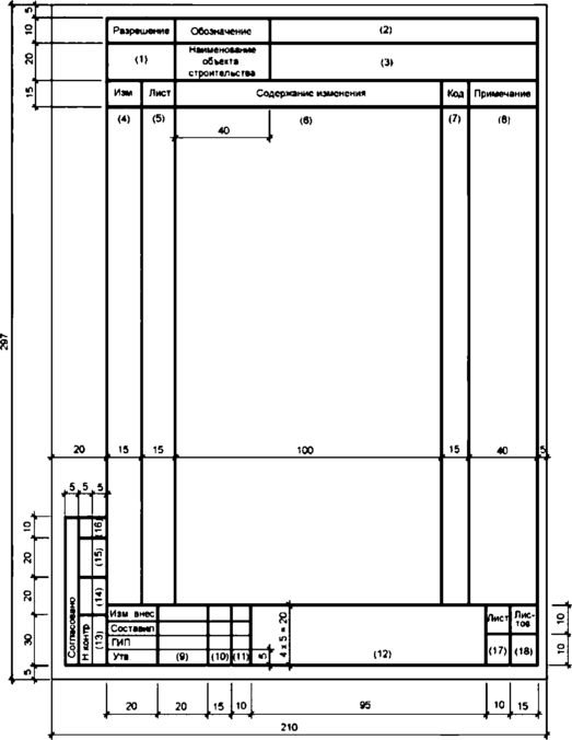
В графах основной надписи и дополнительных графах к ней (номера граф указаны в скобках) приводят:
- в графе 1 - обозначение документа, в том числе текстового или графического документа раздела, подраздела проектной документации, основного комплекта рабочих чертежей, чертежа изделия и т.п.;
- в графе 2 - наименование предприятия и, при необходимости, его части (комплекса), жилищно-гражданского комплекса или другого объекта строительства, в состав которого входит здание (сооружение), или наименование микрорайона;
- в графе 3 - наименование здания (сооружения) и, при необходимости, вид строительства (реконструкция, техническое перевооружение, капитальный ремонт);
- в графе 4 - наименование изображений, помещенных на данном листе, в соответствии с их наименованием на чертеже. Если на листе помещено одно изображение, допускается его наименование приводить только в графе 4.
Наименования спецификаций и других таблиц, а также текстовых указаний, относящихся к изображениям, в графе 4 не указывают (кроме случаев, когда спецификации или таблицы выполнены на отдельных листах).
На листе (листах) общих данных по рабочим чертежам в графе 4 записывают "Общие данные".
В случае, предусмотренном в 5.2.3, в графе 4 приводят наименование документа или нетипового изделия;
- в графе 5 - наименование изделия и/или наименование документа;
- в графе 6 - условное обозначение вида документации: П - для проектной документации, Р - для рабочей документации.
Для других видов документации графу не заполняют или приводят условные обозначения, установленные в стандартах организации;
- в графе 7 - порядковый номер листа документа. На документах, состоящих из одного листа, графу не заполняют;
- в графе 8 - общее количество листов документа. Графу заполняют только на первом листе;
- в графе 9 - наименование или различительный индекс организации, разработавшей документ;
- в графе 10 - характер работы, выполняемой лицом, подписывающим документ в соответствии с формами 3 - 5. В свободных строках по усмотрению проектной организации приводят должности специалистов и руководителей, ответственных за разработку и проверку документа. В строке под записью "Разработал" вместо должности допускается приводить запись "Проверил".
Подписи лица, разработавшего данный документ, и нормоконтролера являются обязательными.
В нижней строке приводится должность лица, утвердившего документ, например главного инженера (архитектора) проекта, начальника отдела или другого ответственного за данный документ (лист) должностного лица.
Подписи лица, ответственного за подготовку проектной или рабочей документации (главного инженера (архитектора) проекта), являются обязательными на листах общих данных по рабочим чертежам, наиболее значимых листах графической части проектной документации и рабочих чертежей;
- в графах 11 - 13 - фамилии и подписи лиц, указанных в графе 10, и дату подписания.
Подписи других должностных лиц и согласующие подписи размещают на поле для подшивки листа;
- в графах 14 - 19 - сведения об изменениях, которые заполняют в соответствии с 7.3.21;
- в графе 20 - инвентарный номер подлинника;
- в графе 21 - подпись лица, принявшего подлинник на хранение, и дату приемки;
- в графе 22 - инвентарный номер подлинника документа, взамен которого выпущен новый подлинник;
- в графе 23 - обозначение материала детали (графу заполняют только на чертежах деталей);
- в графе 24 - массу изделия, изображенного на чертеже, в килограммах без указания единицы массы. Массу изделия в других единицах массы приводят с указанием единицы массы.
Пример - 2,4 т;
- в графе 25 - масштаб (проставляют в соответствии с ГОСТ 2.302);
- в графе 26 - обозначение формата листа по ГОСТ 2.301. Для электронного документа указывают формат листа, на котором изображение будет соответствовать установленному масштабу;
- в графе 27 - краткое наименование организации-заказчика.
Примечания
1. В графах 13, 19, 21 при указании календарной даты на бумажном носителе год указывают двумя последними цифрами, например 06.02.12.
2. Графу 27, указанную штриховой линией, вводят при необходимости.
3. Графы "Согласовано" (10 - 13), расположенные на поле для подшивки, допускается приводить только на тех листах, где это необходимо. При необходимости их повторяют.
4. Допускается, при необходимости, изменять расположение и размеры дополнительных граф, размещаемых на поле для подшивки, в соответствии с ГОСТ 2.004.
Приложение И
(обязательное)
РАСПОЛОЖЕНИЕ ОСНОВНОЙ НАДПИСИ, ДОПОЛНИТЕЛЬНЫХ ГРАФ
К НЕЙ И РАЗМЕРЫ РАМОК НА ЛИСТАХ
Примечания
1. В скобках указан допускаемый размер нижней рамки.
2. Графу, указанную штриховой линией, вводят при необходимости.
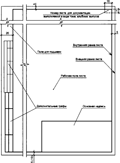
Рисунок И.1. Расположение основной надписи,
дополнительных граф и размеры рамок
Рисунок И.2. Допускаемое расположение основной надписи
на листе формата А4
Приложение К
(обязательное)
СПЕЦИФИКАЦИИ
Форма 7
Спецификация
Форма 8
Групповая спецификация
К.1. В спецификациях указывают:
- в графе "Поз." - позиции (марки) элементов конструкций, установок;
- в графе "Обозначение" - обозначение основных документов на записываемые в спецификацию элементы конструкций, оборудование, изделия или стандартов (технических условий) на них;
- в графе "Наименование" - наименование элементов конструкций, оборудования, изделий, материалов и их обозначения (марки), а также, при необходимости, технические характеристики оборудования и изделий. Допускается на группу одноименных элементов указывать наименование один раз и подчеркивать его.
В спецификацию записывают материалы, непосредственно входящие в специфицируемую конструкцию, изделие и т.п.
В спецификации, выполненной в электронном виде, горизонтальную черту, входящую в обозначение материалов (проката, труб и т.п.), допускается заменять на косую черту (/);
- в графе "Кол." формы 7 - количество элементов.
В графе "Кол." формы 8 - вместо многоточия записывают "по схеме", "на этаж" и т.п., а ниже - порядковые номера схем расположения или этажей;
- в графе "Масса ед., кг" - массу в килограммах. Допускается приводить массу в тоннах, но с указанием единицы массы;
- в графе "Примечание" - дополнительные сведения, например, единицу массы.
К.2. Размеры граф спецификации по усмотрению разработчика, при необходимости, могут быть изменены.
К.3. При заполнении спецификаций автоматизированным способом линии, разграничивающие горизонтальные строки, допускается не проводить.
Приложение Л
(рекомендуемое)
РАЗРЕШЕНИЕ НА ВНЕСЕНИЕ ИЗМЕНЕНИЙ
Форма 9
Разрешение на внесение изменений (первый лист)
Форма 9а
Разрешение на внесение изменений (последующие листы)
Л.1. В графах разрешения указывают:
- в графе 1 - обозначение разрешения, состоящее из порядкового номера разрешения по книге регистрации разрешений по ГОСТ Р 21.1003 и через разделительный знак (дефис, наклонную черту и т.п.) - двух последних цифр года.
Пример - 15-12; 15/12;
- в графе 2 - обозначение документа, в который вносят изменение;
- в графе 3 - наименование объекта строительства;
- в графе 4 - очередной порядковый номер, присваиваемый изменениям, которые вносят в документ по одному разрешению. Его указывают для всего документа независимо от того, на скольких листах он выполнен. Порядковые номера изменений обозначают арабскими цифрами;
- в графе 5 - номера листов документа, в которые вносят изменения;
- в графе 6 - содержание изменения в виде текстового описания и/или графического изображения;
- в графе 7 - код причины изменения в соответствии с таблицей Л.1.
Таблица Л.1
| Код причины изменения | Причины изменения |
| 1 | Введение усовершенствований |
| 2 | Изменение стандартов и норм |
| 3 | Дополнительные требования заказчика |
| 4 | Устранение ошибок |
| 5 | Другие причины |
Допускается код причины изменения не указывать. В этом случае графу прочеркивают;
- в графе 8 - дополнительные сведения;
- в графах 9 - 11 - фамилии лиц, подписывающих разрешение, их подписи и даты подписания;
- в графе 12 - наименование проектной организации и подразделения (отдела), составившего разрешение;
- в графах 13 - 16 - наименование соответствующих подразделений или организаций, должности и фамилии лиц, с которыми в установленном порядке согласовывают разрешение, их подписи и даты подписания, а также подпись нормоконтролера;
- в графе 17 - порядковый номер листа разрешения. Если разрешение состоит из одного листа, графу не заполняют;















