Trebovania_k_oformleniyu_VKR_2016ispravl ennoe (1233304), страница 10
Текст из файла (страница 10)
6.4.2 Спецификацию к схеме расположения сборных конструкций заполняют по разделам:
- элементы сборных конструкций;
- монолитные участки;
- стальные и другие изделия.
6.4.3 Наименование каждого раздела и подраздела спецификации указывают в виде заголовка в графе «Наименование» и подчеркивают.
6.4.4 Спецификацию монолитной конструкции, состоящей из нескольких элементов, на каждый из которых выполняют отдельную схему армирования, составляют по разделам на каждый элемент.
6.4.5 В наименования разделов монолитной конструкции включают марку элемента и через тире - количество элементов на монолитную конструкцию.
Примеры
1 Балки Бм1 - 2 шт.
2 Плита Пм1 - 1 шт.
7 Рабочая документация на строительные изделия
7.1 Общие требования
7.1.1 В состав рабочей документации на строительное изделие в общем случае включают спецификацию, сборочный чертеж, чертежи деталей и, при необходимости, технические условия.
Рабочие чертежи строительных изделий (далее - изделия) выполняют в соответствии с требованиями ГОСТ 2.109, ГОСТ 2.113 и с учетом дополнительных требований настоящего стандарта.
7.1.2 При выполнении группового рабочего документа на изделия в одну группу объединяют изделия одного наименования, единой конфигурации и имеющие общие конструктивные признаки.
7.1.3 Переменные размеры, не одинаковые для всех исполнений, охваченных одним изображением, наносят буквенными обозначениями, количество которых должно быть, как правило, не более трех.
7.1.4 При необходимости к чертежам изделий приводят схему испытания, расчетную схему или указывают их несущую способность.
7.1.5 На сборочном чертеже изделия или на его схематичном изображении указывают, при необходимости, места нанесения маркировочных надписей и изображения монтажных знаков, наносимых на изделие, в соответствии с ГОСТ 13015.
Пример нанесения монтажного знака приведен на рисунке 11.
0150A10B1DE05946
Рисунок 11
7.1.6 Монтажный знак для указания ориентации изделия в конструкции наносят в соответствии с рисунком 12.
0150A10B1DE05946
Рисунок 12
7.1.7 В технических требованиях на сборочном чертеже изделия приводят:
- требования к отделке поверхности изделия, в том числе, при необходимости, категорию бетонной поверхности изделия по ГОСТ 13015. Участки поверхности, требующие специальной обработки, отмечают, как показано на рисунке 13, с указанием размеров, определяющих положение этих участков;
0150A10B1DE05946
Рисунок 13
- другие требования к качеству изделия;
- ссылки на документы, содержащие технические требования, распространяющиеся на данное изделие, но не приведенные на чертеже.
7.1.8 В сборочные чертежи железобетонных изделий кроме видов, разрезов и сечений включают схемы армирования.
Схемы армирования железобетонных изделий выполняют применительно к 6.3.12 и 6.3.13.
7.1.9 На чертеже железобетонного изделия приводят ведомость расхода стали по форме 5 (приложение А). Пример заполнения ведомости расхода стали приведен на рисунке Н.1 (приложение Н).
7.1.10 Спецификации на изделия выполняют по форме 7 ГОСТ 21.101.
Групповые спецификации на изделия выполняют по форме 8 ГОСТ 21.101.
Запись сборочных единиц и материалов в соответствующих подразделах спецификации на изделие производят в соответствии с 6.4.2.
Примечания
1 В графе «Обозначение» спецификации на изделие приводят только обозначения изделий и, при необходимости, деталей в соответствии с 7.2.
2 В графе «Наименование» для деталей, на которые не выпущены чертежи, указывают наименование, материал и другие данные, необходимые для изготовления, в соответствии с указаниями к формам 7 и 8 в приложении А.
3 Графу «Масса ед., кг» для деталей, на которые выпущены чертежи, не заполняют.
7.1.11 Допускается совмещать спецификацию со сборочным чертежом независимо от формата листа.
7.1.12 На изделия (арматурные, закладные, соединительные и т.п.), состоящие только из деталей, составляют спецификацию по форме 7 (приложение А), при групповом способе выполнения чертежей таких изделий - по форме 8 (приложение А).
Пример выполнения группового чертежа на сетки приведен на рисунке П.1 (приложение П).
7.1.13 В составе рабочих чертежей железобетонных конструкций допускается выполнять рабочие чертежи металлических изделий, перечень которых приведен в приложении Р.
7.1.14 Каждый чертеж строительного изделия или выпуск чертежей строительных изделий при их комплектации в виде отдельного выпуска записывают в разделе «Прилагаемые документы» ведомости ссылочных и прилагаемых документов, входящей в общие данные по рабочим чертежам соответствующего основного комплекта.
Формы ведомостей, экспликаций и спецификаций и особенности их выполнения
Форма 1 - Ведомость отделки помещений
0150A10B1DE05946
А.1 В ведомости отделки помещений:
- количество граф определяется наличием элементов интерьера, подлежащих отделке;
- площади отделки помещений рассчитывают по соответствующим нормативным документам.
А.2 Размеры граф таблицы устанавливает разработчик.
Форма 2 - Экспликация помещений
0150A10B1DE05946
А.3 В экспликации помещений указывают:
- в графе «Номер помещения» - номер помещения. Для нежилых зданий (административных, бытовых, общественных, производственных), имеющих более одного этажа, нумерацию помещений рекомендуется указывать трехзначными или четырехзначными цифрами, состоящими из номера этажа и порядкового номера помещения в пределах этажа.
Пример - 101, 102, 1111, 1112
- в графе «Наименование» - наименование помещения (технологического участка);
- в графе «Площадь, м2 » - площадь помещения;
- в графе «Кат. помещения» - категорию помещения по взрывопожарной и пожарной опасности. Категорию указывают для всех типов помещений производственных зданий и для помещений общественных зданий, в которых предусматривается нахождение горючих веществ и материалов.
А.4 Размеры граф, при необходимости, могут быть изменены по усмотрению разработчика.
Форма 3 - Ведомость перемычек
0150A10B1DE05946
Форма 4 - Экспликация полов
0150A10B1DE05946
А.5 В экспликации полов указывают:
- в графе «Номер помещения» - номер или наименование помещения;
- в графе «Тип пола» - обозначение типа пола по рабочим чертежам;
- в графе «Данные элементов пола (наименование, толщина, основание и др.), мм» при применении типовой конструкции пола приводят только дополнительные данные.
Остальные графы экспликации полов заполняют в соответствии с их наименованием.
А.6 Размеры граф, при необходимости, могут быть изменены по усмотрению разработчика.
Форма 5 - Ведомость расхода стали
0150A10B1DE05946
А.7 В подзаголовках граф ведомости расхода стали указывают класс арматуры или марки стали проката и соответствующие стандарты или технические условия. Ниже указывают: для арматурной стали - диаметр, для профильной - условное обозначение профиля.
Форма 6 - Ведомость деталей
0150A10B1DE05946
Форма 7 - Спецификация на изделие, состоящее только из деталей
0150A10B1DE05946
Форма 8 - Групповая спецификация на изделие, состоящее только из деталей
0150A10B1DE05946
А.9 В спецификациях указывают:
- в графе «Поз.» - позиции (марки) элементов конструкций, установок;
- в графе «Марка изделия» - марку изделия. Допускается указывать наименование изделия;
- в графе «Поз. дет.» - номера позиций деталей в изделии;
- в графе «Наименование» - параметры, материал и другие данные, необходимые для изготовления деталей. Для записи ряда деталей, отличающихся размерами и другими данными, общую часть наименования этих изделий или материалов с обозначением указанного документа допускается записывать один раз в виде общего наименования (заголовка). Под общим наименованием записывают для каждого из указанных изделий и материалов только их параметры и размеры;
- в графе «Кол.» - количество деталей;
- в графах «Масса ед., кг», «Масса 1 дет., кг», «Масса изделия, кг» - массу в килограммах. Допускается приводить массу в тоннах, но с указанием единицы массы.
А.10 Размеры граф спецификаций, при необходимости, могут быть изменены по усмотрению разработчика.
Форма 9 - Ведомость отделки фасада
0150A10B1DE05946
А.11 В ведомости отделки фасада указывают:
- в графе «Поз. отделки» - позиционное обозначение типа отделки фасада;
- в графе «Наименование элемента фасада» - соответствующие наименованию графы данные;
- в графе «Наименование материала отделки» - наименование отделочного или лакокрасочного материала, его марку или тип по стандарту или ТУ и обозначение стандарта или ТУ;
- в графе «Наименование и номер эталона цвета или образец колера» - принятое по соответствующему стандарту или ТУ наименование цвета отделочного или лакокрасочного материала и его номер по картотеке цветовых эталонов. При отсутствии номера цвета по картотеке цветовых эталонов в стандартах ил и ТУ номер цвета в графе не проставляют;
- в графе «Примечание» - дополнительные данные, например, ссылку на альбом образцов колеров.
А.12 Размеры граф таблицы устанавливает разработчик.
Примеры выполнения планов зданий
0150A10B1DE05946
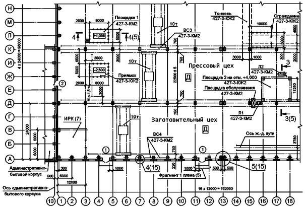
Рисунок Б.1 Пример выполнения плана одноэтажного производственного здания
0150A10B1DE05946
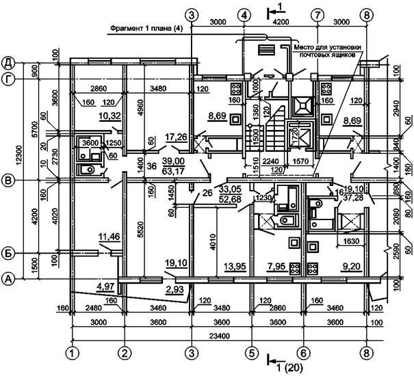
Рисунок Б.2 Пример выполнения плана этажа жилого дома
Примеры выполнения ведомостей и спецификаций элементов
0150A10B1DE05946
Примечание - Схема сечения может быть дополнена отметками низа перемычек и ориентацией расположения перемычек по отношению к координационным осям.
Рисунок В.1 Пример выполнения ведомости перемычек
| Поз. | Обозначение | Наименование | Кол. на этаж | Масса ед., кг | Примечание | |||||
| 1 | 2 | 3 | Всего | |||||||
| 1 | ГОСТ ... | 2ПБ19-3 | 16 | 8 | 4 | 28 | 81 | |||
| 2 | 5ПБ18-27 | 5 | 2 | 1 | 8 | 250 | ||||
| 3 | 8ПБ18-8 | 3 | 2 | 1 | 6 | 119 | ||||
Рисунок В.2 Пример выполнения спецификации элементов перемычек
| Поз. | Обозначение | Наименование | Кол. по фасадам | Масса ед., кг | Примечание | ||||||
| 1-10 | 10-1 | Л-А | А-Л | Всего | |||||||
| 1.436.3-16 | Окна | ||||||||||
| 1 | ОГД 18.12-2 | 10 | 9 | 19 | 1200 | ||||||
| 2 | ОГД 18.18-2 | 10 | 10 | 1800 | |||||||
| 3 | ОГД 18.18-2 | 10 | 13 | 9 | 13 | 45 | |||||
| 4 | ОГД 24.18-2 | 15 | 9 | 14 | 38 | 2400 | |||||
| 5 | ОГД 24.12-2 | 3 | 3 | ||||||||
| Жалюзийные решетки | |||||||||||
| 6 | 3453 - 1 - КЖ.И5 | РШ1 | 1 | 1 | 2400 | ||||||
| 7 | РШ2 | 1 | 1 | 5000 | |||||||
| Дверные блоки | |||||||||||
| 8 | ГОСТ ... | ДВГ21-15 | 4 | 2 | 6 | 2070 | |||||
| 9 | ДВГ24-15 | 1 | 1 | 2370 | |||||||
| 10 | ГОСТ ... | ДУ24-10 | 2 | 1 | 3 | ||||||
| 11 | ГОСТ ... | ДАО24-10ВЛ | 8 | 8 | |||||||
| 12 | ТУ ... | Ворота 3,63,6 | 2 | 2 | 3600 | ||||||
| Примечание - В графе «Примечание» приводят дополнительные данные, например высоту проема. | |||||||||||
Рисунок В.3 Пример выполнения спецификации элементов заполнения проемов















