1. Архитектурно-строительный раздел (испр.) (1232341), страница 3
Текст из файла (страница 3)
Здание имеет рамно-связевую конструктивную систему.
Конструктивная схема здания – наружные стены из монолитного железо –бетона толщиной 380мм и колонн сечением 400х400мм по осям 2,4,5,6 и монолитного перекрытия, опирающихся на несущие стены.
Рисунок 1.4 Конструктивная схема здания
1.1.7 Архитектурно-художественная характеристика фасадов.
Разработка архитектурного решения фасадов здания - завершающая и очень важная часть эскизного проектирования. Архитектура фасада выявляет художественные и конструктивные достоинства и недостатки здания, определяет его выразительность и цельность архитектурного образа. Поэтому при решении фасадов здания должны быть учтены основные положения теории архитектурной композиции:
а) тектоника здания;
б) приёмы и средства архитектурной композиции;
в) принцип единства и соподчинённости.
Должен быть разработан и представлен один наиболее выразительный (главный) фасад здания, отражающий назначение здания, его тектонику и объёмно-планировочное решение.
В проекте предлагается применить навесной вентилируемый фасад фирмы «KMEW» (Япония). В отделке применяются панели трех цветов: СА 1891 С, СА 1259 С, СА 1251 С. Он являются по своим физико-строительным параметрам наиболее эффективной, многослойной системой, имеющей ветровой и дождевой барьер. При правильном монтаже такие конструкции обеспечивают долговременную функциональную надежность зданий.
Рисунок 1.5 Фасад в осях 1-7
1.1.8 Составление эскизов планов и разрезов
Проектируемое пассажирское здание - трехэтажное, с высотой 1 и 2 этажей -3,6 м и третьего этажа -5,1м, с размерами в плане в осях 30,9 м х19,2м. За относительную отметку 1,250 принят уровень пола первого этажа, что соответствует абсолютной отметке 18,350 м.
Технические решения, принятые в рабочих чертежах, соответствуют требованиям экологических, санитарно - гигиенических, противопожарных и других норм, действующих на территории Российской Федерации, и обеспечивают безопасную для жизни и здоровья людей эксплуатацию объекта при соблюдении предусмотренных рабочими чертежами мероприятий.
Разрез здания выполняется на основе решения плана с учётом принятой конструктивной системы. Плоскость разреза должна проходить по наиболее характерным частям здания для полного представления его объёмно-планировочного и конструктивного решения.
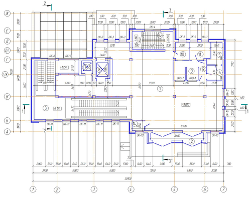
Рисунок 1.7 План 1го этажа
Рисунок 1.8 План 2го этажа
Рисунок 1.9 План 3го этажа
Рисунок 1.10 Разрез 1-1
1.2 Обоснование выбора конструктивных элементов здания
Выбрав на основе эскизного проектирования принципиальное решение элементов и конструкций задания, приступают к обоснованию и уточнению размеров и разработке отдельных деталей конструкций.
1.2.1 Фундаменты
Реконструкция здания заключалась в переустройстве ленточных фундаментов в плитный (устройство монолитной железобетонной плиты) В 90 годах при строительстве нулевого цикла, данное здание было запроектировано и построено на ленточных фундаментах, после чего строительство было «заморожено». В настоящее время в свези с геологическими изысканиями были обнаружены грунтовые воды на глубине 2,4м от дневной поверхности земли. В связи с этим было принято решение провести реконструкцию в переустройстве ленточных фундаментов на плитный.
Таким образом фундаменты под колонны и стены запроектированы из монолитной железобетонной плиты толщиной 1000мм и бетона В25, F150, W6 и арматуры класса АIII. Под фундаментной плитой выполнена подготовка из бетона В3,5 толщиной 100мм. Вода по отношению к бетону марки W6 не агрессивная. К арматуре железобетонных конструкций при периодическом смачивании вода слабоагрессивная, при постоянном смачивании неагрессивная.
Рисунок 1.10 Переустройство ленточных фундаментов в плитный
1 — усиливаемый ленточный фундамент;
2 — сплошная монолитная железобетонная плита;
3 — 3.1 Полы;
3.2 Стяжка из цем.-песчаного раствора;
3.3Пленка полиэтиленовая,
3.4 Плиты пенополистерольные,
3.5 Подстилающий слой из бетона,
3.6 Пескогравий, уплотненный.
4 – Монолитная стена
1.2.2 Наружные стены
Наружные стены пассажирского здания выполнены из монолитного бетона с утеплением плитами базальтового волокна. В отделке наружных стен фасадов по утеплителю применены навесные керамические панели и навесное остекление.
Конструкция наружной стены показаны на рисунке 1.11.
Рисунок 1.11 Конструкция наружной стены
Материалы и размеры слоев стен, а так же другие характеристики приведены в таблице 1.7.
Таблица 1.10 – Характеристики элементов стен
| Наименование материала | Толщина слоя δ, м | Средний объемный вес γ, кг/м3 | Коэффициент теплопровод-ности λ, Вт/м·°С |
| 1. Штукатурка из цементно-песчаного раствора | 0,020 | 1800 | 0,93 |
| 2. Монолитная ж/б стена | 0,38 | - | 0,44 |
| 3. Теплоизоляционные плиты БАЗОЛИТ ВЕНТИ-В | 0,10 | 125 | 0,046 |
| 4. Воздушный зазор | 0,04 | - | - |
| 5. Фасадные плиты с керамическим покрытием «KMEW» | 0,08 | - | - |
1.2.2.1 Теплотехнический расчет стены
Определим базовое значение требуемого сопротивления теплопередаче Roтр исходя из нормативных требований к приведенному сопротивлению теплопередаче [17, п. 5.2] согласно формуле:
Roтр=a·ГСОП+b (1,1)
где а и b- коэффициенты, значения которых следует приниматься по данным [17, табл. 3] для соответствующих групп зданий.
Так для ограждающей конструкции вида- наружные стены с вентилируемым фасадом и типа здания –общественные а=0.0003;b=1.2
Определим градусо-сутки отопительного периода ГСОП, 0С·сут по формуле
ГСОП=(tв-tот)zот (1,2)
где tв-расчетная средняя температура внутреннего воздуха здания,°C
tв=20°C
tот-средняя температура наружного воздуха,°C принимаемые по [1, табл. 1]
tов=-4.3 °С
zот - продолжительность, сут, отопительного периода принимаемые по [1, табл. 1]
zот=198 сут.
Тогда; ГСОП=(20-(-4.3))198=4811.4 °С·сут
По формуле в [17, табл. 3] определяем базовое значение требуемого сопротивления теплопередачи Roтр (м2·°С/Вт).
Roнорм=0.0003·4811.4+1.2=2.64м2°С/Вт (1.3)
Поскольку произведен расчет удельного расхода тепловой энергии на отопление здания то сопротивление теплопередаче Roнорм может быть меньше нормируемого Roтр,на величину mp
Roнорм=Roтр0.63
Roнорм=1.66м2·°С/Вт
Поскольку населенный пункт Владивосток относится к зоне влажности - влажной, при этом влажностный режим помещения - нормальный, то в соответствии с таблицей [17, табл. 2] теплотехнические характеристики материалов ограждающих конструкций будут приняты, как для условий эксплуатации Б.
Условное сопротивление теплопередаче R0усл, (м2°С/Вт) определим по формуле:
R0усл=1/αint+δn/λn+1/αext (1,4)
где αint - коэффициент теплоотдачи внутренней поверхности ограждающих конструкций, Вт/(м2°С), принимаемый по [17, табл. 4]
αint=8.7 Вт/(м2°С)
αext - коэффициент теплоотдачи наружной поверхности ограждающей конструкций для условий холодного периода, принимаемый по [1, табл. 6] αext=12 Вт/(м2°С) -согласно [17, табл. 6] для наружных стен с вентилируемым фасадом.
R0усл=1/8.7+0.02/0.81+0.38/2.04+0.1/0.039+1/12
R0усл=2.97м2°С/Вт
Приведенное сопротивление теплопередаче R0пр, (м2°С/Вт) определим по формуле:
R0пр=R0усл ·r (1,5)
r-коэффициент теплотехнической однородности ограждающей конструкции, учитывающий влияние стыков, откосов проемов, обрамляющих ребер, гибких связей и других теплопроводных включений
r=0.92
R0пр=2.97·0.92=2.73м2·°С/Вт
Вывод: величина приведённого сопротивления теплопередаче R0пр больше требуемого R0норм(2.73>1.66) следовательно представленная ограждающая конструкция соответствует требованиям сопротивлению теплопередачи.
1.2.3 Перекрытие
Монолитное балочное перекрытие имеет размеры в осях 30,9х16,42м. Опирание на стены монолитные железобетонные, и на колонны. Толщина плиты 200мм, балок 400х200мм. Материал принят: бетон класса В25, жесткость с понижающим коэффициентом 0.3 для учета ползучести бетона; арматура класса А400.
1.2.3.1 Теплотехнический расчет покрытия
Расчет производится аналогично пункту 1.2.2.1.
Конструкция покрытия показана на рисунке 1.12.
Рисунок 1.12 Сечение покрытия
Характеристики материалов конструкции приведены в таблице 1.11.
Таблица 1.11 – Характеристики элементов чердачного перекрытия
| Наименование материала | Толщина слоя, м | Плотность, кг/м3 | Коэффициент теплопроводности, Вт/(м·°С) |
| Монолитное жб перекрытие | 0,2 | 2500 | 2,04 |
| Пароизоляция ТехноНИКОЛЬ | - | 600 | 0,17 |
| Утеплитель - базалит ПТ-200 | 0,14 | 200 | 0,048 |
| Керамзитовый гравий | 0,1 | 390 | 0,12 |
| Цементно-песчаная стяжка | 0,04 | 1800 | 0,93 |
Требуемое сопротивление теплопередаче ограждающих конструкций покрытия














