ВКР Разработка ступенчатой технологии развески локомотивов (1231168), страница 4
Текст из файла (страница 4)
где Ψ - коэффициент сцепления.
КИСВ будет равен
. (2.10)
Выражение (4.17) определяет βк в зависимости от коэффициента конструкции локомотива К.
Разгруз некоторых колёсных пар под влиянием силы тяги F всегда сопровождается перегрузом других. В этом случае для перегруженных колёсных пар
и К меняют знаки, а βк становится больше единицы.
Для тепловозов типа 3о-3о в соответствии со схемой (рисунок 3.1 ,а) вертикальная составляющая Р3, создаваемая вращающим моментом якоря ТЭД на венце ведомого зубчатого колеса, определяется суммой моментов сил относительно оси колеса
(2.11)
где D - диаметр колеса по кругу катания.
Следовательно
(2.12)
Сила РЗ создаёт вращающий момент, приводящий в движение локомотив, и кроме того, разгружая колёсную пару, входит как составляющая в выражение для
.
Согласно схеме (рисунок 3.1 ,в) на ось колёсной пары и на пружинную подвеску ТЭД будут передаваться составляющие Рс реактивного момента Мр= Рз*г
(2.13)
Отсюда в соответствии с выражением (3.4)
(2.14)
а с учетом (4.19)
(2.15)
На раму тележки действует сила Рпр-Рс=Zр, которое равна
(2.16)
После подставки значения в выражения, то получим
(2.17)
Таким образом, силы
и Zр одинаковы по модулю, но направлены в разные стороны.
Давление колёсной пары на рельсы будет изменяться не только под влиянием сил и моментов, действующих на систему колёсная пара двигатель. Изменение давления колёсной пары на рельс зависит так же от сил, действующих на кузов тепловоза и рамы тележек.
Кузов грузовых тепловозов опирается на рамы тележек при помощи роликовых опор. Опоры расположены радиально относительно шкворня тележки и не позволяют поворачиваться рамам тележек относительно кузова в вертикальной плоскости. Это даёт возможность в данном расчёте считать системы кузов и рамы тележек неизменной и рассматривать их как одно твёрдое тело.
Под влиянием силы сопротивления состава 6F и силы тяги F, действующих со стороны каждой колёсной пары на рамы тележек, образуется момент 6F(H-D/2). Под влиянием этого момента, образованного силами Zр, кузов подвернётся вокруг некоторой горизонтальной поперечной оси. Это приведёт к частичной разгрузке рессор передней тележки и нагрузит рессоры задней тележки. При этом в рессорном подвешивании появятся реакции
и
, действующие на систему кузов-рама тележек (рисунок 4.11).
3 ОПИСАНИЕ ТРЕХСТУПЕНЧАТОЙ ТЕХНОЛОГИИ РАЗВЕСКИ
1.Первый этап: Расстановка оборудования на раме тепловоза.
Для выполнения первого этапа необходимо изготовить технологическую конструкцию, которая имитирует раму тележки по параметрам роликовых опорно - возвращающих боковых опор. На «технологической раме», под верхнюю плиту комбинированных опор кузова устанавливают датчики, для определения веса, приходящегося на каждую технологическую опору. По результатам регистрации веса выполняют корректировку расположения оборудования, балластируют вес (по необходимости) и определяют центр тяжести верхнего строения тепловоза.
Данную технологическую операцию необходимо выполнять при деповских видах ремонта (ТР-3, СР) и заводских (КР).
2.Второй этап технологии развески. Регулировка рессорного подвешивания.
Выполняется испытание, подбор и регулировка упругих комплектов резино - металлических опорно-возвращающих устройств и пружин буксовой ступени индивидуального рессорного подвешивания тепловозов 2ТЭ116 и (2,3)ТЭ10М, У. Подбор комплектов возвращающих устройств и пружин буксовой ступени выполняется, в процессе текущего (ТР-3) или среднего деповского (СР) ремонтов тепловоза, по критерию жесткости, путем установления одинаковой высоты комплектов под статической нормативной нагрузкой, используя регулировочные пластины. Технология подбора комбинированных резино - роликовых опорно-возвращающих устройств и пружин регламентируется правилами ремонта тепловозов.
Второй этап технологии развески обеспечивает контроль качественного рассредоточения оборудования на раме тепловоза.
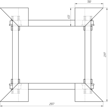
Рисунок 3.1 – Технологическая рама: вид спереди.
Рисунок 3.2. – Технологическая рама: вид сверху.
Технологическая рама представляет сварную конструкцию, имеющую в верхней части выступы под боковые опоры, в которых располагаются тензо- резисторные весо- измерительные датчики. В нижней части рамы расположены П-образные колесные подставки.
Контроль рассредоточения оборудования на раме тепловоза должно быть неотъемлемой частью технологического процесса развески.
Использование технологических рам в процессе ремонта тепловоза осу
ществляется следующим образом:
1. Производят сборку тепловоза после ремонта его деталей и узлов.
2. Подкатывают «технологические рамы» под раму тепловоза, фиксируют их положение.
3. Опускают раму тепловоза (соблюдая синхронность опускания) на датчики боковых опор «технологических рам».
4. Выполняют юстировку датчиков, обнуление результатов и корректировку масштабирования.
5. Выполняется «пуск» автоматической тензометрической системы измерения статической нагрузки на каждую боковую опору. По программному алгоритму выполняется регистрация веса, приходящегося на каждую боковую опору, левой и правой части тепловоза.
6. С учетом расположения оборудования на раме на раме тепловоза выполняется распределение балласта. После работ по балластировке следует повторить процесс оценки распределения нагрузки по боковым опорам «технологических рам». Удовлетворительное распределение нагрузки по боковым опорам (разница должна быть не более 1%), регистрируется в протоколе.
7. Кузов тепловоза с балластом поднимают, выкатывают «технологические рамы» и выполняют подкат рабочих тележек, в сборе с рессорным подвешиванием. Тепловоз в сборе передают в депо сдачи.
3. Третий этап: контроль развески на АПК «ВОЛНА».
Третьим этапом выполняется контроль развески на взвешивающем комплексе «ВОЛНА» (весовой определитель локомотивный нагрузки автоматизированный). Комплекс представляет силоизмерительные тензометрические датчики, вмонтированные в рельсах (патент № 2085417) на нивелированном участке пути. Возвышение одной рельсовой нити по отношению к другой не более 0,5 мм на длине 30 м. Алгоритм автоматического измерения выдает на монитор компьютера значение нагрузки от колес на рельсы, при перемещении локомотива со скоростью 5-10 км/ч по нивелированному пути. Достоинством АПК «ВОЛНА» является отсутствие привязки весо - измерительного устройства к базе тепловоза, минимальные погрешности и затраты на измерительное оборудование, высокая точность. Измере
ния выполняются в автоматическом режиме по разработанному алгоритму.
4 РАСЧЕТ РАЗВЕСКИ ПО ПРЕДЛАГАЕМОЙ ТЕХНОЛОГИИ
Применяемые в технологии устройства содержат тензорезистивные датчики веса, поэтому расчет сводится к определению их характеристик и параметров, а также подбору рабочей схемы оборудования.
4.1 Описание тензорезисторного датчика
Принцип действия тензоэлектрического преобразователя давления основан ни изменении электрического сопротивления проводника при его деформации. При изготовлении датчика традиционным способом – наклеиванием проволочных или полупроводниковых тензоэлементов элементов на бумажной или пленочной основе на мембрану собственная частота датчика составляет около 20 кГц. Очевидно, что такой способ изготовления тензодатчика для целей индицирования дизеля практически не приемлем по температурным условиям. Вместе с тем, тензодатчику присущи свои достоинства: простота усилителя сигнала, отсутствие проблем с определением постоянной составляющей, близкая к линейной характеристика преобразования и др. Благодаря этому тензодатчики широко применялись и применяются при испытании дизелей. Революционным этапом развития тензопреобразовательной техники следует считать получение гетероэпитаксиапьных слоев кремния на сапфире (КНС) в середине 60-х годов прошлого столетия .В скором времени после этого были освоены в серийном производстве датчики давления «Кристалл» [74], измерительные комплексы «Сапфир» и «Сапфир-22. Благодаря отсутствию р-п перехода, изолирующего тензорезисторы от подложки удалось в несколько раз повысить рабочую температуру преобразователей. Структуры КНС представляют собой тонкие (0,1 +5 мкм) слои монокристаллического кремния, выращенные на монокристаллическом лейкосапфире (А12Оз). Детально выполненные исследования показали, что в широком диапазоне температур 4...800К коэффициенты тензочувствительности таких преобразователей незначительно отличаются друг от друга. В нашей стране сегодня серийно выпускаются датчики и модули измерения давления на основе структуры КНС промышленной группой (ПГ)
«МИДА» (г. Ульяновск). Усилия разработчиков, направленные на снижение температурной зависимости выходного сигнала датчика позволили им освоить серийный выпуск модулей для измерения давления сред с температурой до 600°С.
Заслуживают внимания разработки компании «SmS-тензо», созданной для продвижения на рынок принципиально новых тензометрических изделий, изготовленных из редкоземельного полупроводника на основе моносульфида самария SmS (тензорезисторы, тензодатчики, барорезисторы, датчики давления и др.). Тензометрические датчики, изготовленные с применением SmS, отличаются рекордной чувствительностью, широким диапазоном рабочих температур, выходным сигналом высокой мощности и высокой радиационной стойкостью.
Привлекательность тензоэлектрических датчиков давления во многом
определяется простотой усиления сигнала. Современные конструкции датчиков построены на основе полного резистивного моста - моста Уитстона (рис. 14), что и определяет схемотехнику усилителей сигнала. Прежде чем рассмотреть типовые схемы усилителей, необходимо отметить, что применение тензоэлементов с высоким коэффициентом тензочувствительности, в принципе, позволяет отказаться от усилителя. Так, например, рассмотренная выше конструкция датчика «SmS-тензо». Так же в нее может входить часть полезной загрузки вагона, ниже которой нет смысла загружать вагон в виду малого коэффициента использования грузоподъемности вагона. обеспечивает выходной сигнал 0,8В при питании моста постоянным током с напряжением 12В. При более высоком напряжении выходной сигнал будет соответственно выше.
Основное уравнение моста имеет вид
(4.1)
Сбалансированному мосту (при отсутствии деформации мембраны) соответствует равенство:
(4.2)
Выходное напряжение при этом, как следует из уравнения (4.1), Uвых = 0. Повышение Uвых за счет увеличения напряжения питания моста возможно только в ограниченных пределах, определяемых максимальным током через тензорезисторы. Этот ток для полупроводниковых тензоэлементов, как правило, не должен превышать 3+5 мА. В связи с этим возрастает привлекательность датчиков с большими значениями сопротивления тензоэлементов. Характерные значения сопротивлений проволочных тензодатчиков невелики (100+200 Ом). Полупроводниковые имеют большие значения. Например, для датчика МИДА-ПИ-55 это сопротивление лежит в пределах 4+5 кОм, а датчики на основе моносульфида самария могут иметь сопротивление до 50 кОм.
Коэффициент тензочувствительности определяется отношением
=
(4.3)
где R - приращение сопротивления при удлинении проводника от начального значения l0 на l.
Так как сопротивление тензомоста изменяется, применение нестабилизированного источника тока недопустимо. Чем больше у, тем выше требования к источнику постоянного тока. На практике применяются схемы со стабильным током и напряжением. Для этих схем можно установить зависимость от R. На рис. 4.4 показаны схемы с питанием от источника постоянного напряжения и источника постоянного тока. Датчик представлен мостом с четырьмя переменными сопротивлениями одного номинала, что соответствует рассмотренным выше конструкциям датчиков с круглой мембраной. При этом для работоспособности преобразователя либо деформация в соседних плечах моста должна иметь разный знак либо, в случае применения полупроводниковых элементов, они должны иметь разную проводимость. В любом случае увеличение давления на мембрану приводит к увеличению сопротивления одной пары элементов и уменьшению - другой.















