архитектура(исправлено) (1222077), страница 3
Текст из файла (страница 3)
Здание общежития построено по типовому проекту 164-80-4.
Конструктивная схема здания жилой части представляет собой систему несущих и связующих стен. Несущими являются продольные стены, конструктивный остов представлен на рис. 1.2.
Рисунок 1.2. Конструктивный остов здания
1.1.5.2 Разработка эскизов планов и разрезов
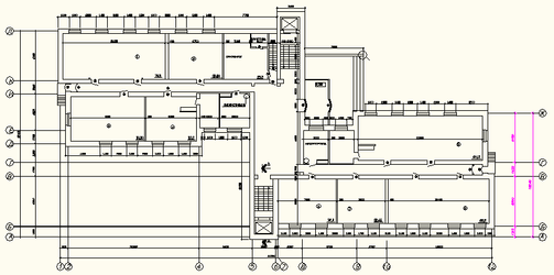
На основе клаузурной проработки планировочного решения здания и с учётом п. 1.1.4.1, 1.1.4.2, завершается работа над эскизами планов здания. С этой целью на планы наносятся элементы конструктивной системы, определяются количество и размещение эвакуационных выходов, размеры проходов, расположение окон и дверей, их типы и размеры, уточняются размеры отдельных помещений и здания в целом, просчитываются площади помещений и заносятся в табл. 1.2. Планировочное решение здания должно быть увязано с модульной сеткой и разбивочными осями. Планы представлены на рисунках 1.3; 1.4.
Рисунок 1.3. План на отметке 0.000.
Рисунок 1.4. План типового этажа.
1.1.5.2 Построение разрезов здания
Разрез здания выполняется на основе решения плана с учётом принятой конструктивной системы. Плоскость разреза должна проходить по наиболее характерным частям здания для полного представления его объёмно-планировочного и конструктивного решения. Как правило, разрез выполняется по лестничной клетке или входу здания. На разрезе должны быть показаны основные конструкции.
Рисунок 1.5. Продольный разрез.
Рисунок 1.6. Поперечный разрез.
1.1.5.3 Расчет естественного освещения
Расчет площади окон производится из условия ее пропорционального отношения к площади пола. Расчет производим для помещения 2 – двухкомнатная квартира. Для этого определяются геометрические характеристики помещения, ориентировочное положение оконного проема и наиболее неблагоприятно расположенной расчетной точки N. Расчетная схема приведена на рисунке 1.7.
Рисунок 1.7. Эскиз помещения.
N – расчетная точка; В – глубина помещения, м;
l – расстояние от окна до расчетной точки N, м;
ln – длина помещения , м; УУРП – уровень условной рабочей поверхности;
h=h1+h2 – высота от УУРП до верха окна
Площадь световых проемов определяется из соотношения:
где Sо – площадь световых проемов, м2;
Sп – площадь пола помещения, м2;
еN – нормируемое значение КЕО;
Кз – коэффициент запаса, Кз=1,4 [6, таблица 3];
- световая характеристика окон [6, таблица 26];
- общий коэффициент светопропускания;
r1 – коэффициент, учитывающий повышение КЕО благодаря свету, отраженному от поверхностей помещения;
Кзд – коэффициент, учитывающий затенение окон противостоящими зданиями.
Согласно [6, таблица 2, п.1] значение коэффициента естественного освещения (КЕО) –
= 0,5 %;
Нормируемое значение КЕО для различных районов следует определять по формуле:
еN=ен´mN´с, (1.2)
где mN—коэффициент светового климата, по [6, таблица 4] определяем пояс светового климата – IV, соответственно mN = 0,9;
С – коэффициент солнечности климата, определяемый по [6, таблица 5], С=0,7;
Тогда еN=0,5´0,7´0,9=0,315,
Определим коэффициент светопропускания окон [6, таблица 29,30]:
= 0,7 – для пластиковых окон с тройным остеклением;
= 1 нет солнцезащитных устройств;
= 0,75 · 0,7 · 1 · 1 · 1 = 0,525
Расчетная точка находится на расстоянии 1 м от наиболее удаленной от окна стены, а уровень условной рабочей поверхности УУРП = 0,8 м.
Определяем
Sп=133,04 м2
Для окна высотой 1500 мм определим его длину:
Принимаем для обеспечения естественного освещения семь окон размерами 1,3´1,5 м.
Дополнительно к естественному, предусматривается искусственное освещение электрическими лампами.
1.1.5.4 Архитектурно-художественная характеристика фасадов.
Разработка архитектурного решения фасадов здания - завершающая и очень важная часть эскизного проектирования. Архитектура фасада выявляет художественные и конструктивные достоинства и недостатки здания, определяет его выразительность и цельность архитектурного образа. Поэтому при решении фасадов здания должны быть учтены основные положения теории архитектурной композиции:
а) тектоника здания;
б) приёмы и средства архитектурной композиции;
в) принцип единства и соподчинённости.
Должен быть разработан и представлен один наиболее выразительный (главный) фасад здания, отражающий назначение здания, его тектонику и объёмно-планировочное решение.
В проекте разрабатывается фасады здания, которые показаны в паспорте проекта и на рисунках 1.8; 1.9.
Рисунок 1.8. Фасад по оси А.
Рисунок 1.9. Фасад по оси 1.
1.1.5.6 Технико-экономические показатели объёмно-планировочного решения здания
Рациональность объёмно-планировочного решения здания оценивается путём сравнения технико-экономических показателей проектируемого здания с аналогичными показателями здания по типовому проекту.
Показатели, по которым ведётся оценка объёмно-планировочного решения здания, приведены в таблице 1.7.
Таблица 1.7 – Технико-экономические показатели объемно-планировочного решения здания
| Наименование показателей | Единицы измерения | Значение показателей |
| По проекту | ||
| Площадь застройки ПЗ | м2 | 1398,8 |
| Жилая площадь ПЖ | м2 | 2334,75 |
| Вспомогательная площадь ПВ | м3 | 5519,48 |
| Строительный объем надземной части QН | м3 | 50278,87 |
| К | – | 0,297 |
| Коэффициент рациональности использования объема на единицу жилой площади К2 | – | 21,53 |
1.1.6 Генплан участка застройки
Расстояния от зданий, сооружений, а также объектов инженерного благоустройства до деревьев и кустарников следует принимать по таблице 1.8.
Рисунок 1.10 – Генплан участка.
Таблица 1.8 – Расстояния от зданий и сооружений.
| Здание, сооружения, объект инженерного благоустройства. | Расстояния, м, от здания, сооружения, объекта до оси. | Источник | |
| ствола дерева | кустарника | ||
| Наружная стена здания и сооружения | 5,0 | 1,5 | |
| Край трамвайного полотна | 5,0 | 3,0 | |
| Край тротуара и садовой дорожки | 0,7 | 0,5 | |
| Край проезжей части улиц, кромка укрепленной полосы обочины дороги или бровка канавы | 2,0 | 1,0 | |
| Мачта и опора осветительной сети, трамвая, мостовая опора и эстакада | 4,0 | - | |
| Подошва откоса, террасы и др. | 1,0 | 0,5 | |
| Подошва или внутренняя грань подпорной стенки | 3,0 | 1,0 | |
| Подземные сети: газопровод, канализация | 1,5 | - | |
Продолжение таблицы 1.8
| тепловая сеть (стенка канала, тоннеля или оболочка при бесканальной прокладке) | 2,0 | 1,0 | |
| водопровод, дренаж | 2,0 | - | |
| силовой кабель и кабель связи | 2,0 | 0,7 |
На участках следует предусматривать зеленые насаждения, летние сооружения для клубной работы, площадки для спортивных игр, а также хозяйственный двор.
оэффициент рациональности планировочных решений К1














