1-ый раздел архитектура (1220422), страница 3
Текст из файла (страница 3)
Нормируемые значения санитарно-гигиенических параметров основных помещений сводятся в табл. 1.5.
Таблица 1.5 – Санитарно-гигиенические требования
| Наименование характеристики | Значение Характеристики | Источник информации |
| 1. Расчетная температура внутреннего воздуха tв (°С); кратность воздухообмена | уборные общего пользования, лестницы +16°С; административно – бытовые помещения работников +18°С | 7, таб. 24 |
| Окончание табл. 1.5 | ||||||
| 2. Влажностный режим помещений, относительная влажность внутреннего воздуха | Нормальная | 7 | ||||
| 3. Ориентация основных помещений по сторонам света | свободная | 7 | ||||
| 4. Требования к естественной освещенности | eII =2*1,1*0,85=1,87 | 7 , 8 | ||||
| 5. Вентиляции, условия проветривания помещений | организованная система вентиляции; кратность воздухообмена 20 м3/час на 1 чел в холодный период года и 40 м3/час в летнее время | 7 | ||||
| 6. Санитарно-технические устройства | центральное отопление, приточная организованная система вентиляции и кондиционирования; хозяйственно-питьевое, противопожарное, горячее водоснабжение, канализация и водостоки | 7, п. 3.1, 3.51 | ||||
| 7. Уровни звукового давления | 125 Гц | 500 Гц | 2000 Гц | 5, табл. 1 | ||
| 70 | 58 | 52 | ||||
| 8. Индекс звукоизоляции: перекрытия стен | Iв=45дБ Iу=75 дБ Iв=40 дБ | 5, табл. 7 | ||||
1.3.5 Противопожарные мероприятия
Проектом предусмотрены противопожарные мероприятия согласно [9].
Согласно заданию на проектирование зданию присвоен второй класс и второй уровень ответственности. В соответствии с классификацией строительных конструкций по пожарной опасности и пределом огнестойкости строительных конструкций, класс конструктивной пожарной опасности здания – С0, а степень огнестойкости – II [23, п.п 5.19, таблица 5].
В здании предусматриваются конструктивные, объёмно-планировочные и инженерно-технические решения, обеспечивающие в случае пожара:
— возможность эвакуации людей, независимо от их возраста и физического состояния, наружу, на прилегающую к зданию территорию до наступления угрозы их жизни и здоровью, вследствие воздействия опасных факторов пожара;
— возможность спасения людей;
— возможность доступа личного состава пожарных подразделений и подачи средств пожаротушения к очагу пожара, а также проведения мероприятий по спасению людей и материальных ценностей;
— нераспространение пожара на рядом расположенные здания, в том числе при обрушении горящего здания;
— ограничение прямого и косвенного материального ущерба, включая содержимое здания и само здание, при экологически обоснованном соотношении величины ущерба и расходов на противопожарные мероприятия, пожарную охрану и её техническое оснащение.
Эвакуационные мероприятия предусмотрены в соответствии с требованиями действующих нормативных документов [23].
Требования безопасной эвакуации людей
Это требования по обеспечению благоприятных условий эвакуации из помещений и здания в целом.
Эвакуационные пути должны обеспечивать безопасную эвакуацию всех людей через эвакуационные выходы в течение необходимого времени.
Количество эвакуационных выходов из здания принимается по расчету, но не менее двух. Эвакуационные выходы должны располагаться рассредоточено.
При устройстве двух эвакуационных выходов, каждый из них должен обеспечивать безопасную эвакуацию всех людей, находящихся в помещении, на этаже или в здании.
Двери эвакуационных выходов, из поэтажных коридоров и лестничных клеток, не должны иметь запоров, препятствующих их свободному открыванию изнутри без ключа.
Двери эвакуационных выходов и другие двери на путях эвакуации, должны открываться по направлению выхода из здания.
Выходы, не отвечающие требованиям, предъявляемым к эвакуационным выходам, могут рассматриваться как аварийные (выход на балкон или выход на кровлю здания I и II степени огнестойкости) и предусматриваться для повышения безопасности людей при пожаре.
Ширина марша лестницы, предназначенной для эвакуации людей, должна быть не менее расчетной, и не менее ширины любого эвакуационного выхода (двери) на нее, но не менее 0,9 м. Ширина лестничных площадок должна быть не менее ширины марша.
Пути эвакуации должны быть освещены, в соответствии с требованиями, естественным светом на каждом этаже.
Для зданий II степени огнестойкости, ширина эвакуационного выхода на лестничную клетку, а также ширина маршей лестниц устанавливается в зависимости от числа эвакуирующихся через этот выход из расчета не более 165 человек на 1 м ширины выхода (двери).
Расстояние по путям эвакуации, от дверей наиболее удаленных помещений (кроме уборных, умывальных, и других обслуживающих помещений) до выхода наружу или лестничную клетку, должно быть не более 50 м.
Автоматическая пожарная сигнализация предусмотрена во всех помещениях проектируемого объекта, кроме помещений, не входящих в перечень согласно НПБ 110-03 п.4 «Приложение к приказу МЧС России от 18.06.2003 г. №315».
Таблица 1.6 – Противопожарные требования
| Наименование требования | Принятые характеристики | Источник |
| 1. Категория здания по функциональной пожарной опасности | Ф 1.1 | 23, п. 5.21 |
| 2. Требуемая степень огнестойкости, наибольшее количество этажей | II 2 | 23, табл.4 |
| Окончание табл.1.6 | ||
| 3. Необходимое количество эвакуационных выходов и допустимые расстояния от рабочего места до выхода. | 2 50 м | 23, п.6.14 |
| 4. Предельная ширина путей эвакуации, дверей, лестниц, уклоны лестниц. | 1 м. 0.9 м. Уклоны 1:2 | 23, п.6.27; п.6.29 |
1.4. Разработка эскизов объемно – планировочного решения
Работа над эскизами объемно-планировочного решения здания выполняется в две стадии; клаузурные (черновые) эскизы, ставящие своей целью композиционное решение здания (взаимного размещения отдельных помещений, этажности здания, габаритных его размеров), и эскизы окончательные, соответствующие принятому объёмно-планировочному решению и по стадии разработки проекта (технический проект).
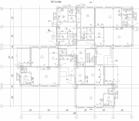
На основе клаузурной проработки планировочного решения здания, завершается работа над эскизами планов здания. С этой целью на планы наносятся элементы конструктивной системы, определяются количество и размещение эвакуационных выходов, размеры проходов, расположение окон и дверей, их типы и размеры, уточняются размеры отдельных помещений и здания в целом, просчитываются площади помещений и заносятся в табл. 1.4. Планировочное решение здания должно быть увязано с модульной сеткой и разбивочными осями. Клаузурная разработка эскизов двух вариантов планов этажей здания представлена на рис. 1.2 и 1.3
Рисунок 1.2 – Первый вариант плана этажа
Рисунок 1.3 – Второй вариант плана этажа
Рациональность объемно-планировочного решения здания оценивается путем сравнения технико-экономических показателей проектируемого здания с аналогичными показателями здания по типовому проекту.
Показатели, по которым ведется оценка объемно-планировочного решения здания, приведены в таблице 1.7.
Таблица 1.7 – Технико-экономические показатели объемно-планировочного решения здания
| Наименование показателей | Единицы измерения | Значение показателей по проекту |
| Нормируемая площадь здания FP | м2 | 1152 |
| Полезная площадь здания FПОЛ | м2 | 1212 |
| Строительный объем VСТР | м3 | 6143 |
| Коэф. рациональности использования площади здания K1 | – | 0,95 |
| Коэф. рациональности использования строительного объема K2 | – | 5,5 |
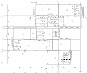
В результате проработки планировочного решения здания принимаем первый вариант планов здания на рис.1.2.
На основе проработки планировочного решения здания завершается работа над эскизами планов здания. С этой целью на планы наносятся элементы конструктивной системы, определяются количество и размещение эвакуационных выходов, размеры проходов, расположение окон и дверей, их типы и размеры, уточняются размеры отдельных помещений и здания в целом, просчитываются площади помещений и заносятся в табл. 5. Планировочное решение здания должно быть увязано с модульной сеткой и разбивочными осями. Окончательная разработка эскизов планов этажей здания представлена на рис. 2 и 3
Рисунок 1.4 – Плана первого этажа
Рисунок 1.5 – План второго этажа
1.4.1 Конструктивная система здания
Этажность здания «детский сад на 140 мест» составляет 2 этажа. Размеры здания в осях 32х36 м. Здание проектируется в конструкциях монолитного каркаса с наружными стенами и плоской кровлей, конструктивная схема здания показана на рис. 1.4. Фундамент железобетонный стаканного типа. Плиты перекрытий и плиты покрытия монолитные безбалочные железобетонные.
Сетка осей принят с шагом основных осей 6000 мм, для лестничных клеток шаг осей -3000мм.
Рисунок 1.6 –Конструктивная схема здания (расположение колонн)
Наружная и внутренняя отделка
На стеновые панели снаружи нанесен фактурный слой-штукатурка с мраморной крошкой «под смыв» с использованием колера бежевого цвета. Выполняется в заводских условиях.
Цокольные панели облицованы керамической плиткой типа «Кабанчик» в заводских условиях.
Кирпичные участки стен указанные в проекте штукатурятся раствором с мраморной крошкой «под смыв» под фактуру стеновых панелей, с использованием колера бежевого цвета.
Ограждение лестниц окрашивается масляной краской бежевого цвета.














