паспорт объекта (1220436)
Текст из файла
ПАСПОРТ ПРОЕКТА
Детский сад на 140 мест в городе Комсомольск-на-Амуре
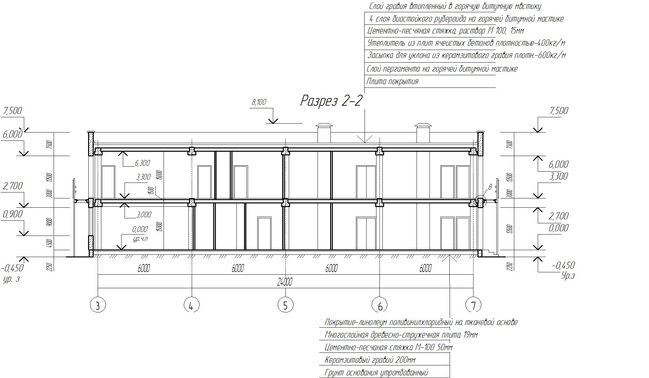
Скоростной напор ветра – 0,38 кПа (38 кгс/м2)
Степень огнестойкости - II
Расчетная температура наружного воздуха - 26
Вес снегового покрова – 0,7 кПа (70 кгс/м2)
Климатический район, подрайон – I, IB
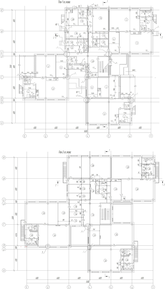
Состав помещений приведен в таблице 1.
Таблица 1.1 – Экспликация помещений
| Номер по плану | Наименование помещения | Пло-щадь, м2 | Номер по плану | Наименование помещения | Пло-щадь, м2 |
| 1 | Приемная | 34,9 | 20 | Техническое помещение | 15,2 |
| 2 | Игральная | 111,8 | 21 | Электрощитовая | 5,6 |
| 3 | Спальня | 1219 | 22 | Коридор, тамбур | 44,4 |
| 4 | Туалетная | 423 | 23 | Раздевальная | 54,5 |
| 5 | Буфетная | 9,0 | 24 | Групповая | 166,6 |
| 6 | Раздевальная | 18,0 | 25 | Спальня | 164,1 |
| 7 | Групповая | 55,3 | 26 | Туалетная | 48,1 |
| 8 | Медицинская комната | 7,9 | 27 | Буфетная | 9,0 |
| 9 | Приемная изолятор | 3,2 | 28 | Зал для музыкальных и гимнастических занятий | 73,8 |
| 10 | Палата | 6,4 | 29 | Кладовая для хранения физкультурного инвентаря | 5,8 |
| 11 | Туалетная изолятор | 2,2 | 30 | Методический кабинет | 15,2 |
| 12 | Помещение для приготовления дезинцифирующих средств | 2,1 | 31 | Холл | 31,5 |
| 13 | Кухная с раздаточной, заготовочный цех | 28,0 | 32 | Кабинет заведующего | 12,1 |
| 14 | Моечная кухонной посуды | 33 | Комната персонала | 8,3 | |
| 15 | Кладовая сухих овощей | 5,0 | 34 | Хозяйственная кладовая | 8,5 |
| 16 | Кладовая овощей | 6,1 | 35 | Кладовая чистого белья | 8,5 |
| 17 | Тамбур | 6,4 | 36 | Душевая | 2,0 |
| 18 | Уборочная персонала, душевая | 4,5 | 37 | Техническое помещение | 16 |
| 19 | Стиральная, гладильная | 23,5 | 38 | Коридор | 24,7 |
Характеристики
Тип файла документ
Документы такого типа открываются такими программами, как Microsoft Office Word на компьютерах Windows, Apple Pages на компьютерах Mac, Open Office - бесплатная альтернатива на различных платформах, в том числе Linux. Наиболее простым и современным решением будут Google документы, так как открываются онлайн без скачивания прямо в браузере на любой платформе. Существуют российские качественные аналоги, например от Яндекса.
Будьте внимательны на мобильных устройствах, так как там используются упрощённый функционал даже в официальном приложении от Microsoft, поэтому для просмотра скачивайте PDF-версию. А если нужно редактировать файл, то используйте оригинальный файл.
Файлы такого типа обычно разбиты на страницы, а текст может быть форматированным (жирный, курсив, выбор шрифта, таблицы и т.п.), а также в него можно добавлять изображения. Формат идеально подходит для рефератов, докладов и РПЗ курсовых проектов, которые необходимо распечатать. Кстати перед печатью также сохраняйте файл в PDF, так как принтер может начудить со шрифтами.















