ПЗ (1219780), страница 4
Текст из файла (страница 4)
2.3.2. Сплошное загружение
При загружении сплошной нагрузкой безбалочной плиты:
(2.9)
где с – катет прямоугольного треугольника, отламывающегося от четверти панели, принимается равным 0,2 м.
Отношения с/l≈0,08…0,12; θsup≈0,5…0,67; θl≈0,33…0,5.
Момент от внешней нагрузки, вычисляется по формуле:
(2.10)
В первом приближении плечо внутренней пары сил принимается равным 0,9h0. Общая площадь арматуры, вычисляется по формуле:
(2.11)
Из отношений (2.3):
Требуемая площадь сечения арматуры в опорном ПШ на 1м:
29,96/(6,6+0,56*4) = 3,39 см2/м,
принимается 5Ø10 As=3,93 см2, с шагом 200 мм
Требуемая площадь сечения арматуры в пролетном ПШ на 1м:
19,97/6,6 =3,02 см2/м,
принимается 5Ø10 As=3,93 см2, с шагом 200 мм
При данной арматуре коэффициент армирования , определяется по формуле (2.8):
2.3.3. Определение типа разрушения плиты
По результатам расчета [16, п. 2.1.2, 2.13], принимается арматура:
As,sup1=26,04 см2 - 33Ø10 – А400; Al1=26,04 см2 - 33Ø10 – А400.
Для изгибаемых элементов необходимо выполнение условия:
ξ ≤ ξR, (2.12)
где
- предельная относительная высота сжатой зоны, определяется по формуле:
(2.13)
где
,
определяется по формуле:
(2.14)
- относительная деформация сжатого бетона при напряжениях Rb, принимаемая по [16, п.6.1.20] равная 0,0035.
По формуле (2.13):
Относительная высота сжатой зоны, определяется по формуле:
(2.15)
Рабочая высота сечения пролёта, определяется по формуле:
(2.16)
условие ξ = 0,054≤ ξR = 0,533 удовлетворяется.
Высота сжатой зоны бетона в пролете, определяется по формуле:
x = ξ·h0 (2.17)
x = 0,054·0,176 = 0,0095 м
Плечо внутренней пары сил в пролете, определяется по формуле:
zl = h0 – 0.5x (2.18)
zl = 0,176-0.5·0.0095 = 0,171 м
Высоты сжатой зоны на опоре, вычисляется по формуле:
(2.19)
где b – ширина сжатой зоны = 0, 6 м;
Рабочая высота, вычисляется по формуле:
h0s,sup = h-as, sup (2.20)
h0s,sup = 0,2-0,025 = 0,175 м.
Уравнение решается относительно x по формуле:
(2.21)
Условие ξ = 0,458 ≤ ξR = 0,533 удовлетворяется.
Плечо внутренней пары сил, определяется по формуле:
zs,sup = h0 – 0.5x (2.22)
zs,sup = 0,175-0.5·0,105= 0,123 м
Проверка несущей способности плиты при полосовом загружении:
Проверка несущей способности плиты при сплошном загружении:
Несущая способность обеспечена.
2.4. Расчет на продавливание
Для обеспечения прочности необходимо соблюдение условия:
(2.23)
где F — сосредоточенная сила от внешней нагрузки;
М — сосредоточенный изгибающий момент от внешней нагрузки, учитываемый при расчете на продавливание;
Fb,ult и Mb,ult — предельные сосредоточенные сила и изгибающий момент, которые могут быть восприняты бетоном в расчетном поперечном сечении при их раздельном действии.
Продавливающая сила F от внешней нагрузки, определяется по формуле:
F = q· [l1·l2-4·(x+h0)·(y+h0)], (2.24)
где q – внешняя нагрузка, кПа;
l1, l2 – пролет плиты, м.
F = 7,91·[6,6·6,6-4·(0,4+0,17)2] = 334,28кН
Сопротивление бетона, определяется по формуле:
Fb,ult = Rbt·Ab , (2.25)
где Аb – площадь поперечного сечения определяется по формуле:
Ab = u·h0, (2.26)
где u — периметр контура расчетного поперечного сечения;
h0 — рабочая высота сечения равная 0,17 м
u=4·(x+h0)=4·(0,4+0,17)=2,28 м;
Fb,ult = 1,05·103·0,41=430,5 кН
В железобетонном каркасе зданий с плоскими перекрытиями сосредоточенный изгибающий момент М равен суммарному изгибающему моменту в сечениях верхней и нижней колонн, примыкающих к перекрытию в рассматриваемом узле.
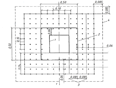
При действии момента М половина этого момента учитывается при расчете на продавливание. Площадка приложения нагрузки внутри плоского элемента приведена на рис. 2.2.
Рисунок 2.2 Площадка приложения нагрузки внутри плоского элемента:
1 — площадь приложения нагрузки; 2 — расчетный контур поперечного сечения; 3 — центр тяжести расчетного контура (место пересечения осей Х1 и Y1)
2.1.7 Определяем изгибающий момент в колонне
Момент, определяем по формуле:
М= N·eа, (2.27)
где N– нагрузка на колонну от веса покрытия, собственного веса, веса снегового покрова и временная нагрузка, собранная с грузовой площади.
Предельный изгибающий момент Mb,ult, определяют по формуле:
Mb,ult = Rbt Wb, (2.28)
где Wb — момент сопротивления расчетного контура поперечного сечения, м3, определяется в соответствии с [16];
(2.29)
где x,y – нижнее основание пирамиды продавливания, м;
h0 – рабочая высота сечения, м.
Проверяется условие (2.23):
Так как условие не выполняется, поперечная арматура устанавливается по расчету исходя из условия:
, (2.30)
где Fsw,ult и Msw,ult — предельные сосредоточенные сила и изгибающий момент, которые могут быть восприняты поперечной арматурой при их раздельном действии.
Усилие Fsw,ult, воспринимаемое поперечной арматурой, нормальной к продольной оси элемента и расположенной равномерно вдоль контура расчетного поперечного сечения, определяют по формуле:
Fsw,ult = 0,8 qsw u, (2.31)
где qsw — усилие в поперечной арматуре на единицу длины контура расчетного поперечного сечения, расположенной в пределах расстояния 0,5h0 по обе стороны от контура расчетного сечения, определяется по формуле:
(2.32)
где Asw — площадь сечения поперечной арматуры с шагом sw, расположенная в пределах расстояния 0,5 h0 по обе стороны от контура расчетного поперечного сечения по периметру контура расчетного поперечного сечения;
u — периметр контура расчетного поперечного сечения.
Усилие Msw,ult, воспринимаемое поперечной арматурой, нормальной к плоскости элемента и расположенной равномерно вдоль контура расчетного сечения, определяют по формуле:
Msw,ult = 0,8 qsw Wsw, (2.33)
где Wsw — момент сопротивления арматуры, определяется по формуле:
(2.34)
где lswx,lswy – длина участка армирования, м;
h0 – рабочая высота сечения, м.
Подставляя значения и выражая требуемую площадь арматуры получается:
Решением уравнения является
,
принимается
АIII.
Несущая способность арматуры:
Проверяется условие (2.30) с учетом подобранной арматуры:
Зона продавливания армируется Ø10 А400 с шагом sw=50 мм. Ширина зоны постановки поперечной арматуры, принимается 300 мм в каждую сторону.
Схема для расчета железобетонных плит с вертикальной, равномерно распределенной поперечной арматурой на продавливание показана на рис. 2.3.
Рисунок 2.4 Схема для расчета железобетонных плит с вертикальной, равномерно распределенной поперечной арматурой на продавливание:
1 — расчетное поперечное сечение; 2 — контур расчетного поперечного сечения;
3 — границы зоны, в пределах которых в расчете учитывается поперечная арматура;
4 — контур расчетного поперечного сечения без учета в расчете поперечной арматуры; 5 — контур площадки приложения нагрузки.
2.2 Расчет внецентренно сжатой колонны
Колонна рассчитывается как внецентренно нагруженная стойка расчетной длины
равной высоте этажа. При расчете учитывается случайный эксцентриситет
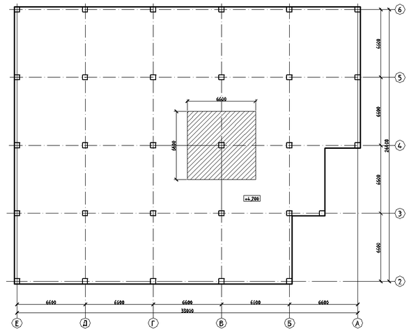
.Постоянные и временные нагрузки от этажей считаются приложенными с этим эксцентриситетом. Рассчитывается колонна среднего ряда, первого этажа. Схема расположения колонн приведена на рис. 2.5. Сечение колонн 5050 см.
Исходные данные:
Класс бетона В25, расчетное сопротивление RB=14,5 МПа; RBt=1,05 МПа [16, табл. 6.8]. Сопротивление бетона при расчете по второй группе предельных состояний RB,ser=18,5 МПа; RBt, ser =1,55 МПа [16, табл. 6.7]. Модуль деформации бетона ЕВ=30000 МПа [16, табл. 6.11].
Класс арматуры А400, расчетное сопротивление Rs=350 МПа; Rsс=350 МПа [16, табл. 6.14]. Сопротивление арматуры при расчете по второй группе предельных состояний Rs,ser=400 МПа [16, табл. 6.13]. Модуль деформации арматуры ЕS=200000 МПа [16, п. 6.2.12].
Рисунок 2.5 – Схема расположения колонн, грузовая площадь колонны
2.2.1 Сбор нагрузок на колонну
Грузовая площадь Агр для средней колонны
определяется по формуле:
(2.35)
Постоянная нагрузка определяется, по формуле:
(2.36)
Временная нагрузка на перекрытие, определяется по формуле:
(2.37)















