Diplom (1217509), страница 4
Текст из файла (страница 4)
Частичный отказ линейной части магистрального газопровода сопровождается вынужденным снижением объема или давления транспортируемого газа вследствие изменения технического состояния газопровода.
Необходимо заметить, что магистральные газопроводы Единой системы газоснабжения России имеют определенную специфику, которая влияет на уровень надёжности всей газотранспортной системы:
– они находятся в разных состояниях, с точки зрения износа (стадии: приработки, нормальной эксплуатации и старения);
– пролегают в различных географических и климатических зонах;
– изготовлены из различных марок трубной стали; – имеют различное значение диаметра труб (до 1420 мм);
– эксплуатируются с различными давлениями (1,2 – 10 МПа). Распределение магистральных газопроводов по их возрасту - этот фактор является одним из главных, который определяет уровень их надёжности. Уровень надёжности магистральных трубопроводов существенно зависит и от диаметра трубы. Так, на основании статистики установлено, что наибольшее количество отказов приходится на магистральные газопроводы диаметром труб 1220 мм, а наименьшее – у газопроводов диаметром труб 1420 мм. При этом основными причинами аварий с учетом диметра трубы являются: – при диаметре 1020 мм – нарушение технологии сварочных работ, а также дефекты труб и другого заводского оборудования;
– при диаметре 1220 мм – коррозионный износ, нарушение технологии сварочных работ;
– при диаметре 1420 мм – коррозионный износ.
Анализом отказов линейной части магистральных газопроводов установлено, что основной причиной разрушения труб является коррозионное растрескивание под напряжением (КРН). Разрушение по причине КРН наблюдается для трубопроводов диаметром 700–1420 мм . При этом наибольшее число отказов приходится на участки трубопроводов, отдаленные от КС на расстояние 10–40 км (рис. 1.3).
Наличие восьми различных факторов, влияющих на надёжность работы магистральных газопроводов, требует проведения чёткой классификации и систематизации отказов. Сгруппируем отказы линейной части магистральных трубопроводов по основным блокам (табл. 1.3).
Рис. 1.3. Статистическое распределение отказов на действующих магистральных газопроводах диаметром 1020–1420 мм в зависимости от удаленности от КС
Таблица 1.3
Классификация отказов линейной части магистральных газопроводов
| Наименование блока | Классификация отказов |
| 1. Проектные отказы | – ошибки при проектировании; – нарушение требований проекта. |
| 2. Отказы из-за уменьшения прочностных характеристик газопровода | – монтажные стыки; – тело трубы; – заводские сварные швы (прямые, спиральные); – строительные дефекты, вызванные наличием разрывов, вмятин, царапин, забоин, рисок; – оборудование |
| 3. Отказы, связанные с нарушением герметичности труб | – непреднамеренное механическое повреждение; – преднамеренное повреждение; – повреждение в силу возникновения стихийных бедствий |
| 4. Эксплуатационные отказы | – превышение разрешенного уровня давления; – ошибочные действия обслуживающего персонала; – закупоривание внутренней полости труб; – несанкционированное перекрытие арматуры; – нарушение «Правил технической эксплуатации магистральных газопроводов» из-за несвоевременного выявления и устранения неисправного состояния линейной части |
1.3.2 Отказы на компрессорных станциях
Транспорт газа на значительные расстояния обеспечивают компрессорные станции (КС). По данным ОАО «Газпром», газоперекачивающий парк КС на территории России составляют [3]:
-
отечественные – 88 %;
-
импортные – 12 %.
Процентное соотношение распределения отказов КС приводится в табл. 1.4
Таблица 1.4
Причины отказов на КС магистральных газопроводов
| Причина отказа | Доля, % |
| Перерыв в электроснабжении | 40,1 |
| Отключение системы маслоснабжения | 15,1 |
| Разрушение механической части | 14,2 |
| Отказы КИП и А | 10,6 |
| Нарушение правил технической эксплуатации | 3,85 |
| Отключение станционных систем (системы управления и телемеханики) | 2,14 |
| Прочие дефекты | 14,01 |
| Всего | 100 |
Анализом статистических данных по отказам и аварийным ситуациям на КС установлено, что основными причинам и факторами, способствующими их возникновению, являются: повышенный уровень вибрации трубопроводов, просадка трубопровода и его опор – 49 %; дефекты изготовления фасонных частей и арматуры – 23 %; нарушение технологии строительно-монтажных работ – 17 %; коррозионный износ – 11 %.
Необходимо отметить, что одним из наиболее ответственных элементов КС является технологическая обвязка ГПА, представляющая со- бой сложную конструкцию с многократными изгибами и большим количеством жестких и скользящих опор. Обвязка постоянно испытывает 37 знакопеременные циклические нагрузки со стороны нагнетателя. Пространственные изгибы труб на территориях КС имеются также на много- численных переходах надземных участков в подземные .
Из отмеченного выше следует, что требуется обеспечивать должный уровень надёжности работы ГПА и прогнозировать его техническое состояние. Кроме того, использование средств контроля, диагностики и исследования надёжности приведёт к снижению затрат на техническое обслуживание, уменьшению сроков ремонта, увеличению межремонтного периода и т.д.
-
МЕТОДЫ УПРАВЛЕНИЯ ЭКСПЛУАТАЦИОННОЙ НАДЕЖНОСТЬЮ ДЕЙСТВУЮЩИХ ГАЗОПРОВОДОВ
2.1 Понятие о методах управления эксплуатационной надежностью
Под уровнем эксплуатационной надёжностью понимается совокупность организованных методов воздействия, сформированных на основе информации о прочностном поведении магистрального газопровода и направленных на поддержание или повышение его работоспособности и долговечности. Реализация этой программы является целью управления, эффективность которого определяется упорядоченностью структуры управляющих методов воздействия. Комплекс этих методов и их структурная связь формируется на основе анализа причин аварийных разрушений исследуемых систем
Эксплуатационная надежность магистрального газопровода в значительной степени определяется качеством антикоррозионных покрытий газопроводных труб. В качестве таких покрытий на первом этапе сооружения газопроводов использовали битумные композиции, основным недостатком которых является потеря адгезии с металлом под действием катодной защиты, низкая механическая прочность битумной оболочки и небольшой срок службы (5… 7 лет). На втором этапе для наружной изоляции применяли полимерные ленты, выпускаемые в виде рулонов. Высокая технологичность намотки лент на трубы в трассовых и заводских условиях обеспечила широкое использование этих материалов на практике (около 70% магистральных газопроводов диаметром 1020…1420 мм изолированы полимерными лентами). Однако срок их службы оказался также непродолжительным (12…15 лет), в результате чего возникла потребность осуществления значительного объёма трудоемких работ по переизоляции отработанных покрытий. В этих условиях появился новый тип антикоррозионной защиты, представляющий собой многослойное полимерное покрытие труб заводского изготовления. Преимуществом этого антикоррозионного покрытия является индустриальный способ его нанесения, обеспечивающий высокую адгезионную прочность и возможность подбора химического или композиционного состава полимерной оболочки. Установленный срок службы задекларирован равным 20…25 лет. Однако в силу новизны способа и отсутствия достаточного опыта применения таких покрытий, методы управления их эксплуатационной надежностью пока не разрабатывались. Это послужило основанием для рассмотрения указанной проблемы в качестве одной задач настоящей работы.
Таким образом, система управления эксплуатационной надежностью магистральных газопроводов представляет собой комплекс методов регламентирующих оценку, прогноз и регулирование:
-
процессов электрохимической коррозии металлов;
-
стресс-корозионного трещинообразования;
-
прочностной надежности сварных стыков;
-
остаточного ресурса газопроводных труб;
-
стойкости антикоррозионных полимерных покрытий.
Совершенствование, обобщение и адаптация этих методов для формирования системы управления эксплуатационной надежностью магистральных газопроводов являются целью настоящей работы.
2.1.1 Визуально-измерительный контроль
Визуально-измерительный контроль выполняется для выявления конструктивных особенностей труб, их кольцевых и продольных сварных швов, а также внешних дефектов изменения характерных параметров.
Основные виды дефектов выявляемые визуальным контролем:
-
Механические (царапины, вмятины, гофры, забоины и т.д.);
-
Технологические (смешение сварных кромок, подрезы и т.д.);
-
Коррозионные (язвы, каверны и т.д.)
Перед осмотром труб выполняется:
-
Контроль наличия качества антикоррозионного покрытия
-
Выявление продуктов коррозии под изоляцией и в её сквозных дефектах
-
Общее магнитно-вихревое сканирование с целью первичной оценки поверхностных дефектов, а также нанесение на схему зон дефектных областей
Визуально-измерительный контроль производится в соответствии с РД 34.10.130-96 «Инструкция по визуальному и измерительному контролю» с использованием [4] приборного парка.
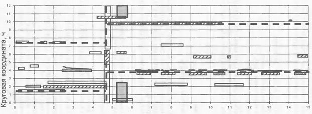
Результаты оформляются в табличном и графическом виде.Пример развертки трубы с визуально зафиксированными дефектами приведён на рис. 2.1
Рис. 2.1 Пример развертки трубы с дефектами
- трещины глубиной до 2мм, приращение 12÷16 единиц по шкале прибора МВД-1
- трещины глубиной до 1мм, приращение 7÷11 единиц по шкале прибора МВД-1
- трещины глубиной до 0,5мм, приращение 4÷6 едениц по шкале прибора МВД-1
- гофры
- коррозионные дефекты
2.1.2Акустико-эмоиссионный контроль
Выполняется с целью обнаружения и локализации дефектов, являющихся в материале источниками акустической эмиссии, а также для изучения поведения материала в зоне концентрации дефектов при условии нагружения испытуемого объекта внутренним давлением.
Данный вид контроля выполняется в соответствии с РД 03.131-97 [5], методикой обследования [6] и рекомендациями по применения акустико-эмиссионной диагностики [7]. При этом используется четырехканальный индикатор развивающихся трещин ИРРТ3-4К, предназначенный для проведения акустико-эмисиоонной диагностики.
2. 1.3Магнитновихретоковый контроль
Проводится с целью выявления поверхностных трещиоподобных дефектов по телу трубы и в околошовной. Контроль выполняется приборами МВД-1 и ВИТ-3 в соответствии с методическим стандартом .Результаты магнитновихретоковогокотроля оформляются в табличном или графическом виде на развертке трубы или трубного элемента.
2.1.4Измерение коэрцитивной силы
Величина коэрцитивной силы может использоваться для оценки уровня напряженно-деформированного состояния металлических конструкций, являющихся определяющим фактором в развитии дефектов основного металла и сварных соединений труб. Для этого необходимо иметь значения коэрцитивной силы, измеренные во взаимно перпендикулярных плоскостях обследуемого объекта. Для измерений используется магнитныйструктуроскоп КРМ-ЦК-2М. Измерения выполняются в соответствии с требованиями по эксплуатации этого прибора и методикой определения механических напряжений по коэрцитивной силе[8].
2. 1.5Определение напряжение в трубопроводах
Осуществляют на основе измерения физического параметра предельного гистерезиса – коэрцитивной силы. Этот способ определения напряжений применяют при условии существования корреляционной зависимости между внутренними напряжениями (деформациями) и коэрцитивной силой материала трубопроводов, устанавливаемой экспериментально с коэффициентом корреляции не менее 0,85















