ПЗ (1210406), страница 7
Текст из файла (страница 7)
– обеспечение сохранности имущества, товарно-материальных ценностей, спецтехники;
– предотвращение несанкционированных проникновений, хищений и злоупотреблений;
– быстрое расследование свершившихся противоправных действий, разрешение конфликтных ситуаций;
– эффективная организация труда складского персонала, отслеживание и устранение простоев, неудачных маршрутов, алгоритмов работы;
– повышение трудовой, исполнительской дисциплины сотрудников, их личной ответственности;
– раскрытие правонарушений на основе анализа архива видеозаписей.
ЗАКЛЮЧЕНИЕ
В рамках выполнения выпускной квалификационной работы был разработан системы видеонаблюдения построенной с использованием сетевых камер. Для реализации проекта были использованы программное обеспечение облегчающие проектировщику расчёт системы: IP Video System Design Tool и nanoCAD СКС. Система видеонаблюдения, построенная с помощью ПО TRASSIR имеет средства анализа видеопотоков, включающие:
– cистему автоматического контроля кассовых операций (СККО) TRASSIR ActivePOS;
– cистему интерактивного поиска в архиве TRASSIR ActiveSearch;
– cистему автоматического распознавания автомобильных номеров AutoTRASSIR;
– трекинговый детектор движения SIMT и т.д.;
– кроме того, в состав программного обеспечения включен сценарный язык Python расширяющий возможности функционала.
Рекомендованный в проекте сервер, имеет северную операционную систему Microsoft, что позволяет, помимо установленного специализированнрго ПО TRASSIR, установить консоль Symantec Endpoint Protection Manager, ftp–сервер, а так же использовать для решения других задачи.
В процессе реализации проекта были решены следующие задачи:
– составлено техническое задание для разработки системы;
– осуществлён обоснованный выбор технологии видеонаблюдения, на которой будет строиться будущая система;
– произведён обоснованный выбор активного и пассивного оборудования;
– подготовлен комплект чертежей и проектной документации системы видеонаблюдения.
Таким образом, цели выпускной квалификационной работы достигнуты, а задачи выполнены. Проект системы видеонаблюдения разработан и предложен к рассмотрению на предприятии, требования технического задания удовлетворены.
СПИСОК ИСПОЛЬЗОВАННЫХ ИСТОЧНИКОВ
1 ФЗ. «Технический регламент о требованиях пожарной безопасности» от 22.07.2008 №3 123-ФЗ
2 ГОСТ 34.602.89. Техническое задание на создание автоматизированной системы. – Введ. 1990-01-01. - М.: Изд-во стандартов. – 1990 – 27 с.
3 ГОСТ Р 56556. Слаботочные системы. Кабельные системы. – Введ. 2016-01-01.– М.: Изд-во стандартов. – 2015 – 40 с.
4 ГОСТ 14254–96. ГОСТ в актуальной редакции. Степени защиты, обеспечиваемые оболочками (код IP). – Введ. 1997-01-01.– М.: Изд-во стандартов. – 1998 – 25 с.
5 ГОСТ Р 53246–2008. Информационные технологии. Системы кабельные структурированные. Проектирование основных узлов системы. Общие требования. – Введ. 2010-01-01. – М.: Изд-во стандартов. – 2009 – 57 с.
6 ГОСТ 19.201–78. Техническое задание. Требования к содержанию и оформлению. – Введ. 1980-01-01.– М.: Изд-во стандартов – 1978 – 19 с.
7 ГОСТ Р МЭК 60950–2002. Безопасность оборудования информационных технологий. – Введ. 2002-10-01.– М.: Изд-во стандартов. – 2000 – 177 с.
8 ГОСТ Р 51318.24–99. Совместимость технических средств электромагнитная. Устойчивость оборудования информационных технологий к электромагнитным помехам. – Введ. 1999-12-28.– М.: Изд-во стандартов. – 1997 – 31 с.
9 ГОСТ Р 51318.22–99. Совместимость технических средств электромагнитная. Радиопомехи индустриальные от оборудования информационных технологий. – Введ. 2001-01 -01. – М.: Изд-во стандартов. – 2000 – 49 с.
10 ГОСТ 26329–84. Машины вычислительные и системы обработки данных. Допустимые уровни шума технических средств и методы их определения. – Введ. 1985-07-01. – М.: Изд-во стандартов. – 1990 – 50 с.
11 ГОСТ Р 51317.3.2–99. Совместимость технических средств электромагнитная. Устойчивость к электростатическим разрядам. – Введ. 2002-01-01. – М.: Изд-во стандартов. – 2003 – 83 с.
12 ГОСТ 31565–2012. Кабельные изделия. Требования пожарной безопасности. – Введ. 2014-01-01.– М.: Изд-во стандартов – 2016 – 11 с.
13 Правила устройства электроустановок. 7–е издание / Ред. А.М. Меламед – М.: НЦ ЭНАС.– 2011 – 552с.
14 СП 134.13330.2012. Системы электросвязи зданий и сооружений. - Введ. 2012-09-01. – М.: Минрегион России. – 2012 – 11 с.
15 BS EN 50132-7. Alarm systems. CCTV surveillance systems for use in security applications. Application guidelines- BSI Standards Publication. – 2012 – 15 p.
16 А.В. Сеулеков. Аналитический обзор видеокамер на ПЗС и КМОП
фотоприемниках, применяемых для исследования параметров динамических процессов.// Ползуновский Альманах. 2013.№1.С106-111.
17 Колесниченко О.В. Аппаратные средства PC. – БХВ-Петербур – 2010 – 782 с.
18 Кашкаров А. П. Системы видеонаблюдения. Практикум. – Феникс. – 2014 – 115 с.
19 Mark Lutz. Learning Python, 5th Edition. - O’Reilly Media.–2013 – 1594 p.
20 Полещук Н. Путь к nanoCAD. БХВ–Петербур. – 2017 – 368 с.
21 Олифер, Н.А. Компьютерные сети. Принципы, технологии, протоколы. – СПб.: Издательство «Питер». – 2000 – 672с.
22 Oliver A. Cabling: The Complete Guide tj Copper and Fiber-Optic Networking. – Cybex. – 2012 – 1241 p.
23 Семенов А.Б. Структурированные кабельные системы. - ДМК пресс. Компания АйТи – 2005 – 640c.
24 Сервер для видеонаблюдения. Электрон. журн. 2007. N 4. Режим доступа: http://www.secuteck.ru/articles2/IP-security/server-dlya-videonablyudeniya
25 Закат века CCD и наступление века высокой четкости. Режим доступа:http://ru.okno-tv.ru/biblio/detail.php?ELEMENT_ID=376&SECTION_ID=376
26 Программа для проектирования систем видеонаблюдения - JVSG. Режим доступа: http://www.jvsg.com/ru/
27 Официальный сайт компании DSSL. Режим доступа: http://www.dssl.ru
28 Линейка продукции компании Hikvision . [Режим доступа]http://hikvision.ru/products/ipcam
29 Линейка коммутаторов компании Dlink. Режим доступа:http://www.dlink.ru/ru/products/1/
30 Топология сети и её реализация. Журнал «Алгоритм Безопасности» № 1, 2014 год. Режим доступа: http://avtoritet.net/library/press/245/8158/articles/8738.
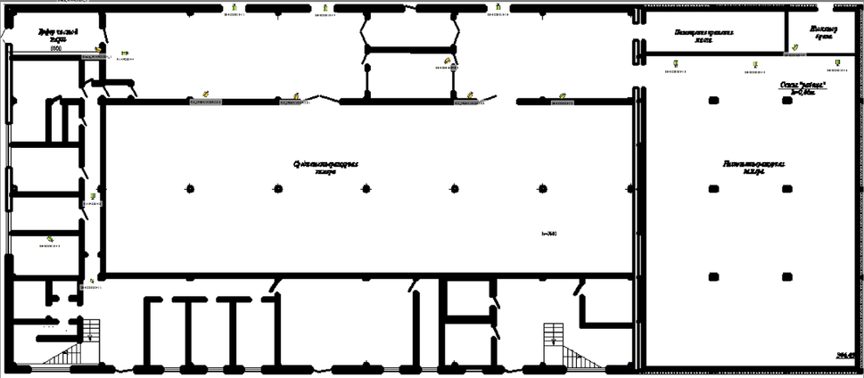
ПриложениеА
(обязательное)
План помещения
Приложение Б
(справочное)
Характеристики камер видеонаблюдения
| Камера | DS-2CD2122FWD-IS | DS-2CD2742FWD-IS | DS-I114 | DS-I122 (DS-I120) |
| Матрица | 1/2.8" Progressive scan | 1/3" Progressive scan | 1/4" Progressive scan | 1/3" Progressive scan |
| Чувствительность | 0,01лк@[F1.2AGC вкл.] | 0,01лк@[F1.2AGC вкл.],0,014лк@[F1.4AGC вкл.] | 0,01лк@[F1.2AGC вкл.];0,028лк@[F2AGC вкл.] | 0,01лк@[F1.2AGC вкл.], |
| Объектив | 2,8@F2 (4 мм, 6 мм) | 2,8-12мм@F1.4, вариобъектив | 2,8@F2 (4 мм, 6 мм) | 4 мм@F2 (2,8 мм, 6 мм, 12 мм) |
| Угол обзора объектива | 115 (2,8 мм), 90 (4 мм), 53.9 (мм) | 112 - 33,8 | 69 (2,8 мм), 55 (4 мм), 39 (мм) | 75,8 |
| Режим "день/ночь" | Механический ИК-фильтр с автопереключением | |||
| Видеосжатие | H.264/MJPEG/H.264+ | H.264/MJPEG/H.264+ | H.264/MJPEG/H.264+ | H.264/MJPEG |
| Битрейт видео | 31 кб/с - 16 Мб/с | 32 кб/с - 16 Мб/с | 33 кб/с - 8 Мб/с | 34 кб/с - 16 Мб/с |
| Максимальное разрешение | 1920x1080 | 2688x1520 | 1280x720 | 1280x960 |
| Детекция движения | Обнаружение пересечении линии, вторжения в область | |||
| Сетевое хранение | NAS [поддержка NFS, SMB/CIFS], ANR | NAS [поддержка NFS, SMB/CIFS], ANR | NAS [поддержка NFS, SMB/CIFS], ANR | NAS [iSCSI] |
| Протоколы | TCP/IP, UDP, ICMP, HTTP, HTTPS, FTP, DHCP, DNS, RTP, PPoE, NTP, SMTP, IGMP, IPv4 | |||
| Камера | DS-2CD2122FWD-IS | DS-2CD2742FWD-IS | DS-I114 | DS-I122 (DS-I120) |
| Срабатываемые тревоги | детекция движения, разрыв сети, конфликт IP-адресов, ошибка хранилища | детекция движения, разрыв сети, конфликт IP-адресов, анонимный доступ | детекция движения, разрыв сети, конфликт IP-адресов, анонимный доступ, потеря сети, ошибка хранилища | детекция движения, разрыв сети, конфликт IP-адресов, анонимный доступ, потеря сети, ошибка хранилища |
| Интерфейсы | RJ45, аудиовход, аудиовыход, тревожный интерфейс, слот для microSD, SDHC, SDXC | RJ45, аудиовход, аудиовыход, тревожный интерфейс, слот для microSD, SDHC, SDXC | RJ45, встроенный микрофон и динамик | RJ45 |
| Потребляемая мощность | 5,5 Вт | 5,5 Вт | 5 Вт | 6 Вт |
| степень защиты оболочки | IP66 | IP67 |
| IP66 |
| Дальность действия ИК-подсветки | до 30 м | до 30 м | до 10 м | до 15 м |
Приложение Г
(справочное)
Результаты электротехнических расчётов
| Наименование и техническая характеристика | Тип, марка, обозначение документа, опросного листа | Поставщик | Ед. измерения | Кол. |
| 1. Оборудование рабочих мест |
|
|
|
|
| 1.1 Слаботочная розетка 1хRJ45 кат. 6 неэкранированная (UTP) LexCom. | Слаботочная розетка 1хRJ45 кат. 6 неэкранированная (UTP) LexCom | Allombard, Франция | шт. | 18 |
| 2. Оборудование распределительного узла |
|
|
|
|
| 2.1 10" настенный шкаф SOHO, высота 4U, глубина 260мм | 10" настенный шкаф SOHO, высота 4U, глубина 260мм | Conteg, Чехия | шт | 1 |
| 2.2 Шкаф XL VDI 19" 6U 350х600х400мм, боковые панели, замок, дверь | XL VDI 19" 6U 600х400 | Legrand, Франция | шт | 1 |
| 2.3 Шкаф XL VDI 19" 21U 1000х600х600мм, боковые панели, дверь | XL VDI 19" 21U 600x600 | Legrand, Франция | шт | 1 |
| 3. Оборудование коммутационное |
|
|
|
|
| 3.1 Панель коммутационная, 10", RJ45>IDC 110, Cat 5e, 8 порта, 1U | 8хRJ-45 cat.5e 1U - копия |
| шт | 2 |
| 3.2 Панель коммутационная, 19", RJ45>IDC 110, Cat 5e, 24 порта, 1U | 24хRJ-45 cat.5e 1U |
| шт | 3 |
| 4. Кабели и провода |
|
|
|
|
| 4.1 Кабель UTP, внутренний, 4 пары, кат.6, оболочка PVC | LCS6 UTP 4x2 c.6 | Legrand, Франция | м | 465 |
| Наименование и техническая характеристика | Тип, марка, обозначение документа, опросного листа | Поставщик | Ед. измерения | Кол. |
| 5. Кабеленесущие конструкции |
|
|
|
|
| 5.1 Кабель-канал без крышки In-liner Front, белый RAL 9016, ПВХ, 140х50 мм | 140х50 | DKC | м | 2 |
| 5.2 Соединение на стык боковой кабель-канала In-Liner Front, белый RAL 9016, ПВХ, 140х50мм. | 140x50 | DKC | шт. | 1 |
| 5.3 Лоток проволочный, сталь электрогальванизированная, 50х200х3000мм. | F5 50х200x3000 | DKC | м | 3 |
| 5.4 Лоток проволочный, сталь электрогальванизированная, 50х50х3000мм. | F5 50х50x3000 | DKC | м | 153 |
Приложение В















