2016 - 24Б - Михайленко Юлия Сергеевна (1208663), страница 6
Текст из файла (страница 6)
Проведем оценку защищенности по виброакустическому каналу.
Измерительный вибродатчик размещается в выбранной контрольной точке непосредственно на поверхности ограждающей конструкции или на поверхности инженерно-технической системы.
Измерению были подвергнуты следующие конструкции защищаемого помещения: стена 1, стена 2, батарея 1.1, батарея 1.2, батарея 2.1, батарея 2.2, пол, потолок.
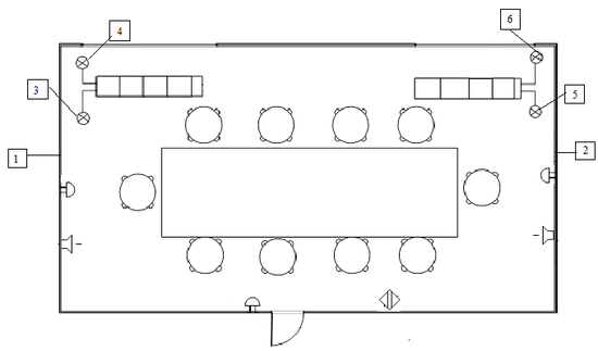
Размещение КТ на ограждающих конструкциях по виброакустическим каналам связи представлено на рисунках 2.3.3.4, 2.3.3.5.
1 – К. т. №1 – стена 1; 4 – К. т. №4 – батарея 1.2;
2 – К. т. №2 – стена 2; 5 – К. т. №5 – батарея 2.1;
3 – К. т. №3 – батарея 1.1; 6 – К. т. №6 – батарея 2.2.
Рисунок 2.3.3.4 – Размещение КТ на ограждающих конструкциях в горизонтальной плоскости.
7 – К. т. №7 – потолок;
8 – К. т. №8 – пол;
Рисунок 2.3.3.5 – Размещение КТ на ограждающих конструкциях в вертикальной плоскости.
Результаты определения октавных коэффициентов звукоизоляции запишем в таблицу 2.3.3.2.
Таблица 2.3.3.2 – Результаты определения октавных коэффициентов звукоизоляции
| Частота тональ-ного сигнала, i, Гц | Эквивалентное значение уровня тестового акустического сигнала в октавной полосе Lсi , дБ | Уровень измерительного суммарного акустического сигнала и акустического шума в контрольной точке L(c+ш)i , дБ | Измерительный уровень акустического шума в контрольной точке Lшi , дБ | Октавные уровни звукоизоляции в контрольной точке Qi , дБ | Вывод о выполнении требований по защите информации |
| Контрольная точка № 1 (стена 1) | |||||
| 250 | 67,1 | 66.5 | 62.5 | 53,1 | Да |
| 500 | 65,6 | 61.7 | 58.2 | 53,2 | Да |
| 1000 | 63,5 | 58.1 | 55.6 | 43,5 | Нет |
| 2000 | 59,3 | 67.6 | 65.3 | 53,5 | Да |
| 4000 | 57,1 | 53.1 | 55.9 | 43,6 | Нет |
Окончание таблицы 2.3.3.2
| Контрольная точка № 2 (стена 2) | |||||
| 250 | 71.4 | 66.5 | 62.1 | 48,7 | Да |
| 500 | 76.6 | 61.7 | 58.8 | 49,1 | Да |
| 1000 | 79.4 | 58.5 | 65.3 | 53,6 | Да |
| 2000 | 74.7 | 57.6 | 55.3 | 42,4 | Нет |
| 4000 | 72.8 | 43.1 | 38.9 | 46,6 | Да |
| Контрольная точка № 3 (батарея 1.1) | |||||
| 250 | 71.2 | 65.5 | 62,8 | 54,7 | Да |
| 500 | 74.6 | 67.2 | 62,7 | 59,5 | Да |
| 1000 | 69.4 | 62.5 | 67,5 | 49,1 | Да |
| 2000 | 74.7 | 58.6 | 64,4 | 53,6 | Да |
| 4000 | 72.3 | 43.7 | 62,3 | 52,2 | Да |
| Контрольная точка № 4 (батарея 1.2) | |||||
| 250 | 68,1 | 67.6 | 62.1 | 53,8 | Да |
| 500 | 63,7 | 61.8 | 56.0 | 59,5 | Да |
| 1000 | 73,5 | 65.4 | 66.5 | 53,5 | Да |
| 2000 | 54,3 | 55.2 | 54.3 | 55,4 | Да |
| 4000 | 58,2 | 48.6 | 33.9 | 52,3 | Да |
| Контрольная точка № 5 (батарея 2.1) | |||||
| 250 | 65.9 | 63.4 | 61.7 | 48.6 | Да |
| 500 | 71.7 | 67.5 | 53.0 | 46,7 | Да |
| 1000 | 58.3 | 53.2 | 54.2 | 59,6 | Да |
| 2000 | 67.6 | 57.6 | 55.2 | 51,3 | Да |
| 4000 | 43.1 | 53.2 | 49.4 | 52,2 | Да |
| Контрольная точка № 5 (батарея 2.1) | |||||
| 250 | 74.6 | 42.4 | 35.3 | 55.1 | Да |
| 500 | 78.0 | 39.8 | 45.4 | 54.2 | Да |
| 1000 | 80.2 | 37.1 | 33.6 | 47.5 | Да |
| 2000 | 82.5 | 35.7 | 32.7 | 50.2 | Да |
| 4000 | 74.4 | 34.6 | 35.6 | 54.3 | Да |
| Контрольная точка № 7 (потолок) | |||||
| 250 | 74.6 | 40.4 | 35.3 | 47.2 | Да |
| 500 | 78.0 | 39.8 | 45.4 | 50.3 | Да |
| 1000 | 80.2 | 37.1 | 33.6 | 46.7 | Да |
| 2000 | 82.5 | 35.7 | 32.7 | 51.2 | Да |
| 4000 | 74.4 | 34.6 | 35.6 | 49.5 | Да |
| Контрольная точка № 8 (пол) | |||||
| 250 | 67,1 | 56.5 | 62.1 | 53,7 | Да |
| 500 | 65,6 | 57.7 | 58.2 | 47,3 | Да |
| 1000 | 63,5 | 58.5 | 53.6 | 46,1 | Да |
| 2000 | 59,3 | 57.6 | 45.3 | 58,3 | Да |
| 4000 | 57,1 | 43.1 | 35.9 | 57,6 | Да |
По результатам проведенного расчета коэффициентов звуко- и виброизоляции помещения в соответствии с «Временной методикой оценки защищенности помещений от утечки речевой конфиденциальной информации по акустическому и виброакустическому каналам», можно сделать вывод: требования по защите речевой конфиденциальной информации не выполнены.
2.4 Описание выявленных каналов утечки информации
В результате проведения оценки защищенности защищаемого помещения были выявлены акустический и виброакустический каналы утечки информации:
Схема помещения с найденными утечками речевой информации показана на рисунке 2.4.1.
Рисунок 2.4.1 – Каналы утечки речевой информации
Обозначения:
– 1 – Акустический канал;













