ППР на строительство 108 кв. жилого дома в г.Хабаровске (1204966), страница 3
Текст из файла (страница 3)
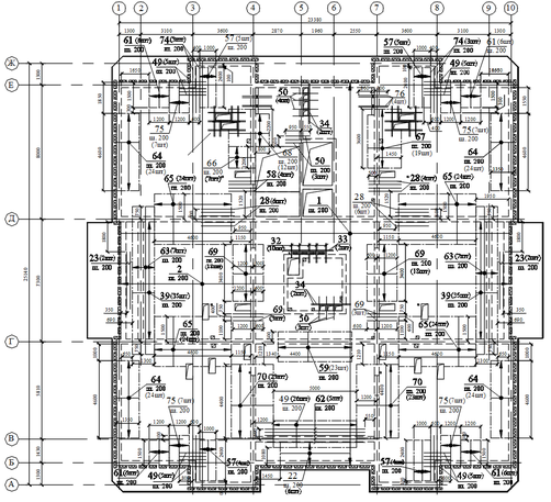
Рисунок 2.2 Схема армирования перекрытия типового этажа (нижняя сетка)
Рисунок 2.3 Схема армирования перекрытия типового этажа (верхняя сетка)
Таблица 2.2 – Ведомость расхода стали на перекрытие типового этажа
| Марка | Арматура класса (ГОСТ 5781-82*) | ||||||||||
| А III | А I | ||||||||||
| Ø8 | Ø12 | Ø16 | Ø22 | Итого | Ø6 | Ø8 | Ø12 | Итого | Всего | ||
| Плита | 342,9 | 14338,6 | 2122,5 | 1217,5 | 18021,5 | 52,2 | 71,8 | 1160,4 | 1284,4 | 19305,9 | |
Работы по установке арматуры выполняются звеном из шести человек: арматурщики 6 разр. - 1чел., 5 разр. - 1 чел., 4 разр. - 1 чел., 3 разр. - 1 чел., 2 разр. - 1 чел.; электросварщик 5 разр. - 1чел.
2.2.2.3 Бетонирование перекрытий
До начала укладки бетонной смеси должны быть выполнены следующие работы: проверена правильность установки арматуры и опалубки; устранены все дефекты опалубки; проверено наличие фиксаторов, обеспечивающих требуемую толщину защитного слоя бетона; очищены от мусора, грязи и ржавчины опалубка и арматура; проверена работа всех механизмов, исправность приспособлений, оснастки и инструментов.
Подача бетонной смеси к месту укладки осуществляется стационарным бетононасосом HBTS60-13-90B
В состав работ по бетонированию входят:
прием и подача бетонной смеси;
укладка и уплотнение бетонной смеси при бетонировании перекрытий;
уход за бетоном.
Подбор и назначение состава бетонной смеси осуществляется строительной лабораторией. Проверку рабочего состава производят путем опытного перекачивания автобетононасосом бетонной смеси и испытания образцов, изготовленных из отобранных после перекачивания проб бетонной смеси. Нормальная эксплуатация автобетононасоса обеспечивается в том случае, если по бетоноводу перекачивают бетонную смесь подвижностью 4 - 22 см, что способствует транспортированию бетона на предельные расстояния без расслоения и образования пробок.
Бетонная смесь в перекрытии уплотняется глубинными вибраторами ИВ-116 и поверхностными вибраторами ПВ-1.
При выдерживании бетона в начальный период твердения необходимо поддерживать благоприятный температурно-влажностный режим и предохранять его от механических повреждений.
Благоприятные температурно-влажностные условия для твердения бетона обеспечивают путем предохранения его от вредного воздействия ветра и прямых солнечных лучей, систематической поливкой. Для этого открытые поверхности свежеуложенного бетона укрывают влагоемким покрытием (брезентом или мешковиной), В зависимости от климатических условий частота поливки влагоемкого покрытия должна быть такой, чтобы поверхность бетона в период ухода все время была во влажном состоянии. В сухую погоду открытые поверхности поддерживают во влажном состоянии до достижения бетоном 50—70% проектной прочности.
Чтобы свежеуложенный бетон получил требуемую прочность в назначенный срок, за ним необходим правильный уход: поддержание его во влажном состоянии, предохранение от сотрясений, повреждений, ударов, а также от резких изменений температуры.
Хождение людей по забетонированным конструкциям, установка на них опалубки разрешается не раньше того времени, когда бетон наберет прочность не менее 1,47 Мпа.
Работы по укладки бетонной смеси выполняются звеном из пяти человек: оператор 5 разр. - 1 чел., помощник оператора 4 разр. - 1 чел., бетонщик 4 разр. - 1 чел., 2 разр. - 2 чел. Перечень машин и оборудования, см. табл.2.3
Таблица 2.3– Перечень машин и оборудования
| Наименование машин, механизмов, и оборудования | Тип, марка | Техническая характеристика | Назначение | Количество на бригаду, шт. |
| Кран башенный | КБ-473 | вылет стрелы наибольший - 20 м, наименьший - 10 м. Грузоподъемность - 5 т | подача арматуры, опалубки | 1 |
Продолжение табл.2.3
| Наименование машин, механизмов, и оборудования | Тип, марка | Техническая характеристика | Назначение | Количество на бригаду, шт. |
| Бетонная станция | HBTS60-13-90B | макс. теоретическая производительность перекачки бетона м3/ч 68 макс. теоретическое горизонтальное расстояние перекачки m 800 | подача бетонной смеси | 1 |
| Автобетоносме-ситель | СБ-92В-2 | геометрический объем барабана - 6,1 м3. Выход готовой смеси не менее 4,5 м3 | транспортирование бетонной смеси | 1 |
| Трансформатор сварочный | ТД-500 4- V -2 | напряжение питающей сети 220/380 В | сварочные работы | 1 |
| Компрессор | СО-45Б | номинальная мощность 32 кВт. Вес - 210 кг | подача сжатого воздуха | 1 |
Перечень технологической оснастки, инструмента, инвентаря и приспособлений в таблице 2.4.
Таблица 2.4 – Потребность в технологической оснастки, инструмента, инвентаря и приспособлений
| Наименование оснастки, инструмента, инвентаря и приспособлений | Марка, ГОСТ | Техническая характеристика | Назначение | Количество на бригаду, шт. |
| Бак красконагнетательный | СО-12А | емкость - 20 л. вес - 20 кг | смазка щитов опалубки | 1 |
| Бункер поворотный | БПВ-1,0 ГОСТ 21807-76* | вместимость 1,0 м3 | подача бетонной смеси | 4 |
| Краскораспылитель ручной пневматический | СО-71 | вес 0,66 кг | смазка щитов опалубки | 1 |
| Фиксатор для временного крепления арматурных каркасов | мосгорпромстрой | арматурные работы | 1 | |
| Устройство для вязки арматурных стержней | оргтехстрой | сборка укрупнительных каркасов | 1 | |
| Кондуктор для сборки арматурных каркасов | Гипрооргсельстрой | арматурные работы | 1 | |
| Фиксатор для временного крепления арматурных сеток | АОЗТ ЦНИИОМТП | арматурные работы | 1 |
Продолжение табл.2.4
| Наименование оснастки, инструмента, инвентаря и приспособлений | Марка, ГОСТ | Техническая характеристика | Назначение | Количество на бригаду, шт. |
| Универсальная дрель | ИЭ-1039Э | вес 2 кг, диаметр сверла до 13 мм | сверление отверстий | 1 |
| Глубинный вибратор | ИВ-116 | вес 15 кг, длина вибронаконеч-ника 440 мм, | уплотнение бетонной смеси | 2 |
| Электрододержатель | ГОСТ 14651-78* | сварочные работы | 1 | |
| Универсальный строп | АОЗТ ЦНИИОМТП Р.Ч. 907-3.00.000 | строповка конструкций | 1 | |
| Монтажный лом | ЛМ-24 ГОСТ 1405-83 | вес 4,4 кг | рихтовка элементов | 1 |
| Слесарный молоток | ГОСТ 2310-77*Е | вес 0,8 кг | очистка мест сварки | 1 |
| Строительный молоток (стальной) | МКУ-2 | вес 2,2 кг | простукивание бетона | 1 |
| Кельма | КБ ГОСТ 9533-81 | вес 0,34 кг | разравнивание раствора | 1 |
| Кузнечная кувалда (тупоносая) | ГОСТ 11406-90 | вес 4,5 кг | подгибание арматурных стержней | 1 |
| Растворная лопатка | ЛР ГОСТ 19596-87 | вес 2,04 кг | подача раствора | 2 |
| Металлическая щетка | ТУ 494-01-04-76 | вес 0,26 кг | очистка арматуры от ржавчины | 2 |
| Металлический скребок | вес 21 кг | очистка опалубки от бетона | 2 | |
| Гаечные ключи | ГОСТ 2838-80Е | опалубочные работы | 1 комплект | |
| Ножницы для резки арматуры | ГОСТ 7210-75Е | вес 2,95 кг | арматурные работы | 1 |
| Торцовые кусачки | ГОСТ 28037-89Е | вес 0,22 кг | арматурные работы | 1 |
| Комбинированные плоскогубцы | Р-200 ГОСТ 5547-93 | вес 0,2 кг | арматурные работы | 1 |
| Отвес строительный (стальной) | О-400 ГОСТ 7948-80 | вес 0,425 кг | контрольно-измерительные работы | 1 |
| Измерительная рулетка | ГОСТ 7502-89* | контрольно-измерительные работы | 1 |
Продолжение табл.2.4
| Наименование оснастки, инструмента, инвентаря и приспособлений | Марка, ГОСТ | Техническая характеристика | Назначение | Количество на бригаду, шт. |
| Строительный уровень | УС1-300 ГОСТ 941 6-83 | вес 0,4 кг | контрольно-измерительные работы | 1 |
| Перчатки резиновые | ГОСТ 20010-93 | бетонные работы | 2 | |
| Защитные очки | ЗП2-84 ГОСТ 12.4.01 3-85Е | вес 0,07 кг | техника безопасности | 2 |
| Защитный щиток для электросварщика | ГОСТ 12.4.035-78 | вес 0,48 кг | техника безопасности | 1 |
| Предохранительный пояс | ГОСТ 12.4.089-80 | техника безопасности | на все звено | |
| Сапоги резиновые | ГОСТ 5375-79* | бетонные работы | 2 | |
| Строительная каска | ГОСТ 12.4.087-84 | техника безопасности | на все звено |
2.2.3 Требования к качеству и приемке работ
Требования к качеству поставляемых материалов и изделий, операционный контроль качества и технологические процессы, подлежащие контролю, приведены в таблице 2.5.















