Диплом Бухта гр957 (1198039), страница 9
Текст из файла (страница 9)
Так как порошок предназначенный для тушения может повредить металлические элементы экспонатов, а также является опасным для жизни и здоровья человека то данный вид тушения не подходит.
Автоматическая установка аэрозольного пожаротушения.
Аэрозольное пожаротушение это тушение пожара с помощью веществ образующихся при горении аэрозоля. Аэрозоль содержит в себе определенные химические вещества при горений которых возникает поток смешанных газов и твердых частиц. Эта струя обладает гасящими способностями. Тушение происходит вследствие остановки цепных реакций.
Плюсы автоматической установки аэрозольного пожаротушения:
- можно использовать для тушения электроприборов;
- высокая эффективность при тушений быстровоспламеняющихся твердых и жидких веществ;
- после окончания тушение маловероятно повторное возгорание за счет сохраняющегося эффекта аэрозоля.
Минусы автоматической установки аэрозольного пожаротушения:
- нельзя использовать в помещениях вмещающих больше пятидесяти человек;
- приводит к ухудшению видимости;
- помещение должно быть герметично;
- малотоксичный возможно отравление организма.
Так как установка требует герметичности помещения то данная установка пожаротушения не подходит для защиты фондохранилищ.
Автоматическая установка водяного пожаротушения.
Самый распространенный вид пожаротушения. Вода является универсальным и дешевым огнетушащим средством.
Плюсы автоматической установки водяного пожаротушения:
- дешевизна;
- подходит в большинстве случаев;
- не токсична.
Минусы автоматической установки водяного пожаротушения:
- нельзя тушить электрооборудование, щелочные металлы;
- нужен большой расход для лучшего эффекта;
- после окончания тушения помещение нужно проветривать, просушивать специальными устройствами;
- может оказать негативный эффект на ценные вещи.
Такой вид тушения не подходит так как вода в таком виде может уничтожить экспонаты.
Автоматическая установка пожаротушения тонкораспыленной водой.
Данная установка тушит пожар посредством распыления воды до размеров отдельных капель до 100 микрометров.
Плюсы установки пожаротушения тонкораспыленной водой:
-облако тонкораспыленной воды проникает в труднодоступные места;
- не вызывает замыкания электроустройств;
- меньше расход воды чем традиционным тушением;
- оборудование и вещи не подвержены порче от воды;
- эффективно охлаждает очаг возгорания;
- осаждает крупные частицы дыма;
- прост в содержаний.
Минусы установки пожаротушения тонкораспыленной водой:
- ограниченный температурный диапазон (от+5 до +50 градусов Цельсия);
- ограниченность огнетушащего вещества.
Установка пожаротушения тонкораспыленной водой оптимально подходит для защиты фондохранилищ. Основополагающими факторами для выбора стали невозможность порчи от огнетушащего вещества и дешевизна установки. Так как здание несет историческую ценность то излишнее изменение в конструктивных элементах нежелательно. Советуется отказаться от централизованной системы пожаротушения и воспользоваться модульными установками.
Таблица 3.7
Выбор модуля пожаротушения тонкораспыленной водой.
| № | Наименование парметра | ТРВ-Гарант-14,5-01 (60) | МУПТВ-13,5-ГЗ-В-02-02 ("Тунгус") |
| 1 | Вместимость корпуса, л | 14,5 | 15 |
| 2 | Защищаемая площадь, м2 | 32 | 24,6 |
| 3 | Время действия, сек | 5 | 4 |
| 4 | Масса (без ОТВ), кг | 10,6 | 8,8 |
| 5 | Диапазон температур, °С | +5до+50 | +5до+50 |
| 6 | Диаметр, мм | 400 | 282 |
| 7 | Высота, мм | 430 | 464 |
| 8 | Цена, руб | 17594,5 | 15431,5 |
Проанализировав данную информацию можно сделать выбор в сторону ТРВ-Гарант-14,5-01 (60), так как защищаемая площадь больше и время действия продолжительней.
Рисунок 3.8 ТРВ-Гарант-14,5-01 (60)
Таблица 3.8
Количество модулей ТРВ-Гарант-14,5-01 (60) для защиты фондохранилищ.
| Номер фондохранилища | Площадь, м2 | Количество модулей |
| 9 | 28,1 | 1 |
| 10 | 122,4 | 4 |
| 24 | 38,2 | 2 |
| 25 | 61,2 | 2 |
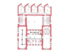
Рисунок 3.9 Расположение модулей автоматической системы пожаротушения ТРВ-Гарант-14,5-01 (60) на третьем этаже
Рисунок 3.10 Расположение модулей
автоматической системы пожаротушения
ТРВ-Гарант-14,5-01 (60) на третьем этаже
Меры безопасности.
Запрещается:
- увеличивать количество ОТВ;
- эксплуатация модуля с механическими повреждениями (при повреждении корпуса, мембраны и протечками ОТВ;
- разборка модуля; - проведение каких-либо огневых испытаний без согласования или присутствия представителя предприятия-изготовителя;
- осуществлять проверку цепей запуска модулей током более 20 мА;
- выполнять любые ремонтные работы без отключения от модуля внешних электрических цепей. При установке модуля необходимо соблюдать технику безопасности при проведении работ на больших высотах. При подключении модуля к дополнительному оборудованию, питание этого оборудования должно быть отключено.
Техническое обслуживание.
Для модуля специального технического обслуживания не требуется. Один раз в квартал осуществляется проверка модуля внешним осмотром на предмет отсутствия видимых нарушений и изменений. При обнаружении дефектов (подтекания воды и т.д.) модуль подлежит замене. Работы по проверке качества модуля, перезарядке после срабатывания и освидетельствованию должны проводиться предприятием- изготовителем или специализированными организациями, имеющими лицензию на проведение указанного вида работ.
4 Противопожарная профилактика
Профилактика это комплекс предупредительных мер, направленных на сохранение и укрепление нормального состояния, порядка.
Противопожарная профилактика это комплекс организационных и профилактических мероприятий по предупреждению, локализаций и ликвидаций пожаров а также по обеспечению безопасной эвакуаций людей и материальных ценностей в случае пожара.
Основной задачей противопожарной профилактики является исключение возникновения пожара.
Эта задача решается системой организационных и технических мер по предотвращению пожара, включающих соблюдение требований пожарной безопасности, разработанных на объекте, выполнения мероприятий направленных на предотвращение образования горючей среды.
Второй задачей является минимизация последствий пожара. Она заключается в тушений пожара и обеспечений безопасности людей и материальных ценностей.
Важнейшей мерой противопожарной профилактики является обучение, подготовка и инструктажи работников.
Ниже приводится примерный перечень основных вопросов по пожарной безопасности, которые в обязательном порядке должны доводиться до обучаемых.
Перечень вопросов, включаемых в вводный инструктаж:
-правила и инструкции по пожарной безопасности, действующие на объекте, приказы, правила, инструкции, общие требования по соблюдению противопожарного режима; ответственность за нарушение правил пожарной безопасности;
-основные причины пожаров и взрывов; наличие взрывопожароопасных производств (участков, работ) и их общая характеристика;
-общие меры по обеспечению пожарной безопасности; порядок сжигания, применения открытого огня, проведения пожароопасных работ и их общая характеристика;
-организация деятельности и функции подразделений добровольной (ведомственной) пожарной охраны; действия работающих при возникновении пожара (порядок вызова пожарной охраны, эвакуация людей, материальных ценностей и т.п.);
-огнетушащие вещества, их свойства и область применения; первичные средства пожаротушения и правила пользования ими.
Примерный перечень основных вопросов первичного противопожарного инструктажа на рабочем месте:
-краткая характеристика пожарной опасности оборудования, веществ и материалов, обращающихся в производстве; возможные причины возникновения пожаров и меры по их предупреждению;
-правила (инструкции) пожарной безопасности, установленные для работников данного помещения, участка, сооружения; пути эвакуации и требования к их содержанию; виды и функции существующих систем противопожарной защиты (пожарной сигнализации и автоматического пожаротушения);
-обязанности при возникновении пожара; средства связи и их местонахождения; порядок вызова пожарной охраны, оповещения людей, проведения эвакуации; места расположения первичных средств пожаротушения, способы их применения.
Повторный инструктаж проводят с периодичностью, установленной в данном учреждении (в отрасли) по программе первичного инструктажа в полном объеме.
Внеплановый инструктаж проводят в случаях смены технологии, перехода на другое рабочее место, после каких-либо происшествий. Объем и содержание инструктажа определяют для каждой конкретной ситуации с учетом причин и обстоятельств его проведения.
Целевой инструктаж проводят перед выполнением разовых работ, не связанных с прямыми обязанностями по специальности, перед работами, на которые оформляется наряд-допуск. С учетом конкретной ситуации в инструктаж включают необходимые вопросы, связанные с пожарной безопасностью.
Обучение в объеме пожарно-технического минимума проводится с целью доведения до сведения руководителей и главных специалистов предприятий, лиц, ответственных за пожарную безопасность подразделений предприятий, а также занятых выполнением работ повышенной пожарной опасности, к которым предъявляются дополнительные требования по безопасности труда и проверки знаний или основных положений действующих нормативных технических документов в области пожарной безопасности.
Работники, проходящие обучение в системе пожарно-технического минимума на предприятии могут быть освобождены от вводного и первичного противопожарных инструктажей.
Учебные программы составляются для каждой категории обучаемых с учетом специфики профессиональной деятельности, особенностей исполнения обязанностей по должности и положений отраслевых документов.
При подготовке учебных программ следует уделять особое внимание практической составляющей обучения: умению пользоваться первичными средствами пожаротушения, действиям при возникновении пожара, правилам эвакуации и помощи пострадавшим.
В соответствии со ст. 37 Федерального закона «О пожарной безопасности», предприятия обязаны:
-соблюдать требования пожарной безопасности, а также выполнять предписания, постановления и иные законные требования должностных лиц пожарной охраны;
-разрабатывать и осуществлять меры по обеспечению пожарной безопасности;
-проводить противопожарную пропаганду, а также обучать своих работников мерам пожарной безопасности;
-включать в коллективный договор (соглашение) вопросы пожарной безопасности;















