Диплом Бухта гр957 (1198039), страница 8
Текст из файла (страница 8)
V= 60м3 для пожаров класса В, V=90m3 для пожаров класса А.
Рисунок3.2 Расположение защищенных комнат автоматической системой пожаротушения
Модуль обеспечивает тушение пожаров класса А и В по площади до 17м2.
Кабинет №19 имеет размеры :
Длина =5,47 м;
Ширина = 2,9 м;
Высота = 3,24 м;
Площадь S=15.9 м2;
V=51,39 м3.
В данном кабинете пожарная нагрузка носит характер твердых сгораемых материалов и электроустановок до 1000В. Следовательно данный модуль порошкового тушения подходит для защиты кабинета №19.
Рисунок 3.3 Состав модуля порошкового тушения «BiZone».
1 Емкость с порошком.
2 Баллон с двуокисью углерода.
3 Рама.
4 Насадок-распылитель.
5 Мембранный узел.
6 Трубопровод подачи газа.
7 Пуско- запорное устройство.
8 Крышка нижняя.
9 Устройство ВУУК-3КВН-6×2.
10 Шпилька для подключения заземления.
11 Трубопровод подачи ГТВ.
12 Кабельный ввод для подключения модуля.
Меры безопасности.
К эксплуатации модуля допускаются лица не моложе 18 лет, изучившие паспорт и « Правила устройства и безопасной эксплуатации сосудов, работающих под давлением».
Установку модуля производить в местах, исключающих возможность механических повреждений и падения на него прямых солнечных лучей, а также на расстоянии не менее 1.5 м от нагревательных приборов.
При проведении технического обслуживания модуль должен быть отключен от системы запуска.
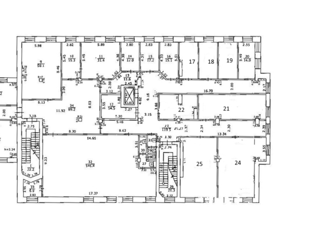
Так же во втором корпусе на третьем этаже в фондахранилищах №17,18,21,22,24,25 (смотри рис) установлена модульная система пожаротушения тонко распыленной водой (далее ТРВ) МУТВ-60 «Тайфун». Данная установка предназначена для тушения пожара тонкораспыленной водой в производственных, складских, административных, архивных помещений, хранилищ музейных ценностей и выставок как отдельных пожароопасных участков так и всей площади помещения.
Рисунок 3.5 Состав МУТВ-60 «Тайфун»
1 - корпус;
2 - предохранительный клапан;
3 - подводящий трубопровод;
4 - распределительный трубопровод;
5 - пусковое устройство;
6 - насадок;
7 - узел вскрытия;
8 - баллон;
9 - аэратор;
10 - штуцер.
Таблица 3.5
Основные технические данные.
| № | параметр | Количественная оценка |
| 1 | Диапазон температур эксплуатаций | От +50С до +500С |
| 2 | Огнетушащая способность модуля, м2, не более | |
| Пожар класса А | 20+2 | |
| Пожар класса В | 20+2 | |
| 3 | Продолжительность действия, сек | 10-35 |
| 4 | Инерционность срабатывания, сек, не более | 3 |
| 5 | Масса огнетушащего вещества (вода), кг | 60+0,3 |
| 6 | Масса модуля без огнетушащего вещества полная, кг | 54+0,2 |
| 7 | Объем баллона для хранения газа-вытеснителя, л | 8 или 10 |
| 8 | Габаритные размеры модуля, м, не более: | |
| Длина | 0,5 | |
| Ширина | 0,4 | |
| высота | 1,6 | |
| 9 | Рабочее давление в корпусе , МПа, не более | 1,4 |
| 10 | Ресурс срабатываний, не менее | 10 |
| 11 | Назначенный срок службы, лет | 10 |
ЗАПРЕЩАЕТСЯ:
1 Эксплуатировать модуль без проведения технического обслуживания
2Эксплуатировать модуль после истечения срока переосвидетельствования корпуса и баллона с двуокисью углерода
3 Проводить техническое обслуживание модуля при включенной системе автоматического запуска
4 Срывать пломбу, разбирать части узла вскрытия, не отключив модуль от системы электрического запуска
5 Срывать пломбу, разбирать предохранительный клапан
6 Разбирать изделие УРП-7(устройство ручного запуска), исправлять кажущиеся дефекты изделия.
Таблица 3.6
Количество модульных систем пожаротушения на каждое защищаемое фондохранилище
| Номер фондохранилища | Площадь, м2 | Количество модулей |
| 17 | 14,7 | 1 |
| 18 | 15,5 | 1 |
| 21 | 37,3 | 2 |
| 22 | 20 | 1 |
| 24 | 56,4 | 3 |
| 25 | 48 | 3 |
В данных фондохранилищах пожарную нагрузку составляет твердые сгораемые материалы, следовательно, данный вид пожаротушения подходит для этих помещений.
3.3.2Выбор автоматической системы пожаротушения
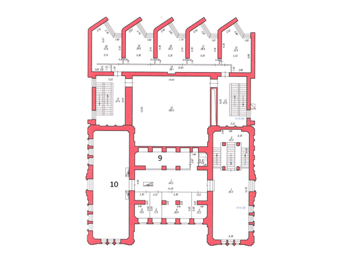
Так как в первом корпусе на третьем этаже тоже находятся фондохранилища (рис 3.6,3.7)под номерами 9, 10, 24,25,то рекомендуется и там установить автоматическую систему тушения.
Рисунок 3.6 Размещение фондохранилищ
Рисунок 3.7 Антресоль над помещениями 9, 10.
Разберем виды автоматических систем пожаротушения. Автоматической системой пожаротушения можно назвать комплекс устройств, который способен самостоятельно активизироваться при превышении контролируемых в защищаемой зоне параметров и факторов относительно пороговых значений. В настоящий момент существует много вариантов автоматических установок для борьбы с огнем. Классифицировать их можно по нескольким параметрам:
- По конструктивному исполнению эти устройства могут быть агрегатными, модульными, спринклерными и дренчерными.
- По способу тушения огня они могут быть локальными, по площади и объемными.
- По способу срабатывания (или запуска) установки они могут быть подразделены на ручные, автоматические.
- По такому фактору, как инерционность, автоматические пожарные установки пожаротушения можно подразделить на сверхбыстродействующие, быстродействующие или небольшой инерционности, средней инерционности и повышенной.
- По продолжительности действия, они могут быть импульсного действия, кратковременного, средней длительности и длительного воздействия.
Классификация по способу тушения.
Автоматическая установка пенного пожаротушения.
Данная система тушит пожар с помощью сгенерированной пены. Пены представляют собой дисперсные системы пузырьки газа, окруженные водяной пленкой. Тушение пожара достигается путем изолирования огня от воздуха. Пенное пожаротушение получило широкое применение при тушений нефтипродуктов.
Плюсы автоматической установки пенного пожаротушения:
- сокращает расходы воды;
- возможность тушения пожара больших площадей;
- тушение пожара по объему;
- тушение нефтепродуктов;
-повышенная смачиваемость;
6 самопроизвольное покрытие площади за счет растекание пены.
Минусы автоматической установки пенного пожаротушения:
- относительно низкий срок хранения пенообразователя
- трудоемкое периодическое обслуживание
- нельзя тушить работающие электроприборы
- пена может физически и химически повредить материальные ценности и строение.
По данным плюсам и минусам можно определить что данный вид пожаротушения не подходит для защиты фондохранилищ. Так как пена повредит или уничтожит экспонаты оставленные на хранение.
Автоматическая установка газового пожаротушения.
Данный вид пожаротушения основан на вытеснений или разбавлений воздуха в очаге пожара, посредством инертных газов. Такой вид пожаротушения получил развитие в энергопромышленности, на объектах по производству легкогорючих материалов, в транспорте дальнего следования, на складах с ценностями.
Плюсы автоматической установки газового пожаротушения:
- может использоваться в помещениях с работающими электроустановками;
- занимает малое количество пространства;
- тушение пожара по объему;
- огнетушащие газосмеси нетоксичны, химические инертны, при нагреваний не распадаются на ядовитые и агрессивные фракций;
- после тушения остатки газа легко удаляются простым проветриванием;
-высокая скорость тушения.
Минусы автоматической установки газового пожаротушения:
- малоэффективно в помещениях большого объема и на открытом пространстве;
- содержание автоматической установки газового пожаротушения сопряжено
с трудностями хранения и обслуживания баллонов под давлением;
- чувствительны к температурному режиму;
- не применяется для тушения тлеющих материалов, возгораемых металлов, а также веществ способных гореть без доступа кислорода;
- требует герметизаций помещений.
Для защиты фондахранилищ данный вид автоматической установки пожаротушения не подходит. Так как помещения фондахранилищ не герметизированы, и некоторые изделия хранящиеся там склонны к тлению.
Автоматическая установка порошкового пожаротушения.
Порошковое пожаротушение – это способ тушения пожара с помощью огнетушащего вещества в виде мелкозернистой порошковой смеси. Химически порошки предназначенные для тушения представляют собой соли металлов с различными добавками. Порошковое пожаротушение применяется для тушения пожаров класса A, B, C, D, E. Механизм тушения огня с помощью порошков основан на следующих механизмов:
- нагреваясь, порошок забирает часть тепла у очага возгорания, снижая температуру горения;
- смешиваясь с горячим воздухом, порошковая смесь образует взвесь вокруг очага возгорания;
- нагреваясь порошковая смесь выделяет негорючие газы, препятствующие горению;
- вещества применяемые для производства порошков, служат ингибиторами процесса горения.
Плюсы автоматической установки порошкового пожаротушения:
- низкая стоимость;
- простота конструкций;
- длительное хранение;
- возможность применять для тушения щелочных металлов, бензина, электроустановок;
-широкий температурный диапазон (-50 до +50 градусов Цельсия).
Минусы автоматической установки порошкового пожаротушения:
- малоэффективны при тушении веществ, способных гореть без притока воздуха или тлеющих в глубине слоя;
- обладает химической активностью и требует незамедлительного удаления с металлических поверхностей сразу после прекращения тушения, во избежание порчи оборудования;
- затруднительно перекачивать порошок по трубам из-за физических свойств порошка;
- вреден для жизни и здоровья человека.















