Диплом Бухта гр957 (1198039), страница 13
Текст из файла (страница 13)
Приложение А
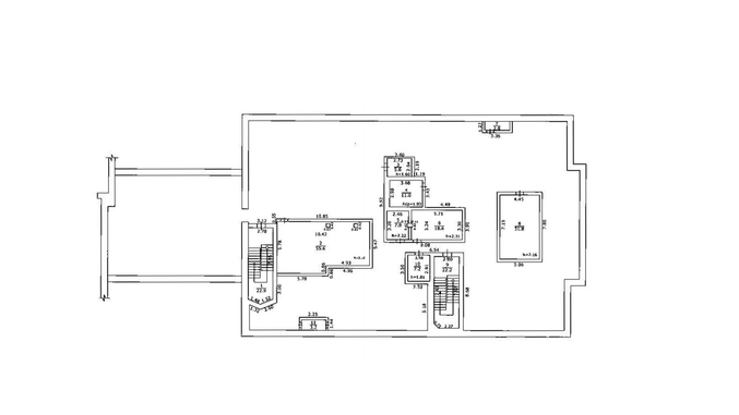
Рисунок А1.1
Цоколь второго корпуса
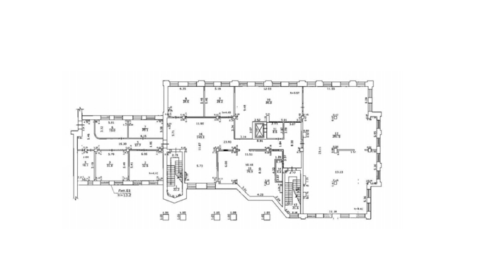
Рисунок А1.2
Первый этаж второго корпуса
Рисунок А1.3
Второй этаж второго корпуса
Рисунок А1.4
Третий этаж второго корпуса
Рисунок А1.5
Технический этаж второго корпуса
Список используемых источников
1.Технический регламент о требованиях пожарной безопасности Федеральный закон от 22.07.2008 N 123-ФЗ (ред. от 03.07.2016)
2.О противопожарном режиме: Постановление Правительства РФ от 25 апреля 2012 г. № 390 (с изменениями на 21 марта 2017 года).
3.Об утверждении Порядка обучения по охране труда и проверки знаний требований охраны труда работников организаций: Постановление Минтруда России, Минобразования России от 13.01.2003 N 1/29 (ред. от 30.11.2016) (Зарегистрировано в Минюсте России 12.02.2003 N 4209).
4.Техника пожарная. Огнетушители. Требования к эксплуатации: СП 9.13130.2009
5.Системы противопожарной защиты. ВНУТРЕННИЙ ПРОТИВОПОЖАРНЫЙ ВОДОПРОВОД: СП 10.13130.2009
6.Тесленко, И.М. Производственное освещение : учеб. пособие / И.М. Тесленко. – Хабаровск : Изд-во ДВГУПС, 2014. – 103 с. : ил. 7 ГОСТ 12.1.004-91 «Пожарная безопасность. Общие требования».
7.ГОСТ 12.1.004-91 Система стандартов безопасности труда (ССБТ). Пожарная безопасность. Общие требования (с Изменением N 1).
8.Системы противопожарной защиты. Эвакуационные пути и выходы (с Изменением N 1): 8 СП 1.13130.2009
9 Федеральный закон "О пожарной безопасности" от 21.12.1994 N 69-ФЗ.
10.Профессионально сообщество Новосибирска [электронный ресурс]- http://nsk-proekt.ru/Info/Stroy/smeta.html
11.Элитариум центр дополнительного образования [электронный ресурс]- http://www.elitarium.ru/zatraty-rashody-izderzhki-aktivy-proizvodstvo-buhgalterskij-upravlencheskij-uchet/
12.Кандаурова Т.Н. Хабаровский краевой краеведческий музей / Т.Н. Кандаурова // Российская музейная энциклопедия: в 2 т.- М.: Прогресс, Рипол Классик, 2001.
13.Рубан Н.И. История музейного дела на Дальнем Востоке России /Н.И. Рубан // Музеология.: учебное пособие.- 3-е изд.- Хабаровск, 2007.- Разд. 3.- С. 93-102.
14.Морозов П.Л. Хабаровский краеведческий музей / П.Л. Морозов // Хабаровск: Краткая справочная книга.- Хабаровск, 1980.- С. 108-109.
69















