Автореферат (1094952), страница 11
Текст из файла (страница 11)
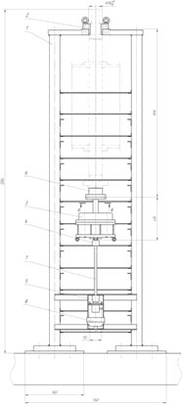
Генератор крутильных колебаний (ГКК), предназначен для проведения вибростабилизации формы и размеров роторов компрессоров «Синтезгаз» (рис. 48).
Генератор крутильных колебаний, включает в себя корпус 1, центральное зубчатое колесо 2, привод 3, передающий вращение на центральное зубчатое колесо 2, две одинаковые шестерни 4, получающие вращение от центрального зубчатого колеса 2, узел крепления 5, соединяющий генератор с изделием.
С целью создания гармонически изменяющегося с течением времени значительного крутящего момента, передаваемого на изделие, через узел крепления, на указанных шестернях закрепляются два неуравновешенных груза 6, создающих равные по модулю и противоположные по фазе дисбалансы, причем узел крепления и корпус связаны посредством торсиона 7, крутильная жесткость которого подбирается из условия резонанса между угловой скоростью вращения шестерен
и собственной круговой частотой колебаний генератора
, т.е. согласно формуле:
| Рис. 48. Модель генератора крутильных колебаний |
где
,
– угловая скорость вращения центрального колеса, 1/с.
Значение
определяется по формуле:
где
– крутильная жесткость торсиона;
– полярный момент инерции генератора.
С учетом проведенного комплекса технологических и конструкторских расчетов была разработана и создана промышленная конструкция ГКК (рис. 49). Следует отметить, что генератор является регулируемым, т.е. в конструкции предусмотрена возможность снижения дисбалансной массы и регулирование динамической нагрузки.
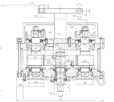
С учетом определенной конструкции ГКК, был разработан и создан промышленный стенд для проведения вибростабилизации валов и роторов в сборе. Конструкция стенда представлена на рис. 50. Стенд содержит станину 1, зажимы 2 и 6, генератор крутильных колебаний 3, муфты 4 и 5, гибкий вал 7 и двигатель 8.
Предложенная схема вибростабилизации ротора имеет ряд существенных преимуществ:
-
вибростабилизация проводится не только вала, а узла в целом, что обеспечивает стабилизацию всей конструкции в целом, так как передаваемое динамическое усилие способствует не только стабилизации вала и деталей закрепленных на нем, но и их самоустановки в оптимальном положении. Существенным является то, что такая схема повышает стабильность центрирования рабочих дисков;
-
возможность передачи значительных переменных усилий при высокой частоте колебаний, так как
; -
реальное равномерное распределение переменного усилия по всех поверхности вала ротора, ввиду того, что резонанс в системе возникает не за счет равенства собственной крутильной частоты колебаний ротора, которая с технологической точки зрения является недостижимой для генератора, а за счет равенства
, т.е. резонанса в конструкции ГКК.
На стенде была проведена обработка гибких роторов компрессорных агрегатов «Синтезгаз» в сборе. В качестве режимов для вибростабилизации роторов было принято: время обработки, T – 5…20мин; возникающие касательные напряжения на валу, от действия динамического крутящего момента варьировались от 8…12МПа.
Расчетные и экспериментальные данные, полученные ранее, свидетельствуют, что значительная часть дисбаланса роторов определяется торцевыми биениями дисков. В связи с этим были проведены замеры торцевого биения дисков
согласно схеме на рис. 51, до вибростабилизации роторов
и после нее
. Замеры проводились на высокоточном станке с ЧПУ посредством индикатора часового типа с ценой деления 0,001мм по 12 точкам равнорасположенным по окружности диска (рис. 36).
В таблице 10 приведены усредненные результаты замеров торцевых биений дисков ротора К-601 до и после вибростабилизации,
Укажем, что значения торцевых биений, которые должны быть выдержаны на готовом изделии, согласно карты технического контроля, равны 0,04 мм.
Анализ полученных результатов свидетельствует, что вибростабилизация роторов в сборе является эффективным методом борьбы с дисбалансом, а следовательно и с роторной вибрацией. Торцевые биения дисков снижаются в среднем 0,01…0,03 мм, причем следует отметить, что 90% дисбаланса роторов турбоагрегатов связано именно с торцевыми биения дисков. Согласно таб. 10 эффективное время стабилизации формы и геометрии роторов составляет не более 10 мин, дальнейшая обработка, как показали экспериментальные данные, нецелесообразна.
Рис. 51. Схема замера торцевых биений дисков ротора К-601
Таблица 10
Результаты замеров торцевых биений дисков ротора К-601
На рис. 52 представлены гистограммы и дифференциальные плотности распределения величины торцевого биения дисков ротора К-601, соответственно, до и после вибростабилизации с режимом обработки T=5мин.
а) б)
Рис. 52. Гистограмма и выравнивающее распределение величины торцевого биения дисков ротора К-601: а) до вибростабилизации; б) после вибростабилизации
Анализ полученных результатов позволяет сделать следующие выводы: модули торцевых биений подчиняются распределению Релея, как до вибростабилизации, так и после нее. Значение параметров распределений величины торцевого биения дисков, для рассматриваемых здесь конструкций роторов, до вибростабилизации
=0,02…0,03 мм, а после вибростабилизации снижается в среднем в 2 раза и составляет
=0,012…0,015 мм.
ОСНОВНЫЕ РЕЗУЛЬТАТЫ И ВЫВОДЫ ПО РАБОТЕ
1. Сформулированы основные положения теории уравновешивания гибких роторов турбоагрегатов, которые сводятся к следующим принципам:
-
наиболее эффективными являются методы балансировки, в которых комбинируются условия статического равновесия от сил, возбуждаемых дисбалансом, с некоторыми динамическими условиями. Таковыми могут быть: устранение некоторых собственных форм изгибных колебаний ротора из кривой динамического прогиба; устранение динамического прогиба в заданных точках и частотах вращения; устранение динамических реакций подшипников на некоторых частотах и др.;
-
число плоскостей коррекции равно общему числу статических и динамических условий, в соответствии с которыми выполняется балансировка.
-
влияние упруго-демпфирующих характеристик опор на качество уравновешивания сравнительно невелико: если какой-либо метод балансировки достаточно эффективен для ротора на жестких опорах, то его относительная эффективность сохраняется при переходе на упруго-податливые или упруго-демпфирующие опоры;
-
критерием «гибкости» ротора может служить отношение максимальной эксплуатационной частоты вращения к первой критической скорости ротора на жестких опорах:
где
– максимальная эксплуатационная частота вращения. Обычно при
£0,5 ротор может еще рассматриваться, как жесткий, и балансироваться на низких частотах в двух плоскостях коррекции.
2. Сформулированы принципы построения методологии прогнозирования начального дисбаланса роторов с центральным валом и диско-барабанной конструкции, с учетом радиальных и торцевых биений дисков, погрешностей изготовления лопаток, погрешностей сборки и балансировки. Во всех этих случаях дисбаланс ротора или отдельно взятой детали, можно свести к трем основным схемам суммирования случайных компланарных векторных величин: первая – при которой модули слагаемых детерминированы, а фазы равно распределены по всей окружности; вторая – при которой и модули и фазы слагаемых случайны; третья – где фазы детерминированы и соответствуют точкам деления окружности на n равных частей, а модули – одинаковые, нормально распределенные случайные величины. Во всех случаях модуль суммарного вектора – дисбаланс, подчиняется распределению Релея с найденными в зависимости от схемы параметрами распределения.
















