Записка (1094710), страница 2
Текст из файла (страница 2)
Основные механические свойства[5]:
Временное сопротивление разрыву
р. = 320 МПа
Предел текучести
т = 200 МПа
Сопротивление срезу
ср. = 230 МПа
Относительное удлинение
= 33
Относительное сужение
= 60%
Таблица 1.1 – Химический состав
| Массовая доля элементов, % | |||
| углерода | кремния | Марганца | хрома, |
| 0,05- 0,12 | Не более 0,03 | 0,25 - 0,50 | 0,10 |
Массовая доля серы в стали должна быть не более 0,040%, фосфора - не более 035%.
Остаточная массовая доля никеля в стали не должна превышать 0,30%,меди - 0,30%.
В стали допускается массовая доля мышьяка не более 0,08%.
В прокате, заготовках, поковках и изделиях дальнейшего передела допускаются отклонения по химическому составу от норм, приведенных в табл. 1.1, в соответствии с табл. 1.2. [11]
Таблица 1.2 – Отклонение по химическому составу
| Наименование элемента | Допускаемые отклонения, % |
| Углерод | ±0,01 |
Кремний | ±0,02 |
| Марганец | ±0,03 |
| Фосфор | +0,005 |
При изготовлении детали «Кронштейн» применяется сталь 08кп – это низкоуглеродистая, качественная конструкционная сталь общего назначения.
ГОСТ 9045 – 93 - на сталь;
ГОСТ 503 – 81 - на прокат.
Применяемый в листоштамповочном производстве материал по виду заготовки подразделяется на:
- листы;
- полосы;
- ленты;
- штучные заготовки.
В крупносерийном производстве наиболее целесообразно применять непрерывный материал, так как для каждого размера заготовки можно заказать ленту соответствующей ширины, сокращая, таким образом, до минимума отходы. Кроме того, лента дает возможность широко применять средства автоматизации, которые значительно увеличивают производительность, уменьшают затраты на рабочую силу и способствуют безопасности в работе. Для производства детали «Кронштейн» выбираем холоднокатаную сталь в рулоне по ГОСТ 503 – 81.
При развертке на плоскость данная деталь дает заготовку с размерами 167 × 30 мм, следовательно, выбираем ленту шириной 167 мм (ближайшую по сортаменту). Шаг подачи равен 30 мм.
1.3 Определение коэффициента использования материала
Раскрой должен обеспечивать экономию металла, высокое качество детали, высокую производительность, простоту штампа, а также простоту и безопасность работы.
При наклонном типе раскроя будет очень большой отход. При встречном, комбинированном, многорядном, усложняется конструкция штампа. Для данного типа детали удобнее применить цепочечный тип раскроя.
Коэффициент использования материала для существующего технологического процесса определяется по формуле [2]:
КИМ = (Мд/Нр.р) ×100%, (1.1)
где Мд – масса детали, кг.;
Нр.р. – норма расхода для рулона, кг.
КИМ=(0,100/0,107) ×100%=93 %
КИМ = 93% для предлагаемого технологического процесса изготовления детали ''кронштейн''.
1.4 Определение силы и работ по переходам штамповки
Требуется пробить 2 отверстия диаметром 11 мм, отрезать полуфабрикат по шагу, согнуть полку в размер 26 мм, согнуть окончательно
Сила деформирования при пробивке определяется по формуле:
Pпр. = К L S ср, (1.4)
где К = 1,2 – коэффициент учитывающий неоднородность материала и притупление режущих кромок;
L – длина пробиваемого контура, мм.;
S – толщина металла, мм.;
ср – сопротивление срезу, МПа.
Пробивка двух отверстий ∅ 11 мм.
Pпр. = 1,2×34,5×2×3×250 = 62100 (H)
Работа пластической деформации при пробивке определяется по формуле:
Апр. = λ Рпр. S/1000, (1.6)
где λ – коэффициент полноты диаграммы;
Рпр. – полная сила пробивки, Н
Апр. = 0,65×62100×3/1000 = 121 (Дж)
Сила деформирования при отрезке по шагу определяется по формуле:
Pотр. = К L S ср, (1.7)
где К = 1,2 – коэффициент учитывающий неоднородность материала и притупление режущих кромок;
L – длина отрезаемого контура, мм.;
S – толщина металла, мм.;
ср – сопротивление срезу, МПа.
Pотр. = 1,2×167×3×250 = 150300 (H)
Работа пластической деформации при отрезке определяется по формуле:
Аотр. = λ · Ротр. · S/1000, (1.8)
где λ – коэффициент полноты диаграммы;
Ротр. – сила отрезки, Н.
Аотр. = 0,65×150300×3/1000 = 293.1 (Дж)
Сила деформирования при гибке определяется по формуле:
Pг. = К B S ср, (1.4)
где К – коэффициент, зависящий от схемы гибки, принимаемый равным 0,2;
B – ширина детали, мм.;
S – толщина металла, мм.;
ср – сопротивление срезу, МПа.
Гибка полок размером 26 мм, 30мм, 15мм
Pг. = 0,2×26×3×3×250 = 11700 (H)
Работа пластической деформации при гибке определяется по формуле:
Аг. = λ Рг. S/1000, (1.6)
где λ – коэффициент полноты диаграммы;
Рг. – полная сила пробивки, Н
Аг. = 0,65×11700×3/1000 = 22.8 (Дж)
Расчет силы проталкивания производится по формуле:
Рпрот. = kпр. · Р · n, (1.9)
где Р – суммарное сила пробивки и обрезки, Н;
kпр. – коэффициент, равный 0,05 – 0,10 при вырубке на провал;
n – количество деталей, находящихся в шейке матрицы.
Рпрот. = 0,05× (62100+151200) ×5 = 53325 (Н)
Работа пластической деформации при проталкивании определяется по формуле:
Апр. = λ Рпр. S/1000, (1.10)
где λ – коэффициент полноты диаграммы;
Рпр. – сила проталкивания, Н.
Апрот. = 0,65×53325×3/1000 = 103.9 (Дж)
Суммарное сила штамповки определяется по формуле:
Рсум. = Рг. + Рпр. + Ротр.+ Рпрот. (1.11)
Рсум. = 11700+62100+150300+53325 = 277425 (Н) = 28 (т.с.) [10]
Суммарная работа деформации определяется по формуле:
А =Аг.+Апр. +Аотр.+Апрот. (1. 12)
А = 22.8+121+293.1+103.9=540.8 (Дж)
Согласно расчету суммарное сила для выполнения технологических операций составляет 30 т. с., по этой величине выбирается листоштамповочное оборудование.
-
Выбор оборудования
При выборе номинального усилия и габаритов штампового пространства пресса исходили из следующих соображений:
-
Тип пресса и величина хода ползуна должны соответствовать технологической операции.
-
Номинальное усилие пресса должно быть больше усилия, требуемого для штамповки.
-
Мощность пресса должна быть достаточной для выполнения работы, необходимой для данной операции.
-
Закрытая высота пресса должна соответствовать или быть больше закрытой высоты штампов.
-
Габаритные размеры стола и ползуна пресса должны давать возможность установки и закрепления штампов.
-
Число ходов пресса должно обеспечивать достаточную производительность штамповки.
-
В зависимости от рода работы должно быть предусмотрено наличие специальных устройств и приспособлений (выталкивателей и подушек).
-
Удобство и безопасность в обслуживании пресса должны соответствовать требованиям техники безопасности. [6]
Таблица 1.3 - Техническая характеристика пресса
| Наименование параметра | Величина | ||
| Номинальное усилие, т. с. | 80 | ||
| Ход ползуна, мм | 450 | ||
| Регулировка закрытой высоты, мм | 400 | ||
| Частота ходов ползуна, мин-1 | Непрерывных | 20 | |
| Одиночных | 17 | ||
| Закрытая высота пресса | 900 | ||
| Высота выдвижного стола | 500 | ||
| Регулируемость ползуна | 400 | ||
| Размеры стола, мм | Слева направо | 2550 | |
| Спереди назад | 3400 | ||
| Толщина подштамповой плиты, мм | 100 | ||
| Мощность электродвигателя главного привода, кВт | 55 | ||
В данном случае максимальное усилие технологической операции составляет 30 т.с. Так как прессы изготовляют в определенном интервале по номинальному усилию, то обычно при выборе пресса расчетное усилие не соответствует точно номинальному усилию. Поэтому пресс выбирается заведомо большего усилия, чем требуется по расчету. Применение более сильного пресса обеспечивает более высокую жесткость и меньшую деформацию станины, что позволяет получать более точные детали по высоте. С учетом того что, при разделительных операциях усилие штамповки, как правило, не должно превышать 0.7 от номинального усилия пресса (кроме специальных прессов для разделительных операций), а также с учетом того, что во всей номенклатуре деталей возможен разброс усилий, выбираем усилие пресса равным 80 тс.
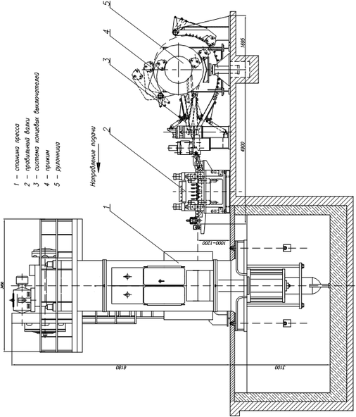
В качестве основного оборудования для производства вышеуказанной детали предлагается автоматизированная линия на базе листоштамповочного пресса ЗИЛ-80 усилием 80 т.с., общий вид линии представлен на рис. 1.5
| Рисунок 1.5 – Общий вид листоштамповочного автоматизированного участка |
2. Конструкторская часть
2.1 Выбор типа и технологической схемы штампа
Штампы для листовой штамповки классифицируются по трем признакам: технологическому (по роду и совмещенности операций), конструктивному (по способу направления) и эксплуатационному (по способу подачи заготовок и удалению деталей).
По технологическому признаку штампы разделяются на типовые группы по роду выполнения операций.
По совмещенности операций штампы разделяются на простые и комбинированные, выполняющие одновременно несколько операций. Комбинированные штампы, в свою очередь, подразделяются по характеру совмещения операций во времени на:
-
штампы последовательного действия, в которых изготовление детали производится за несколько переходов под различными пуансонами при последовательном перемещении заготовки;
-
штампы совмещенного действия, в которых изготовление деталей производится за один ход пресса концентрированно расположенными пуансонами при неизменном положении заготовки;
-
штампы последовательно – совмещенного действия, в которых изготовление детали происходит путем сочетания последовательной и совмещенной штамповок.
По конструктивному признаку штампы разделяются на штампы без направления и штампы с направляющими устройствами. Штампы без направляющих более просты в изготовлении, имеют малую массу и габаритные размеры, но неудобны при установке, небезопасны в эксплуатации и обладают невысокой стойкостью. Применяются только в мелкосерийном и опытном хозяйстве. Штампы с направляющими просты и надежны в эксплуатации, удобны при установке, обладают повышенной стойкостью, но боле сложны в изготовлении. Применяются в серийном, крупносерийном и массовом производстве. Наибольшее распространение получили штампы с направляющими колонками, которые в большинстве случаев снабжаются неподвижным или подвижным съемником.
По эксплуатационному признаку, определяемому приемами и способами работ, штампы различаются: по способу подачи и установки заготовок; по способу удаления деталей; по способу удаления отходов.
По способу подачи и установки заготовок различают штампы с ручной подачей и штампы с автоматической подачей, являющейся принадлежностью штампа или пресса. Штампы с ручной подачей отличаются один от другого лишь конструкцией применяемого упора или фиксатора, а штампы с автоматической подачей различаются по типу подачи ленты или штучных заготовок.
По способу удаления деталей различают следующие типы штампов:
-
с провалом через отверстие матрицы;
-
с обратной вставкой в ленту и удалением вместе с ней;
-
с обратным выталкиванием на поверхность штампа и ручным удалением;
-
с обратным выталкиванием и автоматическим удалением.
Обратное удаление осуществляется от пружин выбрасывателя или выталкивателя, от буфера или от пресса.















