Записка (1094710), страница 3
Текст из файла (страница 3)
По совмещенности операций выбираем комбинированный штамп последовательного действия.
По конструктивному признаку выбираем штамп с направляющими колонками.
По эксплуатационному признаку выбираем штамп с автоматической валковой подачей и с автоматическим удалением деталей по склизу в кроватку. [7]
2.1.1 Предлагаемая конструкция штампа
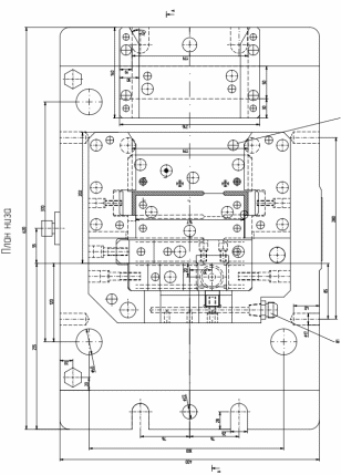
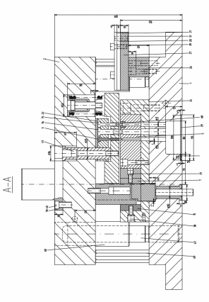
Чертежи штампа представлены на рисунках 2.1 – 2.3 Верхняя часть штампа направляется и центруется относительно нижней части с помощью четырех направляющих колонок. Подача материала в штамп осуществляется валковой
Рисунок 2.1 - Штамп, продольный разрез |
Рисунок 2.2 - Штамп, план верха |
Рисунок 2.3 - Штамп, план низа |

подачей с приводом от вала пресса. Для повышения точности подачи в верхнюю плиту штампа встроены ловители.
Верхняя и нижняя плиты штампов крепятся непосредственно к прессу при помощи пневматических зажимов. На всякий случай в штампе предусмотрены пазы для крепления болтами и хвостовик для крепления за хвостовик верхней части штампа.
К верхней плите крепятся: шаговые ножи, а также непосредственно гибочные пунсоны. Последний гибочный пуансон также отрезает готовую деталь от ленты, после чего она по склизу попадает на ленточный конвейер и транспортируется в тару для деталей. При вырубке осуществляется прижим заготовки пружинным съемником.
На входе ленты для ее точного направления установлен специальный кронштейн с направляющими планками, предотвращающими боковые смещения ленты.
Удаление отходов от обрезки ленты шаговыми ножами происходит в специальный паз в нижней плите штампа, откуда периодически сдуваются пневмосдувом.
2.1.2 Выбор материала и термообработки деталей штампа
Рабочие детали штампов подвергаются ударной нагрузке с сильной концентрацией напряжений на рабочих кромках или на рабочей поверхности. Поэтому к материалу пуансонов и матриц предъявляются требования высокой или повышенной твердости и износостойкости при наличии достаточной вязкости.
Материал должен хорошо сопротивляться износу от трения, должен сохранять острые режущие кромки без разрушения и затупления в течение как можно большего времени. Материал должен быть дешевым и не дефицитным.
Выбор материала ведем с учетом локальной фактической нагрузки режущих кромок пуансонов и матриц в зависимости от отношения S/d /3/. При вырубке до 5 мм можно деталей простой конфигурации из материала толщиной применять:
-
углеродистые инструментальные стали небольшой прокаливаемости (диаметром до 25 мм) У8А, У10А, У8, У10;
-
легированные стали повышенной прокаливаемости (диаметром до 45 мм) Х09 (ШХ9), 9Х, 9ХС, ХВГ, 9ХВГ;
-
высокохромистые стали (диаметром до 80 мм) Х12Ф1, Х12Ф, Х12М, Х12ТФ, Х12М;
-
легированные стали повышенной вязкости 4ХС, 6ХС, 5ХВ2С, 5ХВГ.
Исходя из рекомендаций УГК-ТОС ЗИЛа выбираем следующие материалы для деталей штампа:
Пробивные матрицы - У10А, HRCэ 57...61
Пробивные пуансоны - У10А, HRCэ 57...61
Гибочная матрица - У10А, HRCэ 57...61
Гибочный пуансон - У10А, HRCэ 55...59
Шаговые ножи - У10А, HRCэ 55...59
Плиты - Сталь 35Л
Державка - Сталь 45
Прижимы – Сталь 20
Направляющие колонки и втулки – Сталь 20, цементация на глубину 0.5 мм до твердости HRCэ 61...65.
Штампы для холодной листовой штамповки представляют собой сложную конструкцию, состоящую из большого количества деталей разнообразного технологического и конструктивного назначения. Исходя из условий работы и различного характера сопряжения, эти детали требуют различной точности изготовления.
Поверхности деталей, не соприкасающихся с другими деталями, а так же поверхность отверстий после сверления должны иметь шероховатость поверхности не ниже величины 6.3;
Опорные поверхности плит обычной твердости, не каленых держателей пуансонов и матриц – шероховатость поверхности 1.6;
Рабочие поверхности гибочных и вытяжных пуансонов – не ниже 0.8;
Рабочие поверхности вырубных, пробивных пуансонов, рабочие поверхности вытяжных матриц, направляющие поверхности колонок и отверстия направляющих втулок изготавливаются с шероховатостью поверхности не ниже 0.4. [3]
2.1.3 Расчет исполнительных размеров разделительных пуансонов и матриц
При определении исполнительных размеров пуансонов и матриц для разделительных операций необходимо предусмотреть правильный выбор зазоров и допусков на рабочие размеры инструмента. Величина вырубаемой детали определяется размером матрицы, а величина пробиваемого отверстия определяется размером пуансона. При пробивке отверстий размеры пуансона и матрицы определяются зависимостями (2.1) [7]
(2.1)
где - номинальный размер детали;
- верхнее отклонение допуска на этот размер;
- величина одностороннего зазора;
- допуски на изготовление пуансона и матрицы, соответственно.
При вырубке отверстий размеры пуансона и матрицы определяются зависимостями (2.2)
, (2.2)
где - нижнее отклонение допуска на этот размер;
В данном случае расчету подвергаем размеры инструмента для пробивки отверстия диаметром 11 мм.
Допуски на размеры изделия заданы по 14-му квалитету ЕСДП составляют: диаметр 15+0.52. Величина одностороннего зазора для металла толщиной 1 мм из стали с составляет 0.030 мм [3]. Таким образом, имеем следующие исполнительные размеры пуансонов и матриц:
dм=15+0,040
dn=(15-2×0.030)-0.040=14.94-0.040
2.1.4 Расчет основных деталей штампа на прочность и жесткость
Матрица и пуансон определяют работоспособность, надежность и долговечность штампа. Их расчет - важнейший этап разработки документации штампа.
Проверочному расчету на прочность подлежат обычно наиболее нагруженные пробивные пуансоны небольших размеров. При пробивке отверстий, размеры которых сопоставимы с толщиной материала, локальные удельные нагрузки на режущие кромки пуансона в два - три раза больше, чем на режущие кромки матриц. В данном случае таких отверстий нет, поэтому расчет удельных давлений на режущие кромки пуансонов проводить не обязательно.
Пуансон следует проверить на сжатие по наименьшему сечению. Условие удовлетворительной прочности на сжатие может быть выражено зависимостью (2.3):
(2.3)
где - усилие реза, Н;
- площадь режущей кромки, мм;
- допустимое напряжение сжатия для закаленной стали У10А.
σсж=1,2×3,14×15×0,9×300×1/3,14×7.52=86,4 (МПа)
При неточности изготовления штампа возникает некоторое смещение пуансона относительно матрицы. Из-за этого возникает изгибающий момент, поэтому следует дополнительно проверить пуансон на смещение от изгиба. Принимаем величину смещения пуансона равной половине зазора между матрицей и пуансоном. В нашем случае присутствует поперечный изгиб стержня (пуансона), нагруженного с одного конца (жестко закрепленного) некоторым изгибающим моментом Ми. [7]
Условие изгибной прочности определяется по формуле (2.4):
(2.4)
где - изгибающий момент;
- момент сопротивления сечения, мм3;
- допустимое напряжение изгиба для стали У10А.
σu=1.2×3.14×15×0.9×300×1/0.1×153=45,2 (МПа)
Также необходимо проверить плиту штампа под опорной головкой пуансона на смятие. Условие допустимой прочности на смятие определяется формулой (2.19).
(2.5)
где - опорная поверхность головки пуансона, мм2;
- допустимое напряжение смятия для плиты штампа из стали Ст.3, в которую упирается пуансон.
σсм=1.2×3.14×15×0.9×300×1/0.1×252=9,8
Поскольку , то под головку пуансона можно не подкладывать стальную каленую пластину.
Также необходимо проверить пуансон на продольный изгиб, согласно формуле (2.6):
, (2.6)
где - модуль упругости первого рода для стали;
- момент инерции сечения пуансона, м4;
- коэффициент запаса.
L=4.43× (200×0.05×0.0154/2.5×1.2×3.14×15×0.9×300×2.5)-1/2=16 мм
В нашем случае свободная длина пуансона составляет 16 мм.
Подвергнутый расчету пуансон удовлетворяет всем необходимым условиям прочности и жесткости.
2.1.5 Расчет стойкости штампа
Долговечность штампов измеряется количеством деталей отштампованных до полного износа рабочих частей, определяемого невозможностью их восстановления и получением размерного брака штампуемых деталей.
Значительно раньше этого брака возникает брак по снижению качества штампуемых деталей (заусенцы при вырубке и пробивке, задиры, риски и царапины при вытяжке и гибке). Этот вид брака сравнительно легко устранить путем перешлифовки вырубных и пробивных штампов или зачистки наростов металла на поверхности вытяжных и гибочных штампов.
Таким образом, следует различать долговечность, или полную стойкость штампов, и промежуточную стойкость или стойкость между двумя перешлифовками.
Полная стойкость штампов находится в прямой зависимости от качественной стойкости, так как количество допустимых перешлифовок и зачисток ограничено полным использованием рабочих деталей штампов.
Стойкость штампов зависит от следующих факторов: сорта и механических свойств штампуемого материала; конфигурации детали; относительной толщины материала; конструкции штампа и типа производимой операции; величины зазора; материала и термообработки рабочих деталей штампа; состояния пресса; способа и типа смазки.
Стойкость штампов является условным понятием, так как различные рабочие части изнашиваются по-разному.
Расчет стойкости штампа производится по разделительной операции пробивки.
Расчетная формула для определения стойкости пробивных штампов до перешлифовки имеет вид (2.7) [7]:
(2.7)
где - предел прочности штампуемого материала, МПа;
К1 = 0.3 - коэффициент материала рабочих частей;
К2 = 0.55 - коэффициент толщины материала.
Указанная формула выведена для следующих производственно-технологических условий: штампуемый материал - Ст.3, Ст.4, Сталь 08кп, 08пс; толщина материала 1 мм; материал пуансона и матрицы - Сталь У10А; критерий износа - образование заусенца высотой 0.2 мм.
N= K1×K2×16000/((12×300×3001/2))1/3=70 тыс.дет.
2.2 Проектирование автоматизированного участка
Для повышения производительности и улучшения условий труда при штамповке используются средства автоматизации. На данном пресс – автомате используются разматывающее устройство, правильное устройство и валковая подача толкающего типа. Рассмотрим каждый механизм подробнее.
2.2.1 Расчет разматывающего устройства