ЖЕНЯ ДИПЛОМ ПЗ(2) (1052007), страница 13
Текст из файла (страница 13)
-
Проверка эксцентриситета положения равнодействующей
- Сечение по подошве фундамента в продольном направлении
- Сечение по подошве фундамента в поперечном направлении
Эксцентриситет положения в расчетных направлениях меньше единицы и, следовательно, равнодействующая нагрузок не выходит за пределы ядра сечения. Сечения полностью работают на сжатие, уточнение класса опоры по положению равнодействующей не требуется.
-
Расчет на опрокидывание.
Так как высота опор более 12м (см. рисунок П.3.) необходимо провести расчет на опрокидывание.
- Сечение в продольном направлении
Рисунок П. 3. - Расчетная схема загружения промежуточной опоры на опрокидывание в продольном направлении.
Разность площадей линий влияния опрокидывающих и удерживающих моментов определяется по формуле:
(10.3)
Искомая эквивалентная нагрузка:
- Сечение в поперечном направлении
Разность площадей линий влияния опрокидывающих и удерживающих моментов определяется по формуле:
(10.4)
Искомая эквивалентная нагрузка:
Классификация опор №2, 3, 4
Вес классифицируемой промежуточной опоры выше
подошвы фундамента Qi = 6246,515 тс; вес опоры выше обреза фундамента Qi =1953,515 тс.
Распределенная нагрузка от веса руслового пролетного строения - 90,96 тс/м; от веса верхнего строения пути – 6,87 тс/м.
Расчетное сопротивление скального грунта в основании опоры R = 200 тс/м3 . Высота руслового металлического пролетного строения – 21,00 м.
Расчетное сопротивление бутовой кладки опоры те же что у опор №1, 5.
Геометрические характеристики расчетных сечений промежуточной опоры :
- по подошве фундамента - А = 130,97 м2; pу =0,45м, pх = 1,039 м; Wх= 66,919 м3,Wy = 124,09 м3 .
- по обрезу фундамента - А = 88,81 м ;; Ру = 1,06 м; Wy. = 78,919 м3 ,Wy = 144,16 м3 .
-
Расчет по среднему давлению.
Расчетная схема загружения промежуточной опоры для расчета по среднему давлению аналогично рисунку П.1.
- По обрезу фундамента.
- По подошве фундамента.
-
Расчет по максимальному давлению.
- Сечение обреза фундамента в продольном направлении.
Расчетная схема загружения промежуточной опоры на максимальную нагрузку в продольном направлении приведена на рисунке П.2
Ветровая нагрузка составляет:
На опору -
тс;
На пролет
тс.
При определении принято
.
- Сечение по обрезу фундамента в поперечном направлении.
Расчетная схема загружения промежуточной опоры на максимальную нагрузку в поперечном направлении приведена на рисунке П.2.
Ветровая нагрузка составляет:
На опору -
тс;
На пролет
тс,
На подвижной состав -
тс.
,
.
- Сечение по подошве фундамента в продольном направлении.
,
- Сечение по подошве фундамента в поперечном направлении.
,
-
Проверка эксцентриситета положения равнодействующей
- Сечение по подошве фундамента в продольном направлении
- Сечение по подошве фундамента в поперечном направлении
Эксцентриситет положения в расчетных направлениях меньше единицы и, следовательно, равнодействующая нагрузок не выходит за пределы ядра сечения. Сечения полностью работают на сжатие, уточнение класса опоры по положению равнодействующей не требуется.
-
Расчет на опрокидывание.
- Сечение в продольном направлении
Разность площадей линий влияния опрокидывающих и удерживающих моментов определяется по формуле:
Искомая эквивалентная нагрузка:
- Сечение в поперечном направлении
Разность площадей линий влияния опрокидывающих и удерживающих моментов определяется по формуле:
Искомая эквивалентная нагрузка:
Расчет грузоподъемности береговой опоры № 0, № 6.
Опираемое пролетное строение ферма
= 34,00 так же из литого железа, весом по 70тс.
Расстояния от передней грани устоя до центров тяжести приложения
и
вычислены по чертежу:
,
м.
Нагрузки от веса верхнего строения пути и пролетного строения те же, что и в расчете промежуточных опор.
Расчетные схемы загружения береговой опоры для дальнейших расчетов приведены на рисунке П.4.
Грунты в основании фундамента с тем же сопротивлением что и у промежуточных опор.
Геометрические характеристики сечений:
- по подошве фундамента - А = 72,1615 м2,pу =1,277м, pх = 1,033 м; Wх= 72,54 м3,Wy = 76,1 м3 .
- по обрезу фундамента - А = 59,86м; ру = 1,58 м; pх = 1,27 м; Wх. = 76,1м3 ,Wy = 94,709 м3 .
-
Расчет по среднему давлению.
- Сечение по обрезу фундамента
Рисунок П.4- Расчетная схема загружения береговой поры.
(10.5)
где
сумма собственных весов частей тела устоя, расположенных выше рассматриваемого сечения с коэффициентами надежности по нагрузкам;
интенсивность постоянных распределенных по длине нагрузок;
коэффициенты надежности по нагрузке;
- Сечение по подошве фундамента.
-
Расчет по максимальному давлению.
- Сечение по обрезу фундамента.
Рисунок П. 5 - Расчетная схема загружения береговой опоры на максимальную нагрузку в поперечном направлении.
(10.6)
Где
сумма собственных весов частей тела устоя, расположенных выше рассматриваемого сечения с коэффициентами надежности по нагрузкам;
интенсивность постоянных распределенных по длине нагрузок;
коэффициенты надежности по нагрузке;
эксцентриситет приложения равнодействующей относительно центра тяжести;
Равнодействующую бокового давления от собственного веса грунта определяем:
( 10.6)
(10.7)
- Сечение по подошве фундамента.
Расчетная схема загружения береговой опоры по максимальному давлению приведена на рисунке П.4.
-
Проверка эксцентриситета приложения равнодействующей.
Расчетная схема загружения береговой опоры по положению равнодействующей приведена на рисунке П.4.
Все сечения полностью работают на сжатие и уточнять класс опоры по положению равнодействующей не требуется.
-
Расчет на опрокидывание.
Расчетная схема загружения береговой опоры для расчета на опрокидывание приведена на рисунке П.6.
-
Допускаемая временная вертикальная нагрузка интенсивностью- k
-
Эпюра горизонтального бокового давления на устой от нагрузки на призме обрушения
-
Эпюра бокового давления от собственного веса грунта
-
Линии влияния вертикальных сил.
-
Эпюра отпора грунта засыпки
-
D-центр опрокидывания.
Рисунок П.6.. - Расчетная схема загружения береговой опоры для расчета на опрокидывание.
(10.8)
(10.9)
,
5. Расчет на сдвиг.
Расчетная схема загружения береговой опоры для расчета на сдвиг приведена на рисунке 2.13.
Результаты расчетов береговых опор приведены в таблице 2.3.
ПРИЛОЖЕНИЕ Б
Расчет пирса для поперечной передвижки.
Определение тяговых усилий по формуле (5.12)
Вертикальная нагрузка определяется по формуле (5.15):
Горизонтальная нагрузка, формула (5.17):
Ветровая нагрузка формула (5.19):
Определяем усилия в стойках, расчеты к формуле (5.24):
NСТ1 =
= 308, 217 кН,
=
= 200,49 кН,
=
= 245,87 кН.
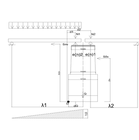
Проверка временных опор на опрокидывание в продольном и поперечном направлении выполняется по схеме Рисунок 10.1
Рисунок 10.1 – Расчетная схема пирса
Проверка в продольном направлении:
Проверка в поперчном направлении:
Число катков на погонный метр накаточного пути определятся по формуле:
ПРИЛОЖЕНИЕ В.
Технические характеристики бульдозера LIEBHERR PR 751 Mining
Бульдозер LIEBHERR PR 751 Mining.
| Техническая характеристика | Ед.изм. | Значение |
| 1. Длина | мм. | 4380 |
| 2. Ширина | мм. | 3550 |
| 3. Высота | мм. | 2500 |
| 4. Масса | т. | 39,2 |
| 5. Двигатель | л/с. | 326 |
ПРИЛОЖЕНИЕ Г.
Технические характеристики КамАЗ-65115.
КамАЗ-65115
| Наименование | Ед.изм. | Значение |
| 1.Грузоподъемность | т | 15 |
| 2.Собственная масса | т | 13,5 |
| 3.Полная длина | м | 7,2 |
| 4.Ширина | м | 2,7 |
| 5.Высота | м | 3,2 |
| 6.Погрузочная высота | м | 2,3 |
| 7.Мощность двигателя | л.с. | 320 |
| 8.Объем кузова | м3 | 15 |
| 9.Радиус разворота | м | 9,5 |
ПРИЛОЖЕНИЕ Д.
Технические характеристики экскаватора LIEBHERR R 313.















