Экипажная часть тепловоза
§15. Экипажная часть тепловоза
К экипажной части тепловоза относятся узлы, предназначенные для создания во взаимодействии с рельсами силы тяги, передачи вертикальных нагрузок на рельсы, тяговых и тормозных усилий, а также для восприятия направляющих усилий при движении в рельсовой колее.
Экипажная часть современного тепловоза состоит из кузова, кабин машиниста, главной рамы с автосцепками и тележек. Ряд промышленных тепловозов мощностью до 300 кВт (ТГК2М, ТГМ61, ТГМ23Д и др.), имеющих две или три оси, и, следовательно, сравнительно небольшую длину главной рамы, строят без тележек, а колесные пары размещают непосредственно в главной раме локомотива.
Кузов с кабинами машиниста служит для внешнего ограждения и защиты от атмосферных воздействий основных узлов и агрегатов тепловоза, а также создания необходимых условий для работы локомотивной бригаде. Кузова локомотивов выполняют вагонного (закрытого) или капотного типа.
Кузова вагонного (полностью закрытого) типа применяются на всех современных отечественных магистральных тепловозах и электровозах. Характерной особенностью этого типа кузова является то, что локомотивная бригада имеет возможность контролировать работу узлов и агрегатов и переходить из секции в секцию (на двух- и многосекционных локомотивах) без выхода наружу. Соответственно, между стенкой кузова и силовым оборудованием (например, дизелем) локомотива предусмотрены проходы, по которым можно пройти из одной кабины машиниста в другую.
Кузова капотного типа в нашей стране нашли применение, в основном, на маневровых и промышленных локомотивах. В этом случае для осмотра и обслуживания оборудования, находящегося под съемным капотом, из кабины машиниста нужно выйти на боковые площадки, огражденные поручнями. Кузова капотного типа легче и дешевле, здесь проще вести монтаж и демонтаж оборудования при ремонтах локомотивов. Однако суровый климат в большинстве районов нашей страны делает невозможным их использование на магистральных локомотивах. В ряде стран мира с более теплым климатом (например, в США) применяются магистральные локомотивы именно с кузовами капотного типа.
Главная рама является фундаментом для силовой установки и вспомогательного оборудования тепловоза. Она служит также для передачи тяговых, тормозных усилий и вертикальных нагрузок от веса оборудования на тележки тепловоза. На некоторых сериях магистральных тепловозов (2ТЭ116, ТЭП60, ТЭП70, ТЭП80 и др.) применяют так называемые цельнонесущие кузова. При этом рама и каркас кузова объединены в единую несущую конструкцию, что позволяет существенно снизить массу экипажной части. Снижению массы локомотивов также способствует использование в качестве материала цельнонесущего кузова легированных сталей или алюминиевых сплавов.
Тележки — это наиболее сложные и ответственные части экипажа, непосредственно взаимодействующие с рельсовой колеей. Их часто называют ходовой частью тепловоза. К основным узлам тележки относят: колесные пары, буксы, тяговый привод колесных пар, рессорное подвешивание, раму тележки, а также устройства связи главной рамы тепловоза с рамами тележек, обеспечивающие возможность поворота тележек относительно оси тепловоза при движении в кривых. Перечисленные узлы работают в тяжелых условиях эксплуатации. От прочности и надежности узлов тележек, качества их обслуживания и ремонта напрямую зависит безопасность движения поездов.
КОЛЕСНЫЕ ПАРЫ
Рекомендуемые материалы
Колесная пара является не только важнейшим узлом экипажной части тепловоза, но и характерным признаком подвижного состава железных дорог, отличая его от других видов наземного колесного транспорта.
Колесная пара представляет собой два колеса, напрессованные на одну ось на строго определенном расстоянии, которые вращаются вместе с ней с одинаковой частотой. Такая конструкция колесных пар локомотивов, вагонов и другого вида подвижного состава обеспечивает заданное направление и устойчивое их движение по рельсовой колее. Колесные пары воспринимают удары от неровностей пути, передают вес тепловоза на рельсы, участвуют в реализации силы тяги и тормозных сил в зонах контакта колес с рельсами, а также направляют движение экипажей в рельсовой колее.
Конструкция колесных пар тепловозов определяется типами передач и тяговыми приводами колесных пар.

Рис. 61. Колесная пара грузовых тепловозов с электрической передачей:
1 — ось; 2 — колесный центр; 3 — бандаж; 4 — бандажное кольцо; 5 — зубчатое колесо тягового редуктора; а — буксовая шейка; 6 — подступичная часть оси; в — предподступичная часть; г— шейка зубчатого колеса; д — шейка моторно-осевых подшипников; е — средняя часть оси; ж — отверстие
Колесные пары магистральных грузовых тепловозов (ТЭЗ, 2ТЭ10Л, 2ТЭ10В, ЗТЭ10М, 2М62У, 2ТЭ116 и др.) с электрической передачей и опорно-осевым подвешиванием тяговых электродвигателей в основном унифицированы и различаются некоторыми размерами. Унифицированная колесная пара серийных грузовых тепловозов состоит из следующих деталей (рис. 61): оси 1 и двух колесных центров 2 с надетыми на них в горячем состоянии бандажами 3. Бандажи 3 удерживаются на внешних поверхностях центров 2 силами сжатия (натяга) в месте посадки. Для дополнительного крепления с центром 2 в пазы бандажей 3 заведены бандажные кольца 4, изготовленные из специального стального проката. На оси 1 между колесами закреплено ведомое зубчатое колесо 5, которое является элементом тягового привода колесной пары.
Следует особо подчеркнуть, что колесные пары всех серий отечественных тепловозов имеют односторонний тяговый привод — это когда на оси напрессовано одно зубчатое колесо тягового редуктора. Унифицированные колесные пары серийных грузовых электровозов (ВЛ10, ВЛ11М, ВЛ60 и ВЛ80 всех модификаций и др.) имеют двухсторонний тяговый привод, т.е. привод оси от тягового электродвигателя осуществляется с помощью двух цилиндрических тяговых редукторов, что и является принципиальным их отличием от колесных пар грузовых тепловозов.
На рис. 61 также приведены основные фиксированные размеры унифицированной колесной пары грузового тепловоза. Так, максимальное расстояние между внутренними гранями бандажей колес одной колесной пары составляет 1440 мм, диаметр Дк ее колес по кругу катания (измеряется на расстоянии 70 мм от внутренней грани поверхности бандажей со стороны гребня) — не более 1055 мм, а разница между величинами Дк колес одной колесной пары должна быть не более 0,5 мм.
Оси колесных пар тепловозов изготавливают из заготовок углеродистой мартеновской стали Ос.Л. Ось имеет различный диаметр по длине в зависимости от величины действующих усилий и назначения отдельных ее участков. Во избежание концентрации напряжений все переходы с одного диаметра оси на другой сопрягают плавными кривыми (галтелями).
Буксовые шейки а оси (см. рис. 61) служат для монтажа подшипников и для унифицированной колесной пары тепловоза имеют диаметр 160 мм. Далее следуют подступичные части б оси диаметром 200 мм, на которые надевают лабиринтные уплотнения букс. Наибольший диаметр (235 мм) имеют подступичные части в, на которые напрессовывают колесные центры 2, и г, где находится зубчатое колесо 5. На шейки д оси диаметром 215 мм через моторно-осевые подшипники опирается тяговый электродвигатель тепловоза. Между шейками д расположена средняя часть е оси диаметром 205 мм.
Цилиндрические поверхности оси (кроме средней части е) упрочняют накаткой стальными закаленными роликами при нажатии на ролик 30 — 40 кН. Поверхности шеек оси после накатки шлифуют под посадку подшипников, что позволяет повысить износостойкость оси почти в 2 раза. В торцах осей с обеих сторон расточены отверстия диаметром 80 мм, в одно из которых запрессовывают втулку привода скоростемера.
С 1986 г. на грузовых тепловозах серий 2ТЭ116 и 2ТЭ10У стали устанавливать модифицированные тяговые электродвигатели постоянного тока ЭД-118Б, которые, в отличие от двигателей ЭД-118А, имеют систему принудительной смазки моторно-осевых подшипников (МОП). Шейки д осей колесных пар этих серий тепловозов имеют меньший диаметр — 210 мм.
В средней части е оси колесных пар тепловозов 2ТЭ10У и 2ТЭП6 сделано утолщение для крепления венца зубчатого колеса привода насоса циркуляционной смазки МОП. Таким образом, принудительная смазка МОП каждой колесной пары осуществляется индивидуальным масляным насосом, имеющим механический привод от оси. Для предотвращения утечек смазки МОП и ее попадания на бандажи и рельсы на краях шеек д оси колесных пар этих локомотивов напрессованы лабиринтные кольца уплотнения.
У осей колесных пар пассажирских тепловозов с опорно-рамным подвешиванием тяговых двигателей шейки г и д не предусмотрены в связи с тем, что моторно-осевые подшипники и зубчатое колесо размещены на так называемом полом валу. Более подробно об устройстве опорно-осевого и опорно-рамного подвешивания тяговых электродвигателей тепловозов будет рассказано в последующих разделах.
Колесные центры колесных пар тепловозов изготавливают дисковыми (сплошными) и спицевыми. Их отливают из мартеновской стали повышенного качества марки 20Л-1П или 25Л-Ш. Колесный центр 2 унифицированной колесной пары тепловозов состоит из ступицы, напрессованной на подступичную шейку в (см. рис. 61) оси 1 колесной пары, обода, на котором крепится бандаж 3, и промежуточной части, выполненной в виде диска (дисковые центры) или спиц (спицевые центры). Спицевые центры легче дисковых, но стоимость их изготовления значительно выше. Спицевые колеса применены лишь на тепловозах 2ТЭ121, а также электровозах ВЛ19, ВЛ22М, ЧС2 и ЧС4, моторных вагонах электропоездов.
Посадочные места ступицы и обода центра подвергают механической обработке, после чего колесные центры балансируют. Для уменьшения веса дисковых центров в их промежуточной части делают отверстия ж.
Особенностью конструкции колесных центров серийных грузовых электровозов являются удлиненные ступицы, на каждую из которых напрессовывают зубчатые колеса тяговых приводов.
Бандажи колесных пар тепловозов непосредственно взаимодействуют с рельсами в зоне контактной площадки и работают в довольно сложных условиях. Под воздействием огромных усилий от веса оборудования тепловоза (величина вертикальных сил достигает 150 кН или 15 т) происходит упругая деформация (смятие) поверхности бандажа и рельса, в результате чего появляется контактная площадка в форме эллипса площадью 300 — 400 мм2. Отметим, что если бы контактировали абсолютно жесткие цилиндрические тела, то контакт колеса и рельса был бы точечным.
При движении тепловоза в режиме тяги на поверхность рабочей площадки бандажей, помимо вертикальных сил, действуют продольные (относительно оси пути) силы сцепления и поперечные силы, вызывающие скольжение поверхности бандажей по рельсам. Вследствие действия этих и других сил при движении тепловоза материал бандажей подвергается смятию (искажению геометрической формы), растяжению, сжатию, термическому воздействию, особенно при торможении, а также повышенному износу (прокату). При прохождении колесной парой стыков рельсов и неровностей пути бандажи колесных пар, многие узлы и детали экипажной части тепловозов также воспринимают значительные динамические ударные нагрузки, действуют и другие силы.
Для того чтобы обеспечить безопасность движения поездов и минимизировать износ (прокат) бандажей колесных пар, к материалу бандажей предъявляются довольно противоречивые требования. С одной стороны, материал бандажей должен быть достаточно вязким, чтобы не разрушаться при ударах, с другой — обладать высокими износостойкостью и твердостью (по Бринелю НВ 269), чтобы сопротивляться смятию.
Бандажи колесных пар изготавливают (прокатывают) из раскисленной мартеновской стали 60 марки 2, так называемой бандажной стали, с содержанием углерода не выше 0,65 %. В состав бандажной стали также входят следующие легирующие добавки, собственно обеспечивающие выполнение вышеперечисленных требований к материалу бандажей, а именно: марганец 0,6 — 0,9 %; медь не более 0,3 %; кремний 0,2 — 0,42 %; никель 0,25 %; хром не более 0,2; ванадий не более 0,1 %. После изготовления бандажи подвергают закалке с последующим отпуском.
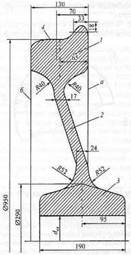
Профиль бандажа колесных пар тепловозов (рис. 62) имеет специальную конфигурацию и состоит из гребня а (реборды), двух конических поверхностей — основной с конусностью 1:10 (уклон 1:20) и боковой конусностью 1:3,5 (уклон 1:7), а также торцовой фаски под углом 45°.
Рис.62. Профиль бандажа колесных пар тепловоза
На рис. 62 показаны основные размеры профиля бандажа тепловозов. Так, толщина нового бандажа составляет 75 мм, без учета размеров гребня. Гребень бандажа а фактически задает направление движения локомотива и предохраняет колесную пару от схода с рельсов.
При движении колесной пары в рельсовой колее между гребнями колес и внутренними гранями головок рельсов обязательно должны быть зазоры, чтобы предупредить возможное заклинивание колесной пары в колее и уменьшить силы трения. Величина минимального суммарного зазора δ при движении по прямому горизонтальному пути составляет (см. рис. 61 и 62) δ = (1520 - 4) – 1440 - 2 × 33 = 10 мм. Здесь: (1520 - 4) — наименьшая ширина рельсовой колеи (см. рис. 61); 1440 —наибольшее расстояние между внутренними гранями бандажей;
33 — толщина гребня нового бандажа.

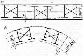
Рис. 63. Движение двухосной тележки по прямому (а) участку пути и в кривой радиусом R(б)
Несложно подсчитать и максимальную величину δ, которая при новых бандажах составит δ = 23 мм. Главное назначение конической формы поверхности бандажа — обеспечивать синусоидальную траекторию перемещения колесной пары (в плане) в пределах путевых зазоров без длительного прижатия гребней колесных пар к одному из рельсов. Такую же извилистую траекторию движения по прямому пути, похожую на синусоиду, имеет двухосная тележка (рис. 63,а).
Несколько иная картина наблюдается при движении двухосной тележки по кривой радиусом R (рис. 63,б). В этом случае на тележку дополнительно действуют центробежные силы, которые не только прижимают гребни колес к внутренней части наружного рельса, но и создают некоторый поперечный перекос экипажа. Для избежания заклинивания гребней бандажей внутри рельсовой колеи при перекосе экипажа кривые участки делают с уширением на величину Δ. При радиусе кривой от349 до 300 м Δ =10 мм, при R = 300 м — Δ = 15 мм.
Из рис. 63,б следует, что путь, проходимый одним колесом колесной пары по внешнему рельсу кривой, больше, чем другим колесом по внутреннему рельсу. Следовательно, при цилиндрической форме бандажа при движении в кривой неизбежно проскальзывание колеса, движущегося по внешнему рельсу, что привело бы к значительной потере мощности тепловоза на преодоление сил трения скольжения колес по рельсам и их повышенному износу. Итак, второе назначение конусности 1:10 рабочей поверхности бандажа (см. рис. 62) — облегчение прохождения тепловозом кривых участков пути.
Конусности боковой части бандажа (уклон 1:7) и торцовая фаска 6×45° служат для безударного прохождения стрелочных переводов. Как уже отмечалось выше, в процессе эксплуатации происходит не только износ (прокат) поверхности катания и подрез гребня, но и смятие металла на поверхности бандажа, который постепенно заполняет торцовую фаску.
Опыт эксплуатации грузовых тепловозов на железных дорогах нашей страны показал, что среднесетевая интенсивность проката бандажей их колесных пар составляет 0,38 мм на 104 км пробега. При увеличении протяженности кривых участков пути и с уменьшением радиусов кривых интенсивность проката бандажей возрастает и может достигать величины 1 мм на 104 км пробега локомотива.
По мере износа и достижения предельных значений проката и толщины гребня колесные пары поступают в основное локомотивное депо на техническое обслуживание ТО-5, на котором производится обточка колесных пар без выкатки из-под локомотива. Основная цель ТО-5 — восстановление первоначального профиля бандажей или их замена на новые. Во втором случае отбракованная колесная пара выкатывается из-под локомотива, разбирается, ремонтируется, формируется и проходит полное освидетельствование в основном депо.
Формированием колесных пар называют процесс сборки колесных пар из новых элементов при их изготовлении. Сборку колесных пар производят как с использованием гидравлического пресса (холодный способ), так и тепловым способом с предварительным нагревом детали. Прочность посадки обеспечивается натягом, т.е. превышением диаметра места посадки (оси колесной пары) над диаметром отверстия напрессовываемой детали (центра).
Формирование колесной пары тепловоза начинается с посадки на ось зубчатого колеса (или его ступицы). Натяг между сопрягаемыми поверхностями должен быть в пределах 0,18 — 0,22 мм, задиры и забоины на них не допускаются. Зубчатое колесо 5 нагревают до температуры 160 — 200 °С. Подступичную часть г (см. рис. 61) оси покрывают тонким слоем эластомера ГЭН-150 или лаком марки ВДУ-3 для защиты сопрягаемых поверхностей от коррозии. После посадки и остывания зубчатого колеса прочность соединения проверяется на прессе. При воздействии силы 700 кН зубчатое колесо должно оставаться неподвижным. Процесс напрессовки зубчатого колеса фиксируется в виде диаграммы на специальных бланках.
Ось с зубчатым колесом запрессовывают в колесные центры в холодном состоянии. Перед установкой на гидравлический пресс посадочные поверхности оси и центров протирают насухо, а затем смазывают растительным маслом (натуральной олифой), чтобы не допустить задиров при сборке и предохранить сопрягаемые поверхности от коррозии. Натяг должен быть 0,2 — 0,35 мм, усилие в конце запрессовки — 950— 1400 кН.
Процесс запрессовки оси в колесные центры записывается в виде диаграммы (графической зависимости усилия пресса от перемещения колесного центра по посадочной поверхности). Запись характера протекания запрессовки дает возможность судить, насколько хорошо были подготовлены посадочные поверхности. При удовлетворительной запрессовке ее диаграмма имеет вид плавно нарастающей кривой, слегка выпуклой по всей длине запрессовки.
При формировании колесных пар пассажирских тепловозов применяют исключительно тепловой способ. Ступицу центра в этом случае нагревают в электрогорне до температуры 250 — 320 °С током промышленной частоты.
Для надежной посадки бандажа на колесный центр создают натяг 1,1 — 1,45 мм. Перед посадкой проверяют целостность бандажей (дефектоскопируют) и определяют их твердость. Бандажи одной колесной пары должны иметь примерно одинаковую твердость. Разность твердости по Бринелю двух бандажей одной колесной пары не должна превышать величины НВ 20.
Бандаж нагревают в индукционном горне до температуры 250 — 300°С, после чего обод центра б заводят в нагретый бандаж до упора в бурт г (см. рис. 62).
При медленном остывании бандаж плотно сжимает центр. Когда температура бандажа снижается, но имеет температуру не ниже 200 °С, в его паз заводят бандажное кольцо в (см. рис. 62), изготовленное из фасонной стали. Затем обкатывают прижимной бурт бандажа для плотного охвата кольца. Таким образом, упорный бурт г препятствует смещению бандажа в случаях сильного нагрева, например, при интенсивном торможении в одну сторону, а кольцо в — в другую.
После полного остывания бандажа плотность прессовой посадки проверяют по звуку от ударов молотком по кругу катания.
Чтобы контролировать неподвижное положение бандажа относительно центра, на боковой поверхности бандажа выбивают (на длине 25 мм) четыре-пять кернов глубиной 1 — 1,5 мм, а на ободе колесного центра делают риску глубиной 1 мм против средней лунки. На вновь сформированных колесных парах центры окрашивают эмалью черного цвета, а наружные грани бандажей — эмалью белого цвета. После окраски колесной пары по кернам и риске наносят полосу шириной 25 мм: на бандажах красной краской, а на ободах центров — белой.
Полное освидетельствование колесных пар тепловозов производится в случаях смены хотя бы одного элемента колесной пары (бандажа, левого или правого центра, зубчатого колеса и др.). Причинами смены элементов колесной пары могут быть: их износ или повреждения, особенно полученные после столкновения локомотива, схода с рельсов, а также неясности клейм и знаков, нанесенных на детали колесной пары.
При полном освидетельствовании колесных пар выполняют следующие виды работ:
- промывку колесной пары в моечной машине и ее очистку от краски;
- проверку клейм и знаков на элементах колесной пары;
- дефектоскопию всех элементов колесной пары с помощью дефектоскопов магнитопорошкового (МД12-ПС), ультразвукового (УД2-102) и вихретокового (ВД20НФ) контроля;
- замену бракованных деталей на новые и обточку последних;
- проверку соответствия размеров деталей колесной пары установленным нормам допусков и износов;
- нанесение клейм и знаков;
- окраску и консервацию колесной пары.
Клеймение колесных пар. При формировании, ремонте и освидетельствовании колесных пар тепловозов применяют различные клейма и знаки, наносимые на осях, бандажах, зубчатых колесах и колесных центрах.
В качестве примера на рис. 64 приведено клеймение торцовых поверхностей оси колесной пары тепловоза. Торец оси, на котором наносят постоянные знаки, относящиеся к ее изготовлению, считается правой стороной оси и колесной пары. На левом торце оси наносят только временные знаки (клейма), которые после каждого освидетельствования колесной пары заменяют новыми.

Рис. 64. Знаки и клейма на правом (а) и левом (б) торцах оси колесной пары тепловоза:
на правом торце:1— номер завода-изготовителя заготовки оси; 2 — месяц и год изготовления; 3 — порядковый номер оси; 4 — клеймо приемщика ОАО «РЖД», принявшего обработанную ось; 5 — номер завода, где обрабатывалась ось; 6 — метод формирования колесной пары (ф — прессовый, фт —тепловой);7 —номер предприятия, где была сформирована колесная пара; 8 — месяц и год формирования; 9 — клеймо приемщика ОАО «РЖД», принявшего сформированную колесную пару; 10 — клеймо места проведения балансировки; 11 — освидетельствование с выпрессовкой оси; 12 —- номер предприятия, где проведено освидетельствование; 13 — месяц и год освидетельствования; 14 — клеймо приемки после освидетельствования;
на левом торце:1— место постановки клейм при смене бандажей (СБ), спрессовки левого (ЛД) или правого (ПД) колесного центра; 2 — условный номер ремонтного пункта; 3 — месяц и год полного освидетельствования; 4 — клейма приемки

Рис. 65. Цельнокатаное колесо колесной пары вагонов
Необходимо отметить, что при формировании и полном освидетельствовании все элементы каждой колесной пары проходят многоступенчатый контроль. Этим занимаются независимые от данного предприятия специалисты — приемщики ОАО «РЖД», имеющие персональные клейма и знаки.
Такая многоступенчатость и тщательность контроля технического состояния и фиксированных размеров колесной пары обусловлены важностью той роли, которую колесные пары играют в обеспечении безопасности движения поездов и надежной работы железнодорожного транспорта в целом.
Люди также интересуются этой лекцией: Православие.
Особенности конструкции и формирования колесных пар вагонов. На современных грузовых и пассажирских вагонах нашей страны применяют так называемые безбандажные колесные пары.
Безбандажные колесные пары вагонов состоят из оси и двух одинаковых стальных цельнокатаных колес, т.е. фактически из двух разных элементов. Применение на вагонах бандажных колесных пар (как на локомотивах) специалистами признано нецелесообразным по причинам недостаточной прочности и надежности, трудности обеспечения постоянного контроля за техническим состоянием, значительной трудоемкости формирования и повышенной массы бандажных колес.
Стальное цельнокатаное колесо (рис. 65) состоит из обода 1, диска 2 и ступицы 3. Ступица 3 служит для прессового соединения с подступичной частью оси колесной пары. Профиль поверхности обода цельнокатаного колеса вагонов точно такой же, как и профиль бандажа колесных пар тепловозов (см. рис. 62). Различия в ширине колес — у вагонов она меньше на 10 мм, и в диаметрах колес (измеряемых по кругу катания на расстоянии 70 мм) — у вагонов эта величина 950 мм.
Цельнокатаные колеса вагонов изготавливают из мартеновской стали двух марок: марки 1 для колесных пар пассажирских вагонов с содержанием углерода 0,44 — 0,52 % и марганца 0,8 — 1,2 %, а также марки 2 для колесных пар грузовых вагонов с содержанием углерода 0,55 — 0,65 % и марганца 0,5 — 0,9 %.
Рабочие поверхности цельнокатаных колес, контактирующих с рельсами, подвергаются упрочняющей термической обработке, благодаря которой достигается их твердость по Бринелю на глубине 30 мм: для стали 1 — НВ 248, для стали 2 — НВ 255.
Оси колесных пар грузовых и пассажирских вагонов изготавливают из осевой стали марки Ос.В. Срок службы осей колесных пар вагонов — 15 лет. Формирование вагонных колесных пар производится в колесных цехах вагоностроительных и вагоноремонтных заводов, а также в вагонных колесных мастерских.





















