Для студентов МГТУ им. Н.Э.Баумана по предмету Теория механизмов и машин (ТММ)Проектирование и исследование механизмов ДВС компрессорной установкиПроектирование и исследование механизмов ДВС компрессорной установки
5,0051
2015-11-182025-04-07СтудИзба
Курсовая работа 150: Проектирование и исследование механизмов ДВС компрессорной установки вариант А
-50%
Описание
Проектирование и исследование механизмов ДВС компрессорной установки
Техническое задание
ДВС-насосная установка представляет собой V-образную поршневую машину, у которой развал осей цилиндров I и II равен 60 (рис. 1, а). она состоит из двух кривошипно-ползунных механизмов, причем кривошипы 1 и 1`, шатунов 2 и 4 одинаковы, а поршни 3 и 5 имеют разные диаметры: диаметр цилиндра I ДВС равен d3, диаметр цилиндра Iiнасоса – d5.Движение передается от ДВС через муфту М (рис. 1,б) на коленчатый вал насоса 1`. Для обеспечения заданной амплитуды колебаний угловой скорости на коленчатом валу двигателя установлен маховик Мах, обеспечивающий заданный коэффициент неравномерности d.
Рабочие процессы в циллиндрах I и II двухтактные. Последовательность чередования рабочих процессов в цилиндрах представлена в табл. 1. Характер изменения давления в цилиндре по ходу поршня 3 представлен индикаторной диаграммой ДВС, данные для построения которой приведены в табл.2. В цилиндре II на этапе нагнетания pi/pmax=1, а при всасывании pi/pmax н = -0,006.
Максимальное давление в цилиндре двигателя pmax д в зависимости от максимального давления в цилиндре насоса pmax н определяется по формуле pmax д =a pmax н (dн/dд)2/hE.
Перемещение впускного клапана двигателя осуществляется кудачковым механизмом. Кулачек приводится в движение посредством зубчатой передачи 6-7-6` от коленчатого вала (угол наклона линии зуба b=0). Закон изменения тангенциального ускорения at толкателя в зависимости от угла поворота кулачка представлен на рис. 1, в.
Исходные данные ![]()
Содержание курсового проекта
При выполнении курсового проекта прорабатываются следующие вопросы:- 1.Проектирование основного рычажного механизма и определение закона движения его начального звена:
б) анализ характера изменения внешних сил, действующих на звенья механизма;
в) выбор динамической модели машины и определение ее параметров – суммарного приведенного момента сил и суммарного приведенного момента энерции;
г) определение закона движения начального звена механизма;
- 2. Силовой расчет рычажного механизма:
б) определение главных векторов сил инерции и главных моментов сил инерции;
в) анализ силового нагружения входного, выходного и промежуточных звеньев механизма;
г) определение сил, действующих в кинематических парах механизма;
д) определение неизвестной внешний силы(или момента) и оценка погрешности расчета.
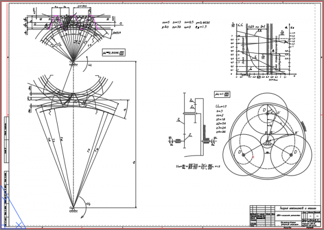
- 3. Проектирование зубчатой передачи и планетарного редуктора:
б) расчет геометрических параметров зубчатых колес и передачи;
в) исследование станочного зацепления исходного производящего контура с меньшим зубчатым колесом и профилирование зуба(включая переходную кривую) методом огибания(обкатки);
г) построение схемы зацепления зубчатых колес и обеспечение основных элементов колес передачи;
д) проектирование кинематической схемы зубчатого планетарного механизма(выбор числа зубьев колес) по заданному значению передатосчного отношения с учетом условий соседства сателлитов, соосности входного и выходного валов и возможности сборки механизма в многосателлитном исполнении.
- 4. Проектирование кулачкового механизма:
б) построение графика передаточной функции скорости толкателя и графика перемещения толкателя по заданной форме графика его ускорения;
в) выбор оптимальных размеров кулачкового механизма с учетом допустимых углов давления;
г) построение профиля кулачка;
д) построение графика углов давления в функции угла поворота кулачка.
Чертежи
Лист 1 - Определение закона движения
Лист 2 - Силовой расчет
Лист 3 - Проектирование зубчатой передачи
Лист 4 - Проектирование кулачкового механизма ![]()
Характеристики курсовой работы
Учебное заведение
Семестр
Номер задания
Вариант
Просмотров
447
Качество
Идеальное компьютерное
Размер
1,03 Mb
Преподаватели
Список файлов
РПЗ.doc
Расчеты.xls
Проектирование зубчатой передачи.txt
Лист (1).dwg
Лист (2).dwg
Лист (3).dwg
Лист (4).dwg

Вам все понравилось? Получите кэшбэк - 40 рублей на Ваш счёт при покупке. Поставьте оценку и напишите положительный комментарий к купленному файлу. После Вы получите деньги на ваш счет.