Для студентов МГТУ им. Н.Э.Баумана по предмету Технология конструкционных материалов (ТКМ)Разработка технологии изготовления отливок - ОграничительРазработка технологии изготовления отливок - Ограничитель
5,0054
2023-03-192023-03-19СтудИзба
ДЗ 1: Разработка технологии изготовления отливок - Ограничитель вариант 9, 14
Описание
Принято Бекаевым
Ограничитель
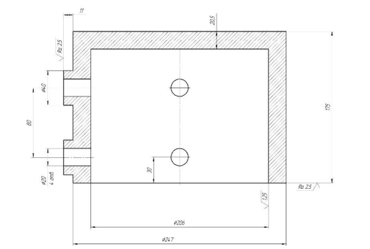
По заданному чертежу детали требуется изобразить форму отливки, определить коэффициент использования материала (КИМ), из нескольких возможных вариантов литья в песчаную форму выбрать наиболее рациональный и для него проработать литейную форму с модельным комплектом. Все расчёты полностью привести в домашнем задании.
С учебной целью упрощения выполнения домашнего задания принимаем следующие допущения, используя справочник[1]:
● все отливки получаем литьем в песчаные формы с использованием или без использования стержней;
● все отливки имеют 7-12 класс точности;
● радиусы округления пересекающихся поверхностей (галтели) составляет 5-7 мм для наружных поверхностей, 7-9 мм – для внутренних;
● формовочные уклоны и припуски под дальнейшую механообработку определять по таблицам 7 и 8, сборника задач[1] (стр. 93-94);
● размеры стержневых знаков выбрать из таблиц 9 и 10, сборника задач[1](стр. 94);
● при подсчёте КИМ не учитывать объём металла, идущий на заполнение литниковой системы с последующим застыванием в ней.
![]()
Ограничитель
По заданному чертежу детали требуется изобразить форму отливки, определить коэффициент использования материала (КИМ), из нескольких возможных вариантов литья в песчаную форму выбрать наиболее рациональный и для него проработать литейную форму с модельным комплектом. Все расчёты полностью привести в домашнем задании.
С учебной целью упрощения выполнения домашнего задания принимаем следующие допущения, используя справочник[1]:
● все отливки получаем литьем в песчаные формы с использованием или без использования стержней;
● все отливки имеют 7-12 класс точности;
● радиусы округления пересекающихся поверхностей (галтели) составляет 5-7 мм для наружных поверхностей, 7-9 мм – для внутренних;
● формовочные уклоны и припуски под дальнейшую механообработку определять по таблицам 7 и 8, сборника задач[1] (стр. 93-94);
● размеры стержневых знаков выбрать из таблиц 9 и 10, сборника задач[1](стр. 94);
● при подсчёте КИМ не учитывать объём металла, идущий на заполнение литниковой системы с последующим застыванием в ней.

Характеристики домашнего задания
Учебное заведение
Номер задания
Просмотров
152
Качество
Идеальное компьютерное
Размер
965,79 Kb
Список файлов
ТКМ_1_Типарь.pdf
Комментарии
Нет комментариев
Стань первым, кто что-нибудь напишет!
МГТУ им. Н.Э.Баумана


















