Вопросы/задания к заданиям: Производство заготовки
Описание
1) по чертежу детали выбрать и сравнить все возможные варианты производства заготовки 3-5 вариантов заготовки
2) подробно описать наиболее рациональный способ получение заготовки
3) указать применяемое технологическое оборудование и оснастку
4) составить технологический процесс получения заготовки
5) сделать эскиз заготовки выбранного способа производства указать основные размеры массу и основные технологические требования к ней
- Выбираем и сравниваем все возможные варианты производства заготовки.
Особенности конструкции.
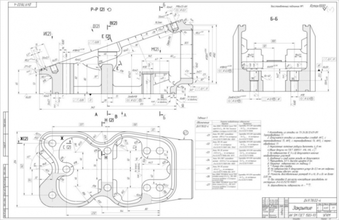
Деталь-представитель «Закрытие Д49.78.02-4» представляет собой литую корпусную деталь. На рисунке 1.2 представлен чертеж детали-представителя «Закрытие Д49.78.02-4».
Конструктивные формы образованы в основном сочетанием простых (плоских, цилиндрических) и сложных поверхностей (радиусный контур, сопряжения). Габаритные размеры детали: 386×204×201 мм.
Обработанные поверхности детали имеют различные шероховатости: Rz80 мкм, Rz40 мкм, Rz20 мкм, Ra2,5 мкм.
Наиболее точная поверхность – отверстие 130Н7, шероховатость поверхности Ra2,5 мкм. К этому отверстие предъявляются требование параллельности относительно поверхности основания «П». Так же точными являются 2 отверстия 22Н7, шероховатость поверхности Ra2,5 мкм
Технические требования, предъявляемые к детали, изложены в технических условиях на изделие и в технических требованиях чертежа детали.
Изготавливается из отливки по ТУ 24.06.12.401-89.
Деталь изготавливается из алюминия АК 5М ГОСТ 1583-93.
Алюминиевый сплав обладает наилучшими литейными и механическими свойствами, широко применяется для крупных деталей сложной конфигурации работающих при вибрационных и динамических нагрузках.
Химический состав стали АК 5М ГОСТ 1583-93:
Железо Fe – до 1,5%
Кремний Si – 4,5– 5,5%
Марганец Mn – до 0,5%
Алюминий Al – 90,7 – 94,15%
Медь Сu – 1-1,5%
Бериллий Be – до 0,1%
Магний Mg – 0,35-0,6%
Цинк Zn– до 0,01%


Рис.1.2. Чертеж детали-представителя «закрытие Д49.78.02-4»