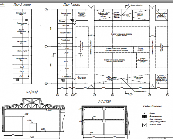
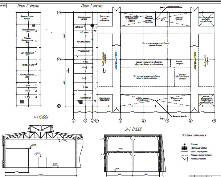
Для студентов МГТУ им. Н.Э.Баумана по предмету Проектирование технологических комплексов механосборочного производства (МТ-3)Проектирование технологического комплекса по изготовлению деталей и узлов общего машиностроенияПроектирование технологического комплекса по изготовлению деталей и узлов общего машиностроения
4,88560
2021-07-072021-07-07СтудИзба
Курсовая работа: Проектирование технологического комплекса по изготовлению деталей и узлов общего машиностроения
-50%
Описание
Характеристики курсовой работы
Учебное заведение
Просмотров
14
Размер
3,99 Mb
Список файлов
9
Листы.pdf
РПЗ.pdf
Комментарии
Нет комментариев
Стань первым, кто что-нибудь напишет!


МГТУ им. Н.Э.Баумана


















