Курсовая работа: 7-и этажное жилое здание в г. Красноярск
Описание
Вариант №40
Содержание
1.Исходные данные 3
1.1Характеристика строительной площадки 3
1.2 Краткая характеристика проектируемого объекта 3
2. Инженерно-геологические изыскания 5
2.1Определение физико-механических характеристик грунта 5
2.2Построение геологического плана 7
2.3. Заключения о площадке строительства 8
3. Выбор глубины заложения подошвы фундамента 8
4. Сбор нагрузок 95. Определение конечной (стабилизационной) осадки фундамента мелкого заложения методом послойного суммирования 32
6. Проектирование свайного фундамента 41
7. Расчет основания свайного фундамента по II группе предельных состояний – по деформациям 53
8. Определение конечной (стабилизационной) осадки свайного фундамента методом послойного суммирования 59
9. Технико-экономические показатели ФМЗ и свайного фундамента 68
Список литературы 77
1.Исходные данные
- Характеристика строительной площадки
Начало работы: август
Район строительства: г. Красноярск
Таблица1. Данные инженерно-геологических изысканий
Таблица2.Физическиесвойствагрунтовстроительнойплощадки
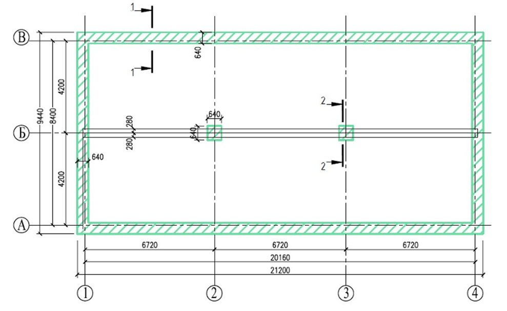
1.2Краткаяхарактеристикапроектируемогообъекта
Рис.1.1Конструктив
ная схема здания.
Рис.1.2Конструктивная схема здания.
Высота здания 27,52 м, с размерами в плане 21,20 х 9,44 м, количество этажей 9, высота этажа (от пола до потолка) - 2,78 м; имеется подвал - 3 м.
Конструктивная схема - с неполным каркасом, с продольными несущими стенами и внутренними колоннами с опиранием панелей перекрытий по двум сторонам.
Стены наружные - кирпичная кладка толщиной 640мм из пустотелого керамического кирпича М-125 и теплоизоляционным цементным раствором на пористых заполнителях, и внутренней отделкой из высококачественной штукатурки толщиной 20мм.
Несущие колонны внутренние - выполнены из полнотелого глиняного керамического кирпича М-125 на цементно-песчаном растворе М100, квадратного сечения с шириной грани 640мм с отделкой из высококачественной штукатурки толщиной 20мм по периметру.
Перекрытия - сборные железобетонные панели с круглыми пустотами толщиной 220мм типа 1ПК или 2ПК опирающиеся на несущие стены и на ригель двухполочный.
Конструкция полов жилых помещений - плита ж/б многопустотная δ=220 мм, γ =13,7-14,2 кН/м3, керамзитобетон D800 δ=70 мм, γ =8 кН/м3, стяжка ц/п δ=25 мм, γ =22,5 кН/м3, ламинат на звукоизоляционной подложке δ=15 мм, γ =11 кг/м3.
Конструкция плит покрытия - плита ж/б многопустотная δ=220 мм, γ =13,7-14,2 кН/м3, пенобетон литой D400 δ=300 мм, γ =4 кН/м3, разуклонка из ц/п раствора δ=50 мм, γ =23 кН/м3, гидроизоляция рулонная кровельная δ=18 мм, γ =18,7 кН/м3. Продольные стены с оконными проемами 1,4х1,2м; Торцевые наружные стены - "глухие"; Высота этажа (от верха до низа панели перекрытия) 2,78м.
ИжГТУ
all_at_700















