Для студентов МГТУ им. Н.Э.Баумана по предмету Подъёмно-транспортные машины (ПТМ)ПТМ 07-5ПТМ 07-5
5,0059
2021-12-302021-12-30СтудИзба
Курсовая работа 7: ПТМ 07-5 вариант 5
Бестселлер
Описание
Проверенный и защищенный на "отлично" проект 5 подварианта.
Расчетно-пояснительная записка на 30 страниц. Список выполненных расчетов представлен ниже на скриншоте. В конце РПЗ подшита распечатка с кафедральной программы с параметрами волнового редуктора, примененного в механизме поворота.
Выполнено 5 чертежей формата А1:
![]()
Расчетно-пояснительная записка на 30 страниц. Список выполненных расчетов представлен ниже на скриншоте. В конце РПЗ подшита распечатка с кафедральной программы с параметрами волнового редуктора, примененного в механизме поворота.
Выполнено 5 чертежей формата А1:
- Сборочный чертеж механизма подъема
- Сборочный чертеж механизма поворота
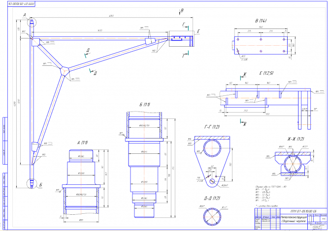
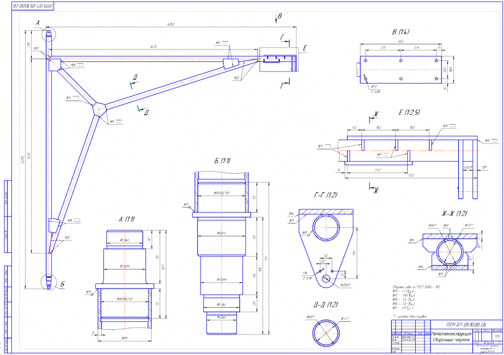
- Сборочный чертеж металлоконструкции (на скриншоте)
- Сборочные чертежи опорных узлов (верхний и нижний)
- Чертеж общего вида крана со спецификацией.


Файлы условия, демо
Характеристики курсовой работы
Учебное заведение
Семестр
Номер задания
Вариант
Просмотров
150
Качество
Идеальное компьютерное
Размер
1,15 Mb
Список файлов
KOMPAS - 1.pdf
KOMPAS - 2.pdf
KOMPAS - 3.pdf
KOMPAS - 4.pdf
KOMPAS - 5.pdf
KOMPAS - Спецификация.pdf
РПЗ.pdf

✋✋ Не забудь поставить оценку ✋✋