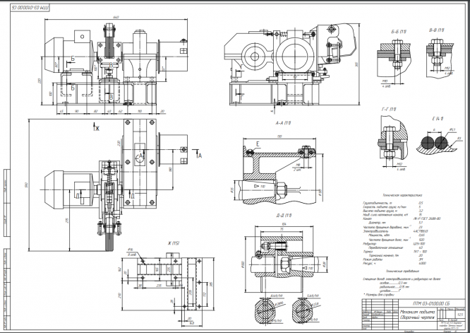
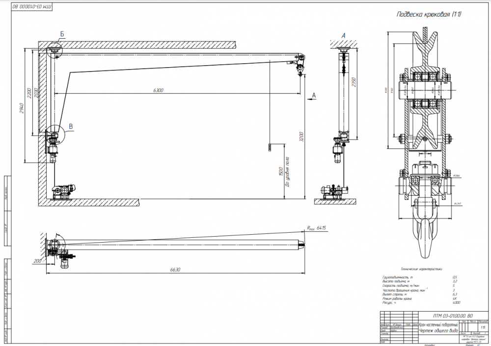
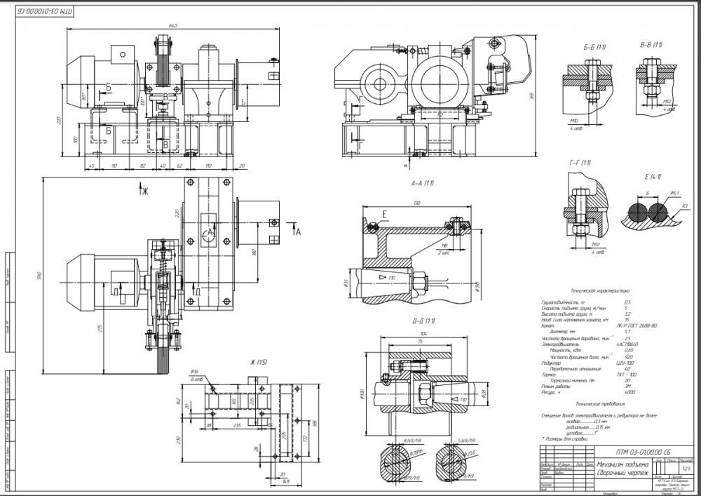
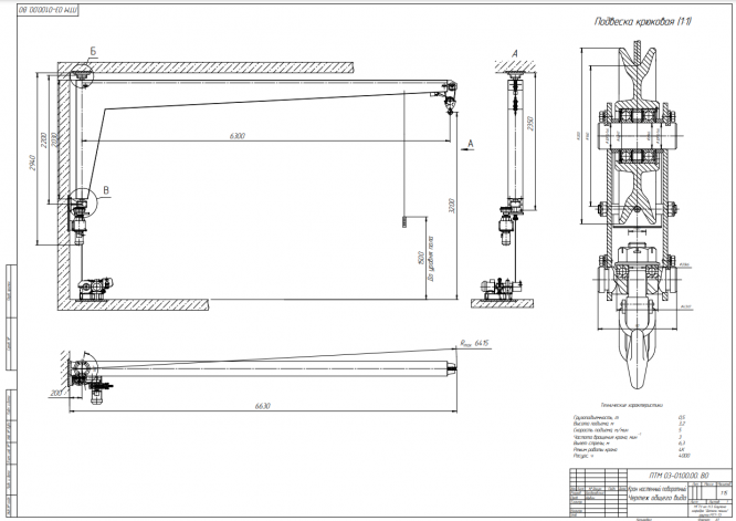
Для студентов МГТУ им. Н.Э.Баумана по предмету Подъёмно-транспортные машины (ПТМ)Кран настенный консольный поворотныйКран настенный консольный поворотный
5,0055
2021-04-212024-09-08СтудИзба
Курсовая работа 3: Кран настенный консольный поворотный вариант 1
-28%
Описание
Характеристики курсовой работы
Учебное заведение
Семестр
Номер задания
Вариант
Просмотров
308
Размер
950,54 Kb
Список файлов
ПТМ-03-01
Задание.PNG
Лист 1.PNG
Лист 1.pdf
Лист 2.pdf
Лист 3.PNG
Лист 3.pdf
Лист 4.pdf
Лист 5.pdf

Друзья, спасибо за доверие! Если вам понравилась работа – поставьте 5⭐ и напишите отзыв. Это поможет другим студентам, а мне даст силы делать ещё больше качественных материалов для вас 🔥