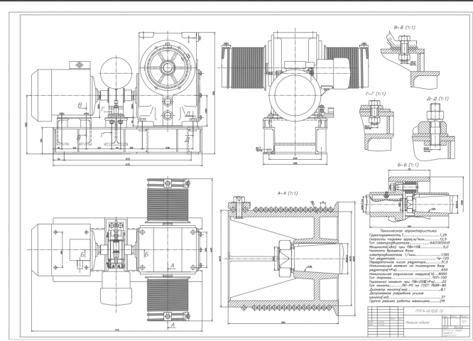
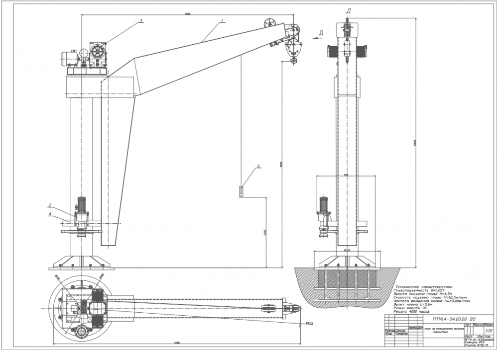
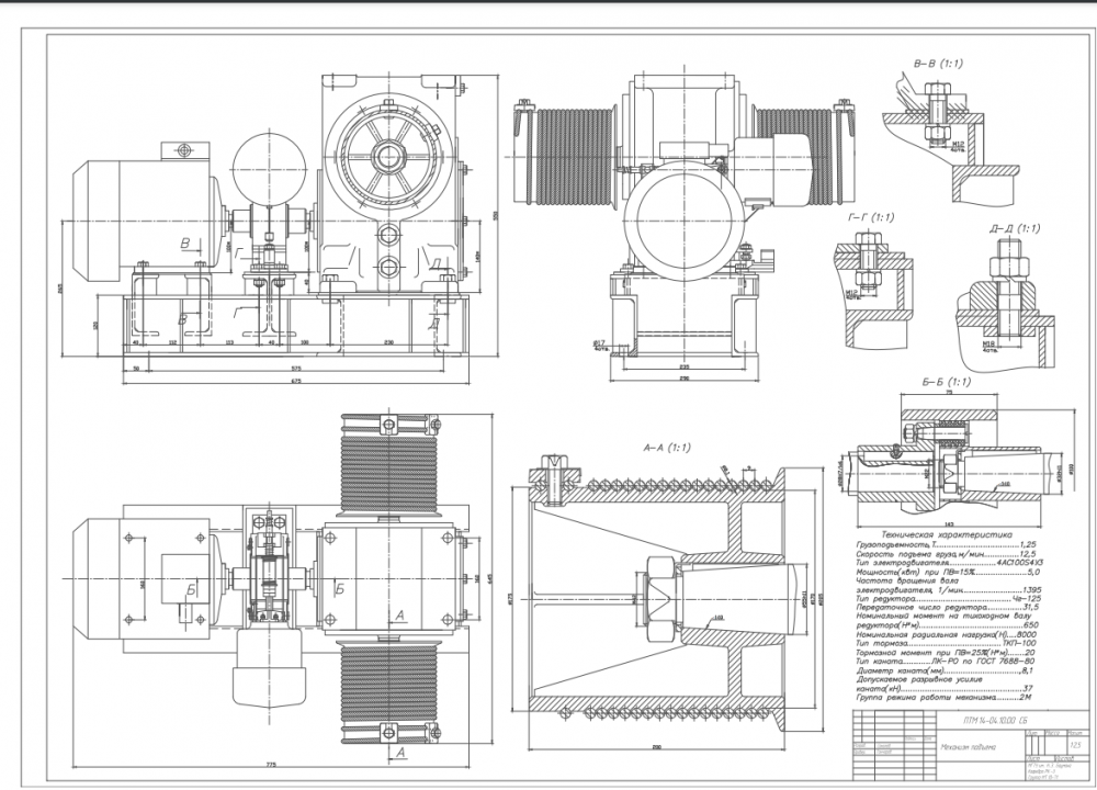
Для студентов МГТУ им. Н.Э.Баумана по предмету Подъёмно-транспортные машины (ПТМ)Кран на неподвижной колоннеКран на неподвижной колонне
5,0053
2021-03-252024-09-08СтудИзба
Курсовая работа 14: Кран на неподвижной колонне вариант 4
-28%
Описание
Характеристики курсовой работы
Учебное заведение
Семестр
Номер задания
Вариант
Просмотров
82
Размер
1,58 Mb
Список файлов
ПТМ 14 вариант 04
Capture.PNG
Лист 1.pdf
Лист 2.pdf
РПЗ.pdf
лист 1.PNG
лист 3.pdf
лист 4.pdf
лись 5.pdf
расчет.PNG
спецификация.pdf

Друзья, спасибо за доверие! Если вам понравилась работа – поставьте 5⭐ и напишите отзыв. Это поможет другим студентам, а мне даст силы делать ещё больше качественных материалов для вас 🔥