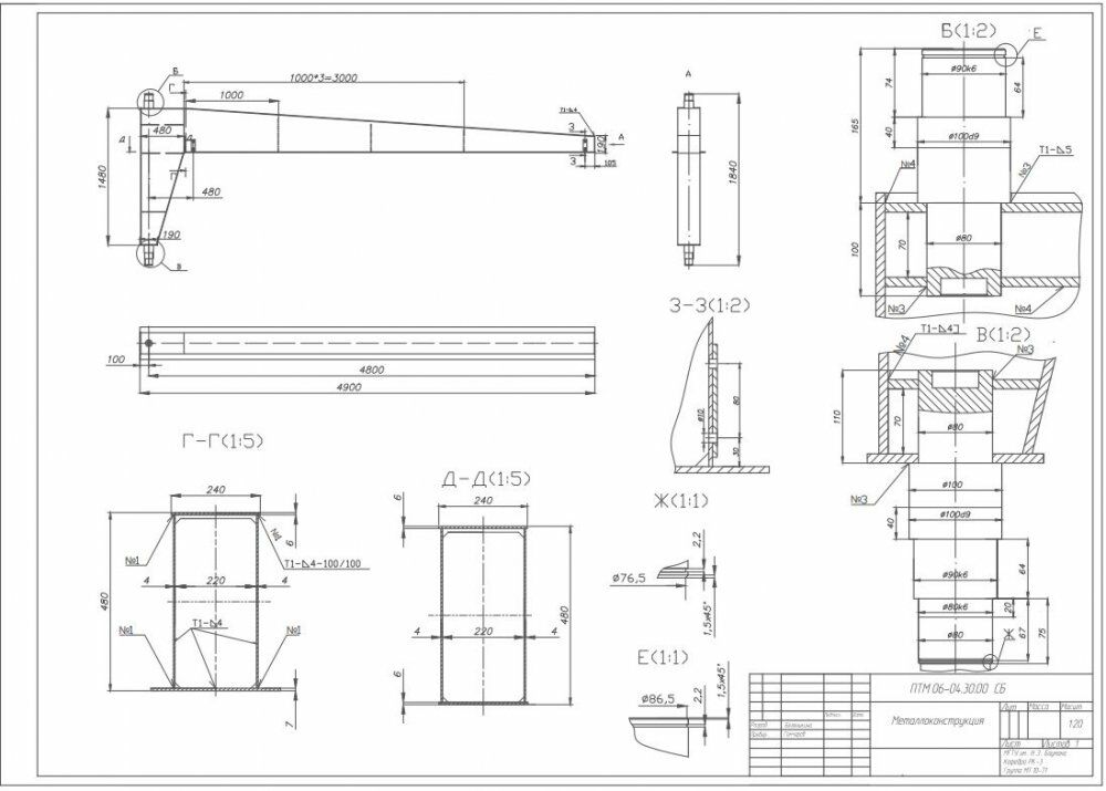
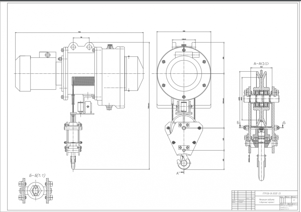
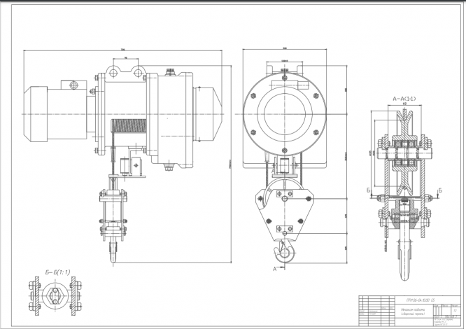
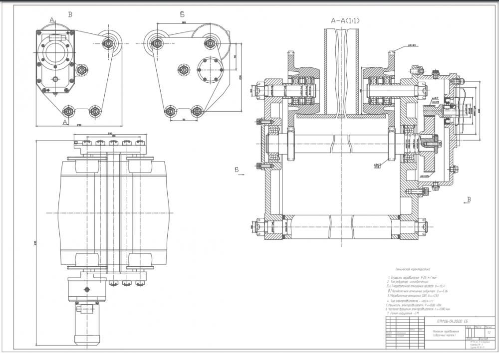
Для студентов МГТУ им. Н.Э.Баумана по предмету Подъёмно-транспортные машины (ПТМ)ПТМ 06 вариант 4 - Кран настенный консольный поворотныйПТМ 06 вариант 4 - Кран настенный консольный поворотный
5,0052
2021-03-252024-09-08СтудИзба
Курсовая работа 6: ПТМ 06 вариант 4 - Кран настенный консольный поворотный вариант 4
-28%
Описание
Характеристики курсовой работы
Учебное заведение
Семестр
Номер задания
Вариант
Просмотров
66
Размер
658,28 Kb
Список файлов
ПТМ 06 вариант 4
Лист 1.pdf
Лист 2.pdf
Лист 3.pdf
Лист 4.pdf
Лист 5.pdf
Лист 6.pdf

Друзья, спасибо за доверие! Если вам понравилась работа – поставьте 5⭐ и напишите отзыв. Это поможет другим студентам, а мне даст силы делать ещё больше качественных материалов для вас 🔥