Для студентов МГТУ им. Н.Э.Баумана по предмету Подъёмно-транспортные машины (ПТМ)ПТМ-05-04 - Кран настенный консольный поворотныйПТМ-05-04 - Кран настенный консольный поворотный
5,005122
2017-02-102024-09-19СтудИзба
Курсовая работа 5: ПТМ-05-04 - Кран настенный консольный поворотный вариант 4
Бестселлер
-50%
Описание
ПТМ-05-04 - Кран настенный консольный поворотный ![]()
Содержание
- Введение………….………………………………………………………………………………………3
- Задание…………………………………...…………………………………….…………………………4
- Исходные данные………………………………………………………………………………………5
- 1. Расчёт механизма подъёма……………………………………………………………...……….6
- Выбор электродвигателя…………………………………………………………………….…6
- Выбор каната…………………………………………………………………………………….6
- Определение диаметра канатного барабана………………………………….…………...…7
- Число рабочих витков на барабане…………………………………..……………………….7
- Длина барабана……………………………………………………………………….…………7
- Прочность барабана…………………………………………………….………………………7
- Канатоемкость барабана………………………………………………….……………………7
- Винты для крепления каната на барабане………………………………………..…………7
- Предварительная частота вращения барабана……………………………………..………8
- Передаточное отношение редуктора…………………………………………………….……8
- Выбор редуктора…………………………………………………………………...……………8
- Расчет дискового тормоза…………………………………………………...………...…..……9
- Расчет подшипников………………………………………………………………..…………12
- Расчет валов…………………………………………………………………………….………23
- Расчет шпоночных соединений ……………………………………………………...………31
- Расчет муфты…………………………………………………………………………...………33
- Расчет проушин………………………………………………………………………………...33
- 2. Расчёт механизма передвижения……………………..………………………………………34
- Предварительный расчет……………………………………………..………………………34
- Уточнение предварительного расчета………………………………………………………36
- Выбор редуктора……………………………………………………………….………………36
- Расчет ОЗП…………………………………………………………………...…………………37
- Расчет подшипников………………………………………………..…………………………40
- Расчет тихоходного вала ……………………………………………………..………………44
- Расчет посадки для установки колес передвижения……………………..……………….46
- Расчет оси для крепления механизма подъема…………………………………………….47
- 3. Расчёт металлоконструкции……………………………..……………………………………48
- Выбор основных размеров……………………………………………………………………48
- Проверка статического прогиба……………………………………………………..………50
- Определение веса металлоконструкции……………………………………………………50
- Проверка времени затухания колебаний……………………………………...……………51
- Проверка прочности…………………………………………………………...………………51
- Расчет усилия рабочего………………………………………………...……………………..53
- 4. Расчёт опорных узлов…………………………………………...………………………………54
- Расчет подшипников в опорах…………………….…………………………………………54
- Расчет болтового соединения………………………………...………………………………55
- 5. Расчет крюковой подвески……………………………………………….……………………57
- Выбор крюка……………………………………………………………………………………57
- Геометрические параметры блока…………………………………..………………………57
- Расчет подшипников блока…………………………………………..………………………57
- Расчет упорного подшипника…………………………………..……………………………58
- Расчет оси блока, траверсы и стяжек…………………………………………….…………58
- Литература……………………………………………………………………………..………………60
- Приложения……………………………………………………………………………………………61
Введение
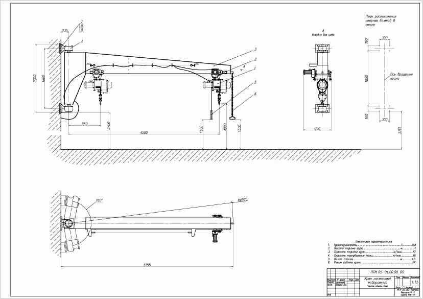
Подвесной поворотный кран с переменным вылетом, состоит из механизма подъёма, механизма передвижения, металлоконструкции и опорных узлов. Механизм подъема в виде тали устанавливают на металлоконструкции. Корпусы нижней и верхней опор крепят к стене.Кран предназначен для подъёма груза массой до 800 кг на высоту 4 метра с возможностью поворота не менее 160°; максимальный вылет крюка 4,5м.
Краны данного типа применяются как вспомогательные или основные подъемные устройства на производстве, в торговле и складировании грузов. Также их используют для разовых работ на автотранспортных предприятиях, железнодорожных станциях и иных сферах, связанных с периодическими погрузочными работами.
На складах или торговых площадях они используются для разгрузки или погрузки автотранспортных средств и перемещения груза в зону работы штабелеров. Краны консольные поворотные стационарные электрические удобны тем, что не занимают много места, просты в эксплуатации и в нерабочем состоянии практически не мешают работе других машин и механизмов.
Исходные данные
![]()
Чертежи
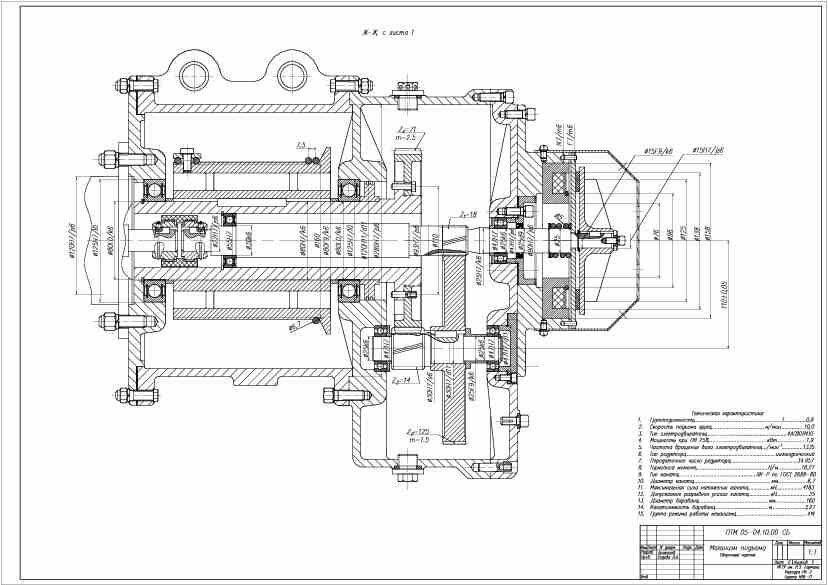
Лист 1-2 - Механизм подъема - Сборочный чертеж ![]()
Лист 3 - Механизм передвижения - Сборочный чертеж ![]()
Лист 4 - Деталировка (Узлы опорные - Сборочный чертеж; Металлоконструкция - Сборочный чертеж) ![]()
Лист 5 - Кран настенный поворотный - Чертеж общего вида
![]()
Файлы условия, демо
Характеристики курсовой работы
Учебное заведение
Семестр
Номер задания
Вариант
Программы
Просмотров
748
Качество
Идеальное компьютерное
Размер
6,53 Mb
Список файлов
05-04
PDF Чертежи
1.pdf
2.pdf
3.pdf
4.pdf
5.pdf
Расчеты
Валы
Быстроходный вал.xmcd
Промежуточный вал.xmcd
Тихоходный вал механизма передвижения.xmcd
Тихоходный вал.xmcd
Подшипника механизма подъема
Подшипники быстроходного вала.xmcd
Подшипники промежуточного вала.xmcd
Подшипники тихохдного вала.xmcd
Крюковая подвеска.xmcd
Металлоконструкция и опорные узлы.xmcd
Механизм передвижения.xmcd
Начальные расчеты.xmcd
Тормоз.xmcd
Усилие рабочего.xmcd
Шпонки.xmcd
Эпюры
1.pdf
2.pdf
3.pdf
4.pdf
РПЗ.docx
Чертежи.dwg

Вам все понравилось? Получите кэшбэк - 40 рублей на Ваш счёт при покупке. Поставьте оценку и напишите положительный комментарий к купленному файлу. После Вы получите деньги на ваш счет.
Комментарии

В приложения вставлял расчет из MathCad

В РПЗ нет приложения. Можете добавить?