Для студентов МГТУ им. Н.Э.Баумана по предмету Инженерная графикаРаспределительРаспределитель
5,0052
2023-02-192023-02-19СтудИзба
ДЗ: Распределитель
Описание
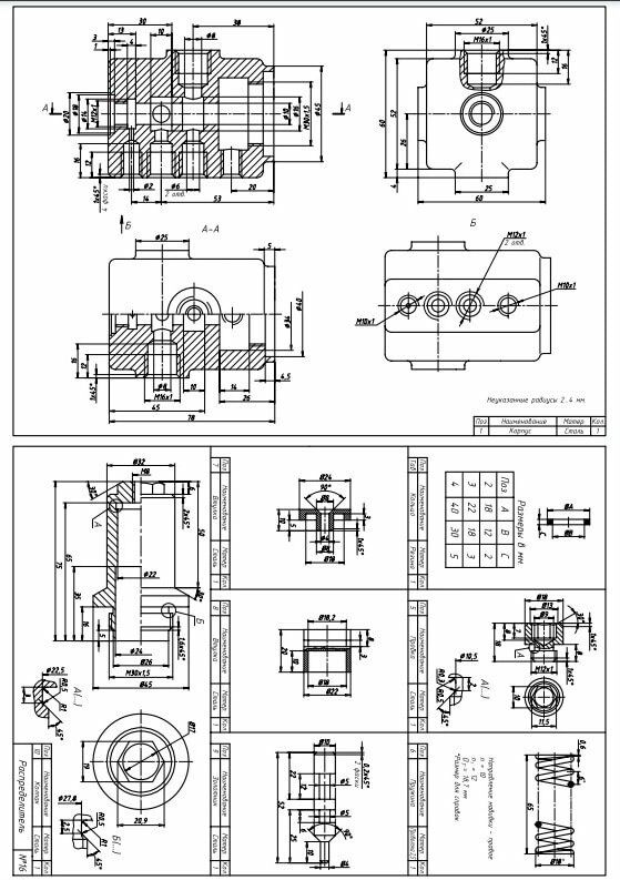
Распределитель №16 есть все 3D модели компас, сборка, чертеж сборки и спецификация, преподаватель зачел. ![]()

Характеристики домашнего задания
Предмет
Учебное заведение
Семестр
Просмотров
36
Размер
3,7 Mb
Список файлов
инжа Сборка
печать
Сборочный чертеж _ СБ2.pdf
Спецификация.spw
Спецификация.spw.bak
Спецификация2.pdf
~$Сборка.a3~
Втулка 7 ПОз.m3d
Втулка поз 8.m3d
Золотник 9 поз.m3d
Кольцо 2 поз.m3d
Кольцо 3 поз.m3d
Кольцо 4 поз.m3d
Кольцо 4 поз.m3d.bak
Корпус 1 поз.m3d
Корпус 1 поз.m3d.bak
Пробка 5 поз.m3d
Пружина 6 поз.m3d
Пружина 6 поз.m3d.bak
Распределитель 10 Поз.m3d
Сборка Правильная.a3d
Сборка Правильная.a3d.bak
Сборка.spw
Сборочный чертеж _ СБ.cdw
Сборочный чертеж _ СБ.cdw.bak
Комментарии
Нет комментариев
Стань первым, кто что-нибудь напишет!
МГТУ им. Н.Э.Баумана
bigbabykot


















