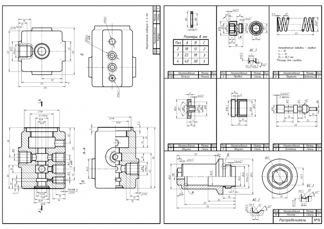
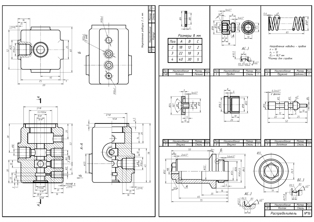
Для студентов МГТУ им. Н.Э.Баумана по предмету Инженерная графикаВариант №16 - Распределитель (деталировка)Вариант №16 - Распределитель (деталировка)
5,0051
2021-09-062021-09-06СтудИзба
ДЗ: Вариант №16 - Распределитель (деталировка) вариант 16
Описание
Характеристики домашнего задания
Предмет
Учебное заведение
Семестр
Вариант
Просмотров
91
Размер
10,5 Mb
Список файлов
Вариант 16
OldVersions
Поз.1. Корпус.0012.ipt
Поз.1. Корпус.0022.dwg
Поз.2. Кольцо.0001.dwg
Поз.3. Кольцо.0001.dwg
Поз.4. Кольцо.0002.dwg
Поз.5. Пробка.0004.ipt
Поз.5. Пробка.0007.dwg
Поз.6. Пружина.0002.ipt
Поз.6. Пружина.0004.dwg
Поз.7. Втулка.0002.dwg
Поз.7. Втулка.0002.ipt
Поз.8. Втулка.0002.dwg
Поз.9. Золотник.0001.dwg
Поз.9. Золотник.0001.ipt
Поз.10. Колпак.0004.ipt
Поз.10. Колпак.0008.dwg
Детали
Поз.1. Корпус.ipt
Поз.2. Прокладка.ipt
Поз.3. Кольцо.ipt
Поз.4. Кольцо.ipt
Поз.5. Пробка.ipt
Поз.6. Пружина.ipt
Поз.7. Втулка.ipt
Поз.8. Втулка.ipt
Поз.9. Золотник.ipt
Поз.10. Колпак.ipt
Файлы чертежей
Поз.1. Корпус.dwg
OpelBlitz
МГТУ им. Н.Э.Баумана
OpelBlitz

















