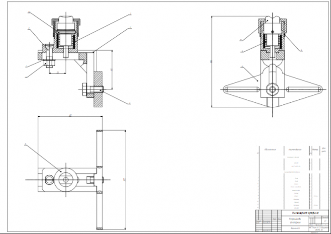
Для студентов МГТУ им. Н.Э.Баумана по предмету Инженерная графикаУстройство споторноеУстройство споторное
4,90546564
2021-04-242024-10-06СтудИзба
ДЗ А: Устройство споторное вариант 43
-55%
Описание
Характеристики домашнего задания
Предмет
Учебное заведение
Семестр
Номер задания
Вариант
Просмотров
238
Размер
53,19 Kb
Список файлов
Устройство споторное.pdf

Друзья, спасибо за доверие! Если вам понравилась работа – поставьте 5⭐ и напишите отзыв. Это поможет другим студентам, а мне даст силы делать ещё больше качественных материалов для вас 🔥