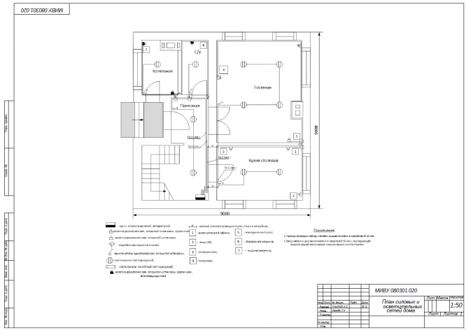
Для студентов МИ ВлГУ по предмету Электротехника и электроснабжениеПроектирование внутреннего электроснабжения жилого дома + чертежПроектирование внутреннего электроснабжения жилого дома + чертеж
5,0051
2025-01-172025-01-17СтудИзба
Курсовая работа: Проектирование внутреннего электроснабжения жилого дома + чертеж
Описание
Характеристики курсовой работы
Учебное заведение
Семестр
Программы
Просмотров
4
Размер
1,31 Mb
Список файлов
пз.pdf
чертеж.pdf
Комментарии
Нет комментариев
Стань первым, кто что-нибудь напишет!
МИ ВлГУ

















