Реферат: Расчёт КЗ и проверка электрооборудования
Задача: Расчет токов короткого замыкания и проверка электрооборудования автозавода
Исходные данные
Задание 3
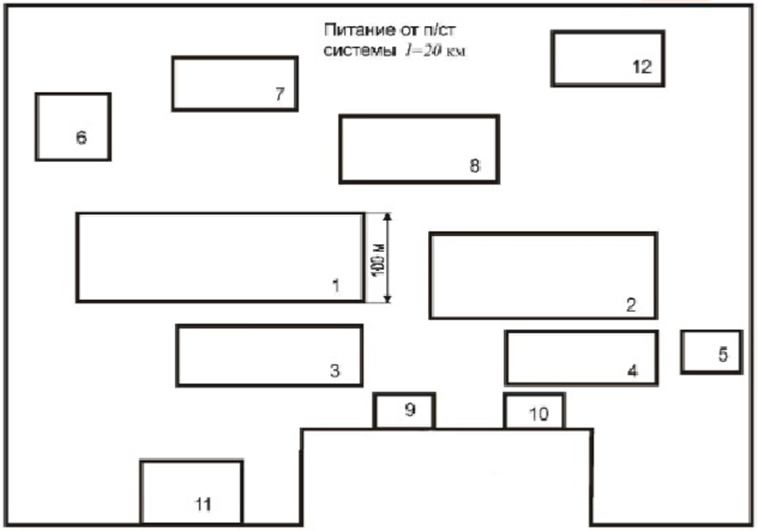
Генплан автозавода (рис. 1.1)
Показать/скрыть дополнительное описание
Задание 3
Генплан автозавода (рис. 1.1)
Показать/скрыть дополнительное описаниеРеферат содержит расчёт токов короткого замыкания для автозавода, эквивалентирование схемы, численные примеры для точек К1–К12 и рекомендации по проверке термической и динамической стойкости оборудования. Подходит студентам и инженерам для быстрой адаптации под свой проект..
Характеристики решённой задачи
Предмет
Учебное заведение
Семестр
Просмотров
4
Размер
426,94 Kb
Список файлов
КМ-4.docx
🎓 Никольский - Помощь студентам 📚 Любые виды работ: тесты, сессии под ключ, практики, курсовые и дипломные с гарантией результата ✅ Все услуги под ключ ✅ Знаем все тонкости именно вашего ВУЗа ✅ Сдадим или вернем деньги
Комментарии
Нет комментариев
Стань первым, кто что-нибудь напишет!
НИУ «МЭИ»
nikolskypomosh
















