Для студентов ЮУрГУ по предмету ЭлектроснабжениеЭлектроснабжение группы цехов завода по ремонту механического оборудованияЭлектроснабжение группы цехов завода по ремонту механического оборудования
5,00513
2025-03-152025-03-15СтудИзба
Курсовая работа: Электроснабжение группы цехов завода по ремонту механического оборудования
Описание
ОГЛАВЛЕНИЕ
ТЕХНИЧЕСКИЙ ПАСПОРТ ПРОЕКТА.............................................................. 6
ВВЕДЕНИЕ.............................................................................................................. 7
КРАТКОЕ ОПИСАНИЕ ОБЪЕКТА ЭЛЕКТРОСНАБЖЕНИЯ......................... 8
1 РАСЧЁТ ЭЛЕКТРИЧЕСКИХ НАГРУЗОК СИСТЕМЫ
ЭЛЕКТРОСНАБЖЕНИЯ И РАСЧЕТ ЕЁ КАРТОГРАММЫ............................. 9
1.1 Расчѐт электрических нагрузок по ремонтно-механическому цеху ............................................................................................................ 9
1.1.1 Распределение по фазам однофазных электроприѐмников..... 10
1.1.2 Расчет электрических нагрузок предприятия на стороне 0,4 кВ............................................ 11
1.1.3 Расчет электрических нагрузок предприятия на стороне 10 кВ............................................................ 12
1.2 Расчет картограммы электрических нагрузок ..................................... 13
Выводы по разделу один.............................................................................. 15
2 ВЫБОР ЦЕХОВЫХ ТРАНСФОРМАТОРНЫХ ПОДСТАНЦИЙ................ 25
2.1 Выбор типа цеховых трансформаторных подстанций........................ 26
2.2 Выбор мощности цеховых трансформаторов ...................................... 26
Выводы по разделу два................................................................................. 28
3 ВЫБОР НАПРЯЖЕНИЯ СХЕМЫ ВНЕШНЕГО ЭЛЕКТРОСНАБЖЕНИЯ И ТРАНСФОРМАТОРОВ ГЛАВНОЙ
ПОНИЗИТЕЛЬНОЙ ПОДСТАНЦИИ................................................................. 29
3.1 Рациональное напряжение внешнего электроснабжения................... 29
3.2 Выбор типа и мощности трансформаторов на главной понизительной подстанции ......................... 29
Вывод по разделу три ................................................................................... 31
4 РАСЧЕТ СИСТЕМЫ ВНЕШНЕГО ЭЛЕКТРОСНАБЖЕНИЯ..................... 32
4.1 Выбор схемы внешнего электроснабжения ......................................... 32
4.2 Расчет по экономической плотности линий электропередачи, питающих ГПП........................................................ 32
4.3 Расчет токов КЗ в начале отходящих линий от подстанции энергосистемы и на вводах в ГПП........................................................ 33
4.4 Выбор коммутационной аппаратуры в начале отходящих линий от подстанции энергосистемы и на вводе ГПП................................... 35
Вывод по разделу четыре ............................................................................. 37
5 СИСТЕМА ВНУТРИЗАВОДСКОГО ЭЛЕКТРОСНАБЖЕНИЯ.................. 38
5.1 Определение рационального напряжения внутризаводского электроснабжения......................................................... 38
5.2 Выбор рациональной схемы распределительной сети........................ 38
5.3 Выбор кабельной линии......................................................................... 38
Выводы по разделу пять............................................................................... 40
6 РАСЧЁТ ТОКОВ КОРОТКОГО ЗАМЫКАНИЯ............................................ 41
ОГЛАВЛЕНИЕ
ТЕХНИЧЕСКИЙ ПАСПОРТ ПРОЕКТА.............................................................. 6
ВВЕДЕНИЕ.............................................................................................................. 7
КРАТКОЕ ОПИСАНИЕ ОБЪЕКТА ЭЛЕКТРОСНАБЖЕНИЯ......................... 8
1 РАСЧЁТ ЭЛЕКТРИЧЕСКИХ НАГРУЗОК СИСТЕМЫ
ЭЛЕКТРОСНАБЖЕНИЯ И РАСЧЕТ ЕЁ КАРТОГРАММЫ............................. 9
1.1 Расчѐт электрических нагрузок по ремонтно-механическому
цеху ............................................................................................................ 9
1.1.1 Распределение по фазам однофазных электроприѐмников..... 10
1.1.2 Расчет электрических нагрузок предприятия на стороне
0,4 кВ............................................................................................. 11
1.1.3 Расчет электрических нагрузок предприятия на стороне
10 кВ.............................................................................................. 12
1.2 Расчет картограммы электрических нагрузок ..................................... 13
Выводы по разделу один.............................................................................. 15
2 ВЫБОР ЦЕХОВЫХ ТРАНСФОРМАТОРНЫХ ПОДСТАНЦИЙ................ 25
2.1 Выбор типа цеховых трансформаторных подстанций........................ 26
2.2 Выбор мощности цеховых трансформаторов ...................................... 26
Выводы по разделу два................................................................................. 28
3 ВЫБОР НАПРЯЖЕНИЯ СХЕМЫ ВНЕШНЕГО
ЭЛЕКТРОСНАБЖЕНИЯ И ТРАСФОРМАТОРОВ ГЛАВНОЙ
ПОНИЗИТЕЛЬНОЙ ПОДСТАНЦИИ................................................................. 29
3.1 Рациональное напряжение внешнего электроснабжения................... 29
3.2 Выбор типа и мощности трансформаторов на главной
понизительной подстанции ................................................................... 29
Вывод по разделу три ................................................................................... 31
4 РАСЧЕТ СИСТЕМЫ ВНЕШНЕГО ЭЛЕКТРОСНАБЖЕНИЯ..................... 32
4.1 Выбор схемы внешнего электроснабжения ......................................... 32
4.2 Расчет по экономической плотности линий электропередачи,
питающих ГПП....................................................................................... 32
4.3 Расчет токов КЗ в начале отходящих линий от подстанции
энергосистемы и на вводах в ГПП........................................................ 33
4.4 Выбор коммутационной аппаратуры в начале отходящих линий
от подстанции энергосистемы и на вводе ГПП................................... 35
Вывод по разделу четыре ............................................................................. 37
5 СИСТЕМА ВНУТРИЗАВОДСКОГО ЭЛЕКТРОСНАБЖЕНИЯ.................. 38
5.1 Определение рационального напряжения внутризаводского
электроснабжения................................................................................... 38
5.2 Выбор рациональной схемы распределительной сети........................ 38
5.3 Выбор кабельной линии......................................................................... 38
Выводы по разделу пять............................................................................... 40
6 РАСЧЁТ ТОКОВ КОРОТКОГО ЗАМЫКАНИЯ............................................ 41
Выводы по разделу шесть ............................................................................ 45
7 ВЫБОР ЭЛЕКТРООБОРУДОВАНИЯ СИСТЕМ
ЭЛЕКТРОСНАБЖЕНИЯ ПРОМЫШЛЕННОГО ПРЕДПРИЯТИЯ................ 46
7.1 Выбор электрооборудования напряжением 10 кВ .............................. 46
7.2 Выбор электрооборудования напряжением 0,4 кВ ............................. 52
Вывод по разделу семь ................................................................................. 53
8 ВЫБОР И ОБОСНОВАНИЕ РЕЖИМА НЕЙТРАЛИ.................................... 54
Выводы по разделу восемь........................................................................... 54
9 КОМПЕНСАЦИЯ РЕАКТИВНОЙ МОЩНОСТИ......................................... 55
Выводы по разделу девять ........................................................................... 60
ЗАКЛЮЧЕНИЕ ..................................................................................................... 61
БИБЛИОГРАФИЧЕСКИЙ СПИСОК ................................................................. 62
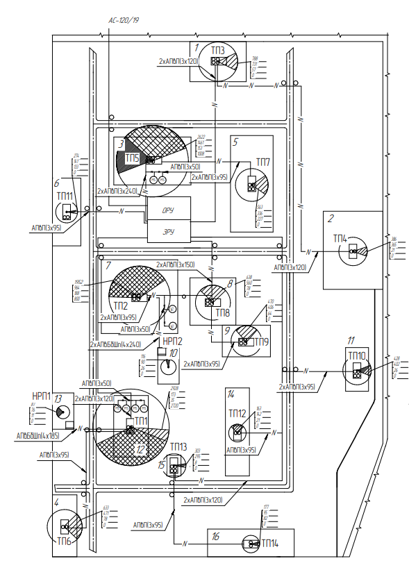
Основные характеристики потребителей и системы электроснабжения группы цехов машиностроительного завода. 1. Суммарная установленная мощность электроприѐмников предприятия напряжением ниже 1000 В: 16828 кВт. 2. Суммарная установленная мощность электроприѐмников предприятия напряжением выше 1000 В: 5460 кВт. 3. Категория основных потребителей по надежности электроснабжения: потребители 1, 2 и 3 категорий. 4. Коэффициенты реактивной мощности: - заданный энергосистемой 0,27; - расчетный = 0,39. 5. Напряжение внешнего электроснабжения: 35 кВ. 6. Мощность КЗ на шинах 35 кВ энергосистемы: 1200 МВА. 7. Расстояние от предприятия до питающей подстанции энергосистемы 13 км; питающая воздушная линия выполнена проводом марки АС-120/19. 8. На ГПП установлены два трансформатора типа ТДН-10000/35/10. 9. Напряжение внутреннего электроснабжения предприятия: 10 кВ. 10. Для питания потребителей напряжением ниже 1000 В устанавливается 14 цеховых трансформаторных подстанций с трансформаторами типа ТМГ мощностью 250, 400, 630, 1000, 1250 кВ А. 11. Марка кабельных линий: АПвП-10 и АПвБбШп-0,4.
![]()
ТЕХНИЧЕСКИЙ ПАСПОРТ ПРОЕКТА.............................................................. 6
ВВЕДЕНИЕ.............................................................................................................. 7
КРАТКОЕ ОПИСАНИЕ ОБЪЕКТА ЭЛЕКТРОСНАБЖЕНИЯ......................... 8
1 РАСЧЁТ ЭЛЕКТРИЧЕСКИХ НАГРУЗОК СИСТЕМЫ
ЭЛЕКТРОСНАБЖЕНИЯ И РАСЧЕТ ЕЁ КАРТОГРАММЫ............................. 9
1.1 Расчѐт электрических нагрузок по ремонтно-механическому цеху ............................................................................................................ 9
1.1.1 Распределение по фазам однофазных электроприѐмников..... 10
1.1.2 Расчет электрических нагрузок предприятия на стороне 0,4 кВ............................................ 11
1.1.3 Расчет электрических нагрузок предприятия на стороне 10 кВ............................................................ 12
1.2 Расчет картограммы электрических нагрузок ..................................... 13
Выводы по разделу один.............................................................................. 15
2 ВЫБОР ЦЕХОВЫХ ТРАНСФОРМАТОРНЫХ ПОДСТАНЦИЙ................ 25
2.1 Выбор типа цеховых трансформаторных подстанций........................ 26
2.2 Выбор мощности цеховых трансформаторов ...................................... 26
Выводы по разделу два................................................................................. 28
3 ВЫБОР НАПРЯЖЕНИЯ СХЕМЫ ВНЕШНЕГО ЭЛЕКТРОСНАБЖЕНИЯ И ТРАНСФОРМАТОРОВ ГЛАВНОЙ
ПОНИЗИТЕЛЬНОЙ ПОДСТАНЦИИ................................................................. 29
3.1 Рациональное напряжение внешнего электроснабжения................... 29
3.2 Выбор типа и мощности трансформаторов на главной понизительной подстанции ......................... 29
Вывод по разделу три ................................................................................... 31
4 РАСЧЕТ СИСТЕМЫ ВНЕШНЕГО ЭЛЕКТРОСНАБЖЕНИЯ..................... 32
4.1 Выбор схемы внешнего электроснабжения ......................................... 32
4.2 Расчет по экономической плотности линий электропередачи, питающих ГПП........................................................ 32
4.3 Расчет токов КЗ в начале отходящих линий от подстанции энергосистемы и на вводах в ГПП........................................................ 33
4.4 Выбор коммутационной аппаратуры в начале отходящих линий от подстанции энергосистемы и на вводе ГПП................................... 35
Вывод по разделу четыре ............................................................................. 37
5 СИСТЕМА ВНУТРИЗАВОДСКОГО ЭЛЕКТРОСНАБЖЕНИЯ.................. 38
5.1 Определение рационального напряжения внутризаводского электроснабжения......................................................... 38
5.2 Выбор рациональной схемы распределительной сети........................ 38
5.3 Выбор кабельной линии......................................................................... 38
Выводы по разделу пять............................................................................... 40
6 РАСЧЁТ ТОКОВ КОРОТКОГО ЗАМЫКАНИЯ............................................ 41
ОГЛАВЛЕНИЕ
ТЕХНИЧЕСКИЙ ПАСПОРТ ПРОЕКТА.............................................................. 6
ВВЕДЕНИЕ.............................................................................................................. 7
КРАТКОЕ ОПИСАНИЕ ОБЪЕКТА ЭЛЕКТРОСНАБЖЕНИЯ......................... 8
1 РАСЧЁТ ЭЛЕКТРИЧЕСКИХ НАГРУЗОК СИСТЕМЫ
ЭЛЕКТРОСНАБЖЕНИЯ И РАСЧЕТ ЕЁ КАРТОГРАММЫ............................. 9
1.1 Расчѐт электрических нагрузок по ремонтно-механическому
цеху ............................................................................................................ 9
1.1.1 Распределение по фазам однофазных электроприѐмников..... 10
1.1.2 Расчет электрических нагрузок предприятия на стороне
0,4 кВ............................................................................................. 11
1.1.3 Расчет электрических нагрузок предприятия на стороне
10 кВ.............................................................................................. 12
1.2 Расчет картограммы электрических нагрузок ..................................... 13
Выводы по разделу один.............................................................................. 15
2 ВЫБОР ЦЕХОВЫХ ТРАНСФОРМАТОРНЫХ ПОДСТАНЦИЙ................ 25
2.1 Выбор типа цеховых трансформаторных подстанций........................ 26
2.2 Выбор мощности цеховых трансформаторов ...................................... 26
Выводы по разделу два................................................................................. 28
3 ВЫБОР НАПРЯЖЕНИЯ СХЕМЫ ВНЕШНЕГО
ЭЛЕКТРОСНАБЖЕНИЯ И ТРАСФОРМАТОРОВ ГЛАВНОЙ
ПОНИЗИТЕЛЬНОЙ ПОДСТАНЦИИ................................................................. 29
3.1 Рациональное напряжение внешнего электроснабжения................... 29
3.2 Выбор типа и мощности трансформаторов на главной
понизительной подстанции ................................................................... 29
Вывод по разделу три ................................................................................... 31
4 РАСЧЕТ СИСТЕМЫ ВНЕШНЕГО ЭЛЕКТРОСНАБЖЕНИЯ..................... 32
4.1 Выбор схемы внешнего электроснабжения ......................................... 32
4.2 Расчет по экономической плотности линий электропередачи,
питающих ГПП....................................................................................... 32
4.3 Расчет токов КЗ в начале отходящих линий от подстанции
энергосистемы и на вводах в ГПП........................................................ 33
4.4 Выбор коммутационной аппаратуры в начале отходящих линий
от подстанции энергосистемы и на вводе ГПП................................... 35
Вывод по разделу четыре ............................................................................. 37
5 СИСТЕМА ВНУТРИЗАВОДСКОГО ЭЛЕКТРОСНАБЖЕНИЯ.................. 38
5.1 Определение рационального напряжения внутризаводского
электроснабжения................................................................................... 38
5.2 Выбор рациональной схемы распределительной сети........................ 38
5.3 Выбор кабельной линии......................................................................... 38
Выводы по разделу пять............................................................................... 40
6 РАСЧЁТ ТОКОВ КОРОТКОГО ЗАМЫКАНИЯ............................................ 41
Выводы по разделу шесть ............................................................................ 45
7 ВЫБОР ЭЛЕКТРООБОРУДОВАНИЯ СИСТЕМ
ЭЛЕКТРОСНАБЖЕНИЯ ПРОМЫШЛЕННОГО ПРЕДПРИЯТИЯ................ 46
7.1 Выбор электрооборудования напряжением 10 кВ .............................. 46
7.2 Выбор электрооборудования напряжением 0,4 кВ ............................. 52
Вывод по разделу семь ................................................................................. 53
8 ВЫБОР И ОБОСНОВАНИЕ РЕЖИМА НЕЙТРАЛИ.................................... 54
Выводы по разделу восемь........................................................................... 54
9 КОМПЕНСАЦИЯ РЕАКТИВНОЙ МОЩНОСТИ......................................... 55
Выводы по разделу девять ........................................................................... 60
ЗАКЛЮЧЕНИЕ ..................................................................................................... 61
БИБЛИОГРАФИЧЕСКИЙ СПИСОК ................................................................. 62
Основные характеристики потребителей и системы электроснабжения группы цехов машиностроительного завода. 1. Суммарная установленная мощность электроприѐмников предприятия напряжением ниже 1000 В: 16828 кВт. 2. Суммарная установленная мощность электроприѐмников предприятия напряжением выше 1000 В: 5460 кВт. 3. Категория основных потребителей по надежности электроснабжения: потребители 1, 2 и 3 категорий. 4. Коэффициенты реактивной мощности: - заданный энергосистемой 0,27; - расчетный = 0,39. 5. Напряжение внешнего электроснабжения: 35 кВ. 6. Мощность КЗ на шинах 35 кВ энергосистемы: 1200 МВА. 7. Расстояние от предприятия до питающей подстанции энергосистемы 13 км; питающая воздушная линия выполнена проводом марки АС-120/19. 8. На ГПП установлены два трансформатора типа ТДН-10000/35/10. 9. Напряжение внутреннего электроснабжения предприятия: 10 кВ. 10. Для питания потребителей напряжением ниже 1000 В устанавливается 14 цеховых трансформаторных подстанций с трансформаторами типа ТМГ мощностью 250, 400, 630, 1000, 1250 кВ А. 11. Марка кабельных линий: АПвП-10 и АПвБбШп-0,4.

Характеристики курсовой работы
Предмет
Учебное заведение
Просмотров
27
Качество
Идеальное компьютерное
Размер
2,28 Mb
Список файлов
Картограмма+нагрузок.pdf
КП+готовый+.pdf
Схема_принципиальная_электрическая_cdw_06_06.pdf

Если нужен другой вариант работы или отдельная задача из любой работы, пишите в комментарии
Комментарии

vladagap2103: Здравствуйте, мне нужен ворд и исходники чертежей. Можете перевыложить? В таком случае готов купить
Нету

выложите?

Здравствуйте, мне нужен ворд и исходники чертежей. Можете перевыложить? В таком случае готов купить