Для студентов МГТУ им. Н.Э.Баумана по предмету Детали машин (ДМ)ДМ 559 - Привод цепного транспортёра, состоящего из планетарно-цевочного мотор - редуктораДМ 559 - Привод цепного транспортёра, состоящего из планетарно-цевочного мотор - редуктора
4,90547173
2021-06-172024-09-03СтудИзба
Курсовая работа ДМ: ДМ 559 - Привод цепного транспортёра, состоящего из планетарно-цевочного мотор - редуктора вариант 559
-64%
Описание
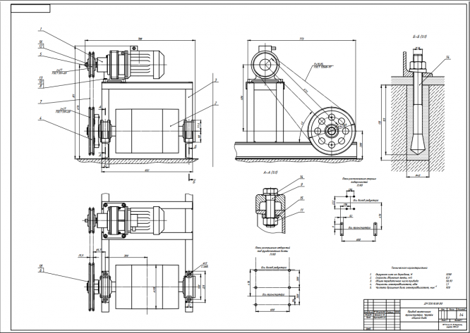
РПЗ + Лист 5:Привод ленточного транспортёра + Лист 1:Мотор-редукторпланетарно-цевочны
Введение.В рамках данного проекта, необходимо разработать привод цепного транспортёра, состоящего из планетарно-цевочного мотор - редуктора, а так же из приводного вала с барабаном и цепной передачей между ними. Цепной транспортёр – машина непрерывного транспорта для горизонтального перемещения штучных грузов, устанавливаемая в отапливаемом помещении. Редуктор может применяться в различных устройствах, помимо данного. Планетарно-цевочные редукторы являются соосными. Применение редукторов этого типа в качестве общемашиностроительных приводов позволяет решить задачу уменьшения их габаритов, металлоемкости, снижения энергозатрат. Достоинства: высокая нагрузочная способность, высокий КПД, низкий момент инерции, большое передаточное число в одной ступени, высокая перегрузочная способность, большой ресурс, плавность и бесшумность работы.





Файлы условия, демо
Характеристики курсовой работы
Предмет
Учебное заведение
Семестр
Номер задания
Вариант
Просмотров
506
Размер
972,53 Kb
Список файлов
Привод цепного транспортёра, состоящего из планетарно-цевочного мотор - редуктора 559
Capture.JPG
Мотор-редукторпланетарно-цевочны.pdf
Привод ленточного транспортёра.pdf
РПЗ.pdf
Спертификация 2.pdf
Спертификация.pdf

Друзья, спасибо за доверие! Если вам понравилась работа – поставьте 5⭐ и напишите отзыв. Это поможет другим студентам, а мне даст силы делать ещё больше качественных материалов для вас 🔥