Для студентов МГТУ им. Н.Э.Баумана по предмету Детали машин (ДМ)ДМ 1369 - Привод ленточного транспортера с двухступенчатым цилиндрическим вертикальным мотор-редуктором с косозубыми передачами внешнего зацепления и ДМ 1369 - Привод ленточного транспортера с двухступенчатым цилиндрическим вертикальным мотор-редуктором с косозубыми передачами внешнего зацепления и
4,41552
2021-04-292024-09-03СтудИзба
ДМ 1369 - Привод ленточного транспортера с двухступенчатым цилиндрическим вертикальным мотор-редуктором с косозубыми передачами внешнего зацепления и полым валом
-64%
Описание
Введение
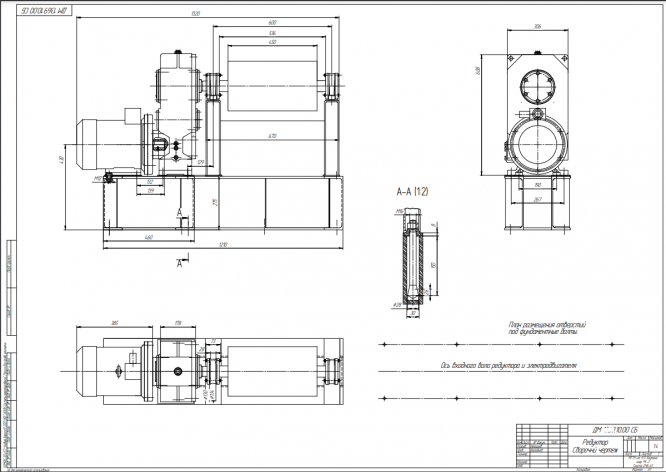
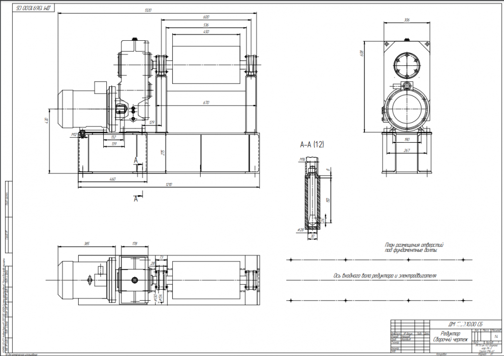
В рамках выполнения курсового проекта по дисциплине «Детали машин» необходимо спроектировать привод ленточного транспортера с двухступенчатым цилиндрическим вертикальным мотор-редуктором с косозубыми передачами внешнего зацепления и полым валом. Ленточный конвейер — транспортирующее устройство непрерывного действия с рабочим органом в виде ленты. Ленточный конвейер является наиболее распространённым типом транспортирующих машин, он служит для перемещения насыпных или штучных грузов. Применяется на промышленных производствах, в рудниках и шахтах, в сельском хозяйстве. В зависимости от свойств и природы перемещаемого груза угол наклона рабочей стороны ленты может быть установлен до 90°. Цилиндрический редуктор общего машиностроительного назначения используется для передачи вращательного движения между валами, расположенными параллельно друг к другу. Установленный в различных агрегатах и механизмах цилиндрический редуктор способен снизить частоту вращения, и в тоже время увеличить крутящий момент.
![]()
В рамках выполнения курсового проекта по дисциплине «Детали машин» необходимо спроектировать привод ленточного транспортера с двухступенчатым цилиндрическим вертикальным мотор-редуктором с косозубыми передачами внешнего зацепления и полым валом. Ленточный конвейер — транспортирующее устройство непрерывного действия с рабочим органом в виде ленты. Ленточный конвейер является наиболее распространённым типом транспортирующих машин, он служит для перемещения насыпных или штучных грузов. Применяется на промышленных производствах, в рудниках и шахтах, в сельском хозяйстве. В зависимости от свойств и природы перемещаемого груза угол наклона рабочей стороны ленты может быть установлен до 90°. Цилиндрический редуктор общего машиностроительного назначения используется для передачи вращательного движения между валами, расположенными параллельно друг к другу. Установленный в различных агрегатах и механизмах цилиндрический редуктор способен снизить частоту вращения, и в тоже время увеличить крутящий момент.






Файлы условия, демо
Характеристики курсовой работы
Предмет
Учебное заведение
Семестр
Номер задания
Вариант
Просмотров
712
Размер
1,69 Mb
Список файлов
Привод ленточного транспортера с двухступенчатым цилиндрическим вертикальным мотор-редуктором с косозубыми передачами внешнего зацепления и полым валом
Колесо.pdf
Лист 1.PNG
Лист 1.pdf
Лист 2.PNG
Лист 2.pdf
Лист 3.pdf
Приводный вал.pdf
РПЗ.pdf
вал тихоходный вавл.pdf
редуктор.pdf

Друзья, спасибо за доверие! Если вам понравилась работа – поставьте 5⭐ и напишите отзыв. Это поможет другим студентам, а мне даст силы делать ещё больше качественных материалов для вас 🔥
Комментарии

Курсчач сомнительный. Есть много ошибок

Отзыв
Неплохо, но файлы чертежей были бы лучше