Пояснительная записка (987105)
Текст из файла
Содержание:
-
Введение 3
-
Станок мод. МА260Ф4 5
-
Техническая характеристика станка 5
-
Устройство ЧПУ 6
-
Кинематика станка 7
-
Шпиндельный узел станка 8
-
Напольный промышленный робот 9
-
Техническая характеристика робота 9
-
Основные механизмы робота 10
-
Захватное устройство робота 13
Транспортно-накопительная система 15
-
Описание тактового стола 15
Заготовка и деталь 16
-
Способ получения заготовки 16
-
Базирование и закрепление заготовки на станке 16
-
Эскиз заготовки 17
-
Чертеж детали 18
Выбор инструмента 19
Расчетная часть 21
-
Расчет режимов резания 21
-
Расчет шпинделя на прочность и жесткость 26
-
Расчет схвата руки ПР 28
Список литературы 31
Графическая часть:
-
Лист 1. Компоновка РТК.
-
Лист 2. Шпиндельный узел станка мод. МА260Ф4.
-
Лист 3. Технологические наладки.
-
Лист 4. Чертеж шарико-винтовой пары.
1. Введение
Автоматизация производства в машиностроении представляет собой самостоятельную комплексную проблему. Ее решение направлено на создание нового совершенного оборудования, технологических процессов и систем организации производства, функционирование которых неразрывно связано с улучшением условий труда, ростом качества продукции, сокращением потребности в рабочей силе и с систематическим повышением прибыли.
Эффективность автоматизации прямо зависит от того, насколько рационально организован производственный процесс в целом, как комплексно и полно на всех звеньях технологической цепочки внедрены средства автоматизации, от того, насколько принятая система организации и управления производством позволяет принимать решения на низшем уровне (в целях ликвидации внеплановых простоев). Автоматизация требует рассматривать производственный процесс как единую систему.
Отработка технических решений по созданию автоматизированных технологических комплексов, по-видимому, должна вестись, прежде всего, применительно к серийному производству (оно составляет до 40 % общемашиностроительного производства), поскольку они могут быть применены также в массовом и крупносерийном производстве. Очевидно, что по мере совершенствования технических решений, разработанных для условий серийного производства, внедрения новых исходных средств автоматизации и элементной базы, появится возможность их использования и для автоматизации мелкосерийного производства. Таким образом, принятое направление на развитие автоматизации в серийном производстве не только будет способствовать подъему производительности труда в этой области, но и окажет существенное влияние на уровень мелкосерийного и массового производства.
Появление и развитие промышленных роботов, безусловно, явились одним из крупнейших достижений науки и техники последних лет. Они позволили расширить фронт работ по автоматизации технологических и вспомогательных процессов, открыли широкие перспективы создания автоматических систем машин для гибкого, переналаживаемого производства.
Одной из основных причин разработок и внедрения роботов является экономия средств. По сравнению с традиционными средствами автоматизации применение роботов обеспечивает большую гибкость технических и организационных решений, снижение сроков комплектации и запуска в производство автоматизированных станочных систем. По предварительным данным, использование роботов для автоматической установки и снятия деталей позволяет рабочему обслуживать от четырех до восьми металлорежущих, станков.
С экономическими вопросами, возникающими при применении роботов, тесно связан и социальный аспект их использования. При определении целесообразности применения роботов в том или ином случае (особенно при необходимости замены рабочего на участках с опасными, вредными для здоровья условиями труда) превалирующими должны быть интересы человека, его безопасность и удобство работы. Необходимо также учитывать и фактор непрерывного роста уровня общеобразовательной и специальной подготовки трудящихся. Роботы должны освободить человека от выполнения бездумной механической работы и скомпенсировать потребность в низкоквалифицированном труде. Таким образом, применение роботов в дальнейшем должно оказать существенное влияние (в числе прочих факторов научно-технической революции) на социальную структуру общества.
2. Станок мод. МА260Ф4
Многооперационный станок МА260Ф4 предназначен для обработки с четырех сторон корпусных деталей средних размеров (500
500
500 мм с использованием круглого стола). При использовании основного стола и обработки деталей с одной стороны можно обрабатывать детали больших габаритных размеров (800
600
600 мм). Основными операциями, выполняемыми на станке, являются: сверление, растачивание и развертывание точных отверстий, связанных между собой жесткими допусками взаимного расположения осей. Также на станке можно выполнять фрезерование и нарезание резьбы метчиками.
2.1. Техническая характеристика станка
| Частота вращения шпинделя | 12,5 – 1600 об/мин |
| Подача шпиндельной бабки, стола и салазок | 4,5 – 1000 мм/мин |
| Максимальный рекомендуемый диаметр растачивания | 200 мм |
| Число инструментов в магазине | 31 шт |
| Максимальный диаметр сверления по стали | 35 мм |
| Мощность главного привода | 5,4 кВт |
| Масса станка | 10 500 кг |
2.2. Устройство ЧПУ
Устройство ЧПУ типа «Размер-2М» или «П323», с которым работает станок, обеспечивает позиционное и прямоугольное формообразование. Программоноситель – восьмидорожковая перфолента, код ISO. Имеется цифровая индикация текущего и задаваемого значений перемещений по координатам. Система ЧПУ замкнутая, в качестве датчиков обратной связи применены сельсины. Число управляемых осей координат (всего/одновременно) равно 5/2. Дискретность отсчета по осям координат X,' Y, Z составляет 0,01 мм. Возможно введение коррекции длины и положения инструмента.
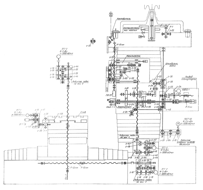
2.3. Кинематика станка
Рис. 1. Кинематическая схема станка мод. МА260Ф4
2.4. Шпиндельный узел станка
Шпиндель станка приводится во вращение от одного из двух закрепленных на нем зубчатых колес. Отсутствие разгрузки шпинделя от действия изгибающих сил, передающихся от зубчатых колес, и восприятие осевых сил задней опорой не отражает характерных для многооперационных станков тенденций, связанных с повышением требований к точности этих станков. В большинстве станков этого типа осевые силы воспринимаются передней опорой. Разгрузка шпинделя от сил, возникающих на ведущей шестерне, желательна для любых станков с вращательным главным движением и применяется в большинстве МС.
Зажим инструментальной оправки в данной конструкции осуществляется с помощью движущихся сухарей 1. В положении, указанном на рис. 2, эти сухари удерживают конец оправки с помощью тяги 2 и тарельчатых пружин 4. Освобождение оправки от зажима происходит при изменении давления в гидроцилиндре 3 и сжатии тарельчатых пружин 4.
Рис. 2. Шпиндельный узел станка мод. МА260Ф4
3. Напольный промышленный робот
Многоцелевые промышленные роботы (ПР) типа «Универсал-15» применяются для автоматизации погрузочно-разгрузочных работ, обслуживания различного технологического оборудования, межоперационного и межстаночного транспортирования объектов обработки и выполнения других вспомогательных операций.
3.1. Техническая характеристика робота
| Грузоподъемность | 15 кг |
| Число степеней подвижности | 6 |
| Наибольшая величина перемещения: | |
| – вокруг вертикальной оси I–I | 340 |
| – вдоль оси I-I | 400 мм |
| – вдоль горизонтальной оси III–III | 630 мм |
| – вокруг вертикальной оси II–II | 240 |
| – вокруг оси III–III | 180 |
| – вокруг оси IV–IV | 180 |
| Наибольшая скорость: | |
| – вокруг оси I–I поворота. | 84 град/с |
| – вертикального хода руки вдоль оси I–I | 0.27 м/с |
| – выдвижение руки вдоль оси III–III | 1.08 м/с |
| – поворота руки вокруг оси II–II | 132 град/c |
| Точность позиционирования | 1 мм |
| Масса | 690 кг |
3.2. Основные механизмы робота
Характеристики
Тип файла документ
Документы такого типа открываются такими программами, как Microsoft Office Word на компьютерах Windows, Apple Pages на компьютерах Mac, Open Office - бесплатная альтернатива на различных платформах, в том числе Linux. Наиболее простым и современным решением будут Google документы, так как открываются онлайн без скачивания прямо в браузере на любой платформе. Существуют российские качественные аналоги, например от Яндекса.
Будьте внимательны на мобильных устройствах, так как там используются упрощённый функционал даже в официальном приложении от Microsoft, поэтому для просмотра скачивайте PDF-версию. А если нужно редактировать файл, то используйте оригинальный файл.
Файлы такого типа обычно разбиты на страницы, а текст может быть форматированным (жирный, курсив, выбор шрифта, таблицы и т.п.), а также в него можно добавлять изображения. Формат идеально подходит для рефератов, докладов и РПЗ курсовых проектов, которые необходимо распечатать. Кстати перед печатью также сохраняйте файл в PDF, так как принтер может начудить со шрифтами.
















