Пояснительная записка (986873), страница 2
Текст из файла (страница 2)
Приводы подач комплектуются датчиками обратной связи типа индуктосин или резольвер. При комплектации с резольвером станок имеет класс точности Н и обозначается ИР500МФ4.
Поворотный стол (см. рис. 2) получает вращение от высокомоментного электродвигателя М5 (N = 2,8 кВт, n = 1500 мин-1) через червячную пару z = 1– 72. Перед поворотом от гидросистемы происходит расцепление двух зубчатых полумуфт z = 72 муфты М1 с торцовыми зубьями треугольного профиля. После поворота происходит сцепление зубчатых муфт и зажим стола.
Гидросистема станка обеспечивает уравновешивание шпиндельной бобки, переключение блока зубчатых колес в шпиндельной бабке, отжим инструмента в шпинделе, ориентацию шпинделя, фиксацию магазина, работу механизмов автооператора, отжим-зажим поворотного стола, столов-спутников, автоматическую смену столов-спутников.
2.5. Механизм смены инструмента
Механизм смены инструмента состоит из магазина вместимостью 30 инструментов и автооператора. Цикл смены инструмента происходит в следующем порядке: 1) магазин поворачивается для поиска инструмента; 2) автооператор делает ход вверх, захватывает инструмент за оправку и, выдвигаясь вдоль оси, вытаскивает оправку из гнезда, затем перемещается вниз и назад вдоль оси; 3) шпиндельная бабка движется вверх в позицию смены инструмента; автооператор в конце хода захватывает отработавший инструмент; 4) происходит смена инструмента, для этого автооператор совершает ход вперед, поворот на 180°, ход назад; 5) шпиндельная бабка опускается в рабочую позицию, а автооператор переносит отработавший инструмент в свое гнездо магазина; 6) автооператор опускается, чтобы не мешать повороту магазина при поиске следующего инструмента. Так как большая часть перечисленных действий происходит в период обработки, то непосредственно на смену инструмента в шпинделе затрачивается 6 с.
Магазин, получает вращение от высокомоментного электродвигателя М6 (N = 2,8 кВт, n = 1500 мин-1) с возбуждением от постоянных магнитов через зубчатую пару z1 и z2 (колесо z2 закреплено на корпусе инструментального магазина) (см. рис. 2). Номера гнезд магазина закодированы: в корпусе магазина установлены упоры, воздействующий па конечные выключатели, осуществляющие отсчет поворота при поиске необходимого гнезда.
Двухзахватный автооператор имеет механизмы поворота, вертикального перемещения и выдвижения, работающие от гидросистемы станка (соответствующие гидроцилиндры на схеме не показаны). Поворот происходит от реечной передачи m = 3 мм. Контроль крайних положений сборочных единиц и управление циклом автоматической смены инструментов осуществляется бесконтактными конечными выключателями.
Поворот двухпозиционного стола на 180° для автоматической смены спутников происходит от гидроцилиндра через реечную передачу с модулем m = 5 мм (на схеме не показана).
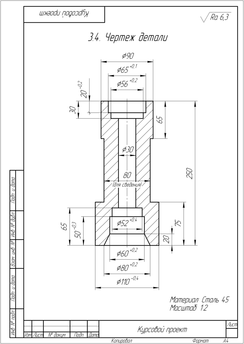
3. Заготовка и деталь
3.1. Способ получение заготовки
Поскольку материал обрабатываемой детали – сталь 45, целесообразно выбрать штамповку как способ получения заготовки. При штамповке получаем припуски на обработку 2-4 мм. Заготовка получается в форме короткой трубы.
3.2. Базирование и закрепление заготовки на станке
Для закрепления заготовки на станке используем самоцентрирующиеся тиски, зажим в которых осуществляется при подводе их губок с двух сторон к основанию заготовки (рис. 5).
Рис. 5. Зажим детали призматическими губками самоцентрирующихся тисков
Для обеспечения автоматического закрепления детали в приспособлении используем специальную головку с регулировкой крутящего момента (рис. 6). Головку устанавливаем в одном из гнезд магазина инструментов, например, в гнездо №3.
Рис. 6. Головка для вращения винта зажимного приспособления
4. Транспортно-накопительная система
Для накопления заготовок и позиционирования их под захват роботом с учетом достаточно большой длительности цикла обработки выбираем тактовый стол. Тактовый стол является одной из разновидностей тележечных грузонесущих конвейеров. Широкое разнообразие их использования обусловило большое число их конструктивных разновидностей.
4.1. Описание тактового стола
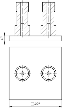
Рис. 7. Схема расположения заготовок на паллете тактового стола
актовый стол, используемый в данном РТК, представляет собой горизонтально замкнутый тележечный грузонесущий конвейер с настольным пульсирующим (тактовым) перемещением платформ, предназначенный для подачи заготовок и приема готовых деталей. Габаритные размеры тактового стола (длина5. Напольный промышленный робот
Многоцелевые промышленные роботы (ПР) типа «Универсал–20» применяются для автоматизации погрузочно-разгрузочных работ, обслуживания различного технологического оборудования, межоперационного и межстаночного транспортирования объектов обработки и выполнения других вспомогательных операций.
5.1. Техническая характеристика робота
| Грузоподъемность | 20 кг |
| Число степеней подвижности | 6 |
| Наибольшая величина перемещения: | |
| – вокруг вертикальной оси I–I | 340 |
| – вдоль оси I-I | 400 мм |
| – вдоль горизонтальной оси III–III | 630 мм |
| – вокруг вертикальной оси II–II | 240 |
| – вокруг оси III–III | 180 |
| – вокруг оси IV–IV | 180 |
| Наибольшая скорость: | |
| – вокруг оси I–I поворота. | 84 град/с |
| – вертикального хода руки вдоль оси I–I | 0.27 м/с |
| – выдвижение руки вдоль оси III–III | 1.08 м/с |
| – поворота руки вокруг оси II–II | 132 град/c |
| Точность позиционирования | 1 мм |
| Масса | 690 кг |
5.2. Основные механизмы робота
Рис. 8. Общий вид промышленного робота «Универсал–20»
Общий вид робота приведен на рисунке 8. Исполнительным механизмом ПР является манипулятор, который обеспечивает установку в пределах рабочей зоны захватного механизма схвата. Манипулятор имеет четыре степени подвижности руки 1 в сферической системе координат, которые реализуются механизмами: поворота 2 относительно оси II–II, выдвижения руки 3 вдоль оси III–III, поворота руки 4 относительно вертикальной оси I–I, подъема руки 5 вдоль оси I–I. Две ориентирующие степени подвижности рабочего органа-схвата 7 создают механизмы вращения кисти руки 6 относительно ее продольной оси III–III и поперечной оси IV–IV. Подвижные механизмы манипулятора защищены от попадания пыли, грязи и масла ограждением 8.
Установочные перемещения руки осуществляются с помощью электромеханических следящих приводов, а ориентирующие движения кисти руки и зажим-разжим схвата – пневмоцилиндрами.
Пневмоблок 9, которым комплектуется ПР, предназначен для подготовки, регулирования подачи сжатого воздуха из заводской сети и блокирования работы манипулятора при падении давления ниже допустимого.
Блок тиристорных электроприводов 10 формирует управляющие напряжения в якорной цепи электродвигателей постоянного тока.
Устройство программного управления 11 позиционного типа имеет возможность записи программы в режиме обучения (по первому циклу) и формирует управляющие сигналы на блок 10, а также технологические команды управления циклом работы манипулятора и обслуживаемого оборудования.
Блоки тиристорного электропривода ЭПТ6-У20 обеспечивают управление в следящем режиме электродвигателями постоянного тока типа СЛ-569 и СЛ-661, установленными в механизмах четырех программируемых степеней подвижности манипулятора.
Механизмы электроприводов включают в себя зубчатые или червячные редукторы, параметры которых, даны в кинематической схеме. Обратная связь исполнительных механизмов манипулятора по положению, и скорости осуществляется потенциометрическими датчиками типа ППМЛ, приводящимися с помощью зубчатых редукторов и тахогенераторов типа СЛ-121, которые приводятся в движение специальными зубчатыми или ременными механизмами.
Также пневмоблок предназначен для циклового управления двумя ориентирующими движениями кисти руки и захватным устройством. Приводы этих движений осуществляются от пневмоцилиндров. Для преобразования поступательного перемещения поршня во вращательное движение кисти руки используются винтовой копир (в приводе поворота кисти руки относительно ее продольной оси) и передача рейка-шестерня (в приводе качания кисти относительно поперечной оси). Привод зажима и разжима губок схвата осуществляется рычажным механизмом, присоединенным к штоку пневмоцилиндра. Соединение механизмов манипулятора между собой и устройством аналогового позиционного программного управления типа АПС-1 производится в соответствии с принципиальной электрической схемой.
5.3. Захватное устройство робота
















