Лекции по инженерной графике (966126)
Текст из файла
19
РАЗДАТОЧНЫЙ МАТЕРИАЛ
К КОНСПЕКТУ ЛЕКЦИЙ
ПО КУРСУ
« НАЧЕРТАТЕЛЬНАЯ ГЕОМЕТРИЯ
И ИНЖЕНЕРНАЯ ГРАФИКА»
ДЛЯ ГРУПП ТФ-9-14
ЛЕКЦИЯ №1
Рис.1.1
Рис.1.2
Рис.1.3
Рис.1.4
Рис.1.5
ЛЕКЦИЯ №2
2.1 Собирательное свойство проецирующей поверхности
Все линии и точки, принадлежащие проецирующей поверхности на том виде где она проецируется в линию совпадают с проекцией этой линии (рис.2.1).
Рис.2.1
2.2 Аксонометрия
Рис.2.2
Рис.2.3
Рис.2.4
Рис.2.5 Пример задания для построения изометрии
ЛЕКЦИЯ №3
Рис.3.1
3.2 Классификация поверхностей
Рис.4.2
3.3 Поверхности вращения. Цилиндрическая поверхность
Рис.3.3
3.4 Поверхности вращения. Коническая поверхность
Рис.3.4
4.5 Поверхности вращения. Сфера
Рис.3.5
ЛЕКЦИЯ №4
4.1 Частный случай пересечения поверхностей
а)
б)
Рис.4.2
4.2 Способ посредника
4.3 Посредник плоскость
а)
б)
Рис 4.5
ЛЕКЦИЯ №5
5.1 Посредник сфера
а)
Рис.5.2
5.2 Теорема Монжа
Рис.5.4
5.3 Сечения
.
Рис.5.5
Сечения строят как дополнительный вид по направлению, перпендикулярному секущей плоскости, так как сечение по определению – это изображение плоской фигуры, расположенной в секущей плоскости. При таком направлении проецирования определяется истинный вид этой фигуры(рис.5.6).
Рис.5.6
ЛЕКЦИЯ №6
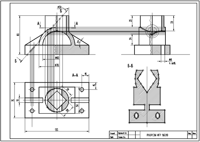
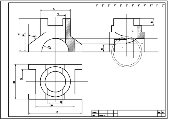
6.1. Разрезы, простые разрезы классификация
Рис.6.1
Рис.6.2
6.2 Классификация разрезов.
Рис.6.3
ЛЕКЦИЯ №7
7.1 Условности, применяемые при выполнении разрезов
1. Допускается на одном изображении показывать часть вида и часть разреза.
2. Если секущая плоскость совпадает с плоскостью симметрии детали, и разрез находится в проекционной связи, то для простых разрезов секущая плоскость не изображается и разрез не обозначается.
3.Отверстия на круглых фланцах или равномерно расположенные по окружности выкатываются в плоскость
разреза, но не под элемент детали.
4.Если секущая плоскость направлена вдоль оси или длинной стороны тонкой стенки типа ребра жесткости, то стенку не заштриховывают в разрезе и отделяют от остальной части детали сплошной толстой линией. В поперечном же разрезе - штрихуют.
5. Если секущая плоскость проходит вдоль оси монолитного выступа, то заштриховывается часть выступа. Остальная часть изображения отделяется сплошной волнистой линией.
6. Местный разрез служит для выяснения внутреннего устройства детали лишь в отдельном месте этой детали. Местный разрез изображается только со стороны вида. Отделяется от вида сплошной волнистой линией.
Местный разрез не обозначается, его нельзя выполнять под ребром жесткости детали.
7.Если на границе между видом и разрезом находится элемент детали (ребро призмы или пирамиды) то границей раздела между видом и разрезом является линия обрыва (сплошная тонкая волнистая линия).
8. Спицы колес, маховиков, шкивов, оси валы в продольном разрезе не штрихуются.
9.Допускается изображать утолщенной штрих - пунктирной линией часть предмета, которая находится между наблюдателем и секущей плоскостью.
Условности при выполнении разрезов иллюстрируются как решением задач, так и 3D моделями объектов (рис .7.1 а, б, в, г, д, е)
ЛЕКЦИЯ №8
8.1. Резьба
Рис.8.1
Рис.8.2
а)
б)
в)
Рис.8.3
а)
б)
в)
Рис.8.4
Вопросы по курсу ТПЧ:
Вопросы к защите по теме «Сопряжения»:
-
Дайте определение понятия центр сопряжения.
-
Какими признаками должна обладать касательная прямая к окружности?
-
Дайте определение точки сопряжения.
-
Опишите алгоритм построения различных видов сопряжений.
Вопросы к защите по теме « Метод проецирования Виды»:
-
Как обозначаются основные виды, смещенные на чертеже относительно своего регламентированного положения?
-
В каком случае допускается использование на видах штриховых линий?
-
Какое изображение предмета называется видом?
-
Какие виды предмета называются основными? Какое количество основных видов устанавливает ГОСТ ЕСКД?
-
Какие названия устанавливает ГОСТ ЕСКД для основных видов? Какой вид называется главным? Дать схему расположения основных видов.
Вопросы к защите по теме « Виды. Дополнительный вид»:
-
В каком случае допускается использование на видах штриховых линий?
-
Какой вид называется дополнительным? С какой целью строятся дополнительные виды?
-
Какая разница между основными и дополнительными видами?
-
Как указывается на чертеже направление, по которому строится дополнительный вид? Как обозначается на чертеже дополнительный вид? Когда применяется на чертеже условный знак «повернуто»?
-
Как строится на базе двух основных видов третий вид (основной или дополнительный)?
-
Какое изображение называется местным видом?
-
Какой чертеж называется комплексным чертежом?
Вопросы к защите по теме « Аксонометрия»:
-
Какое изображение называется аксонометрическим?
-
Какие виды аксонометрии Вы знаете?
-
Как располагаются оси ОСК изометрии?
-
Как располагаются оси ОСК в диметрии?
-
Какие коэффициенты искажения называются приведенными?
-
Как располагаются оси эллипса в аксонометрии?
Вопросы к защите по теме «Образование поверхностей»:
-
Что такое поверхность?
-
Способы образования поверхностей.
-
Способы задания поверхностей.
-
Что такое определитель поверхности?
-
Определители поверхностей вращения.
-
Что такое очерк поверхности?
-
Что такое каркасные линии поверхностей вращения?
-
Построение проекций точек, принадлежащих поверхностям.
-
Определение видимости точек на поверхностях.
-
Построение проекций линий, принадлежащих поверхностям.
-
Что такое характерные точки, их классификация?
-
Линии на поверхности цилиндра в результате сечения его плоскостями.
-
Линии на поверхности конуса в результате сечения его плоскостями.
Вопросы к защите по теме « Пересечение поверхностей»:
-
Что называется поверхностью-посредником?
-
Когда применяется посредник?
-
Какие требования предъявляются к посреднику?
-
Каков общий порядок построения проекций линии пересечения с помощью посредника?
-
Какие поверхности применяются в качестве посредника?
-
Когда применяется посредник-плоскость?
-
Какие поверхности называются соосными?
-
Как пересекаются соосные поверхности?
-
Когда применяется посредник-сфера?
-
Как определяются пределы изменения радиуса сферы-посредника?
-
Какие преимущества имеет способ сфер-посредников?
-
В каком случае для построения проекции линии пересечения достаточно воспользоваться каркасными линиями?
-
Когда проекция линии пересечения может быть построена координатным способом?
-
Как определяется видимость линии пересечения?
-
Как определяется видимость очерков пересекающихся поверхностей?
-
Когда проекция линии пересечения может быть построена по теореме Монжа?
-
В виде каких кривых могут быть проекции линий пересечения поверхностей второго порядка с общей плоскостью симметрии, параллельной плоскости чертежа?
Вопросы к защите по теме «Разрезы и сечения»:
-
С какой целью применяются разрезы и сечения?
-
Какое изображение называется сечением?
-
Какое изображение называется наклонным сечением? Как оно строится?
-
Как классифицируются сечения в зависимости от расположения относительно базового изображения?
-
Как изображаются и обозначаются вынесенные и надоенные печения? В каком случае вынесение сечения не обозначается?
-
Какое изображение называется разрезом?
-
Как классифицируются разрезы в зависимости от:
-
а) количества секущих плоскостей?
-
б) расположения секущей плоскости относительно предмета?
-
в) расположения секущей плоскости относительно плоскостей проекций?
-
г) полноты изображения?
-
Как указывают на чертеже положение секущей плоскости при выполнении простого разреза? Сложного разреза? Как указывают направление взгляда? Как отмечают разрез на чертеже?
-
Как выполняется ступенчатые разрезы?
-
Как выполняются ломаные разрезы?
-
Какой разрез называется местным? В каких случаях применяют местные разрезы?
-
Как рекомендуется выполнять разрезы симметричных предметов?
-
В каких случаях секущая плоскость и разрез на чертеже не обозначаются?
-
В каком случае часть вида и часть разреза разделяет сплошная волнистая линия и в каком случае осевая линия?
-
С какой стороны от оси рекомендуется располагать разрез при соединении части вида и части разреза?
-
Как производится штриховка в разрезах?
-
Какие условности при изображении в разрезах отдельных конструктивных элементов предмета на чертеже Вы знаете?
Характеристики
Тип файла документ
Документы такого типа открываются такими программами, как Microsoft Office Word на компьютерах Windows, Apple Pages на компьютерах Mac, Open Office - бесплатная альтернатива на различных платформах, в том числе Linux. Наиболее простым и современным решением будут Google документы, так как открываются онлайн без скачивания прямо в браузере на любой платформе. Существуют российские качественные аналоги, например от Яндекса.
Будьте внимательны на мобильных устройствах, так как там используются упрощённый функционал даже в официальном приложении от Microsoft, поэтому для просмотра скачивайте PDF-версию. А если нужно редактировать файл, то используйте оригинальный файл.
Файлы такого типа обычно разбиты на страницы, а текст может быть форматированным (жирный, курсив, выбор шрифта, таблицы и т.п.), а также в него можно добавлять изображения. Формат идеально подходит для рефератов, докладов и РПЗ курсовых проектов, которые необходимо распечатать. Кстати перед печатью также сохраняйте файл в PDF, так как принтер может начудить со шрифтами.
















