Лабораторная работа №2 (955164), страница 3
Текст из файла (страница 3)
А2 = 0,10.
Поправка А3 учитывает процессивность видов соединений при окончательной сборке «Зажима гидравлического». Имеем резьбовые соединения при ввинчивании «Гидроцилиндра в сборе» и свинчивании «Болтов М16» с «Гайками» (поз. 16). Поэтому, в соответствии с табл. 1,
А3 = 0,10.
Поправка А4 учитывает точность взаимного расположения деталей, которую необходимо обеспечить при сборке. На рис. 5 приведены требования по точности, которые необходимо удовлетворить при окончательной сборке «Зажима гидравлического». К этим требованиям относятся:
- обеспечить зазор между «Гайкой» (поз. 5), и соединенными между собой «Зажимом» (поз. 1) и «Поршнем» (поз. 11) 0,5±0,1 мм на диаметр;
- обеспечить отклонения от перпендикулярности «Пластины» (поз. 9) относительно продольной оси «Плиты» (поз. 3) в пределах 0,1 мм;
- обеспечить соосность «Гидроцилиндра в сборе» относительно «Зажима в сборе» с отклонением не более 0,05 мм;
- обеспечить посадку
«Зажима в сборе» в «Корпус» (поз. 4). Зазор в такой посадке составляет порядка 0,01…0,03 мм.
Таким образом, наиболее жесткие требования по точности взаимного расположения деталей при сборке (зазор или допуск положения) оказывается менее 0,1 мм. Поэтому, в соответствии с табл. 1,
А4 = 0,15.
Поправка А5 учитывает приспособленность деталей для условий сборки. Видно, что детали при сборке сохраняют свою форму, имеют поверхности для ориентирования и базирования при сборке. Поэтому, в соответствии с табл. 1,
А5 = 0,00.
Поправка А6 учитывает наличие подгоночных и доводочных работ при сборке. При окончательной сборке «Зажима гидравлического» подгоночных и доводочных работ нет. Поэтому, в соответствии с табл. 1,
А6 = 0,15.
Поправка А7 учитывает удобство монтажа, демонтажа, ремонта и доступность мест сборки. При соединении «Зажима в сборе» с «Гидроцилиндром в сборе» внутри «Корпуса» (поз. 4) необходимо удерживать через отверстие в детали «Крышка» (поз. 7) отверткой деталь «Поршень» от проворачивания. Здесь одновременно происходит свинчивание двух резьбовых соединений при сочленении «Гайки» (поз. 5) с «Корпусом» (поз. 4) и «Поршня» (поз. 11) с «Винтом» (поз. 2). Очевидно, что нет удобства монтажа и доступности мест сборки. Поэтому, в соответствии с табл. 1,
А7 = 0,10.
Поправка А8 учитывает коэффициент агрегатирования, т.е. отношение количества деталей «Зажима гидравлического», входящих в состав сборочных единиц, к общему количеству деталей «Зажима гидравлического». Можно подсчитать, что общее количество деталей «Зажима гидравлического» составляет 32 шт. Из них 8 деталей входят в состав «Зажима в сборе» и 10 деталей входят в состав «Гидроцилиндра в сборе». Таким образом, коэффициент агрегатирования составляет:
Поэтому, в соответствии с табл. 1,
А8 = 0,05.
Подставляя определенные значения поправок Аi в формулу (11), имеем:
Рассчитанную величину КС.О вносим в граф показателей технологичности, представленный на рис. 4.
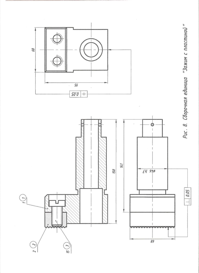
Перейдем к расчету показателя технологичности КIС.О сборки сборочной единицы СЕ1 «Зажим в сборе» (рис. 6). Расчет производится по формуле (11). Для определения частных характеристик технологичности, определяющих КIС.О, оцениваем технологичность заштифтовывания между собой при помощи штифта (поз. 20) сборочных единиц СЕ2 «Зажим с пластиной» и СЕ3 «Винт в сборе».
Поправка А1, учитывающая количество «Зажимов в сборе», входящих в состав «Зажима гидравлического» (один «Зажим в сборе») в соответствии с табл. 1 составляет
А1 = 0,15.
Поправка А2, учитывающая равное семи количество наименований деталей, входящих в состав «Зажима в сборе» (счёт наименований отмечен кружками рядом с позициями чертежа на рис. 6), в соответствии с табл. 1 составляет
А2 = 0,10.
Поправка А3, учитывающая прогрессивность видов соединений, в связи с тем, что заштифтовывание основано на пластической деформации, на основании табл. 1 составляет
А3 = 0,00.
Поправка А4, учитывающая требуемую точность взаимного расположения деталей «Зажима в сборе», в связи с тем, что отклонение от соосности посадочной поверхности «Зажима» (поз. 1) и резьбовой поверхности «Винта» (поз. 2) не должны превышать 0,2 мм, на основании табл. 1 составляет
А4 = 0,10.
Поправка А5, учитывающая приспособленность деталей «Зажима в сборе» для условий сборки, в связи с тем, что детали сохраняют форму, имеют поверхности для взаимной ориентации и базирования, на основании табл. 1 составляет
А5 = 0,00.
Поправка А6, учитывающая наличие подгоночных и доводочных работ при сборке «Зажима в сборе», в связи с тем, что штифтовка предусматривает предварительное сверление и развертывание отверстия, прошивающего насквозь «Винт» (поз. 2) и «Зажим» (поз. 1), в соответствии с табл. 1 составляет
А6 = 0,10.
Поправка А7, учитывающая то обстоятельство, что при сборке «Зажима в сборе» удобства монтажа, демонтажа, ремонта и доступность мест сборки имеются, в соответствии с табл. 1 составляет
Поправка А8, учитывающая коэффициент агрегатирования сборочной единицы «Зажим в сборе» равный Ка = 0,875 (общее число деталей 8, а число деталей, входящих в состав сборочных единиц «Зажим с пластиной» и «Винт в сборе» в сумме составляет 7), в соответствии с табл. 1 составляет
А8 = 0,00.
Подставляя определённые для СЕ1 «Зажим в сборе» значения поправок Аi в формулу (11), имеем
Рассчитанную величину КIС.О вносим в граф показателей технологичности, представленный на рис. 4.
А7 = 0,00.
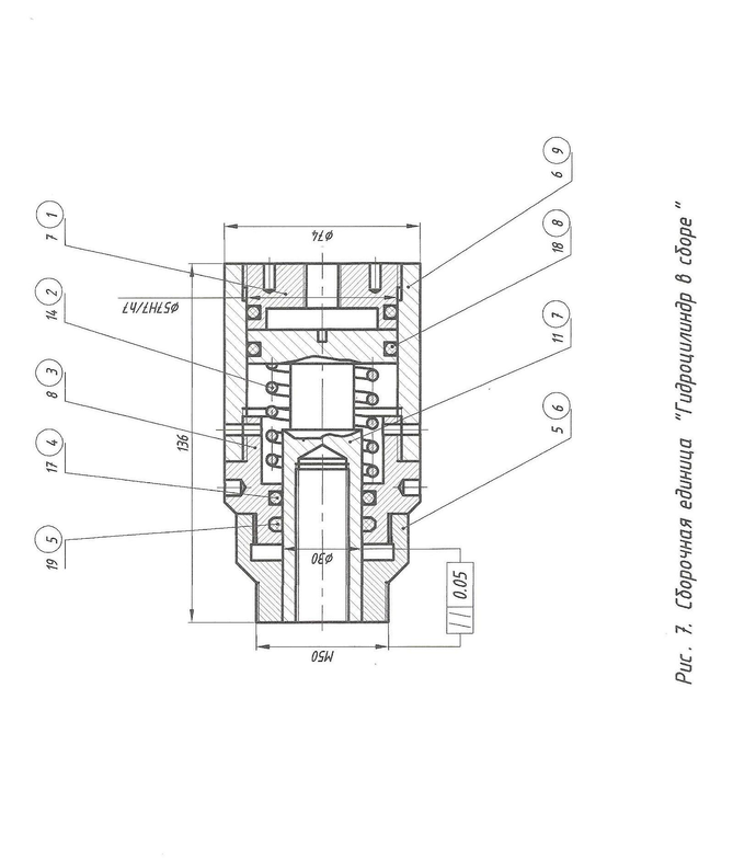
Перейдем к расчёту показателя технологичности КIVС.О сборки сборочной единицы СЕ4 «Гидроцилиндр в сборе» (рис. 7), характеризующего технологичность соединения между собой сборочных единиц СЕ5 «Крышка в сборе левая», СЕ6 «Поршень в сборе», СЕ7 «Крышка в сборе правая», а также деталей Д14, «Цилиндр» (поз. 1) и Д10 «Пружина» (поз. 14).
Расчёт КIVС.О производится по формуле (11) с использованием следующих поправок Ai.
Поскольку в «Зажиме гидравлическом» применяется только один «Гидроцилиндр в сборе» то, поправка А1, характеризующая унификацию сборочных единиц, в соответствии с табл. 1 составляет
А1 = 0,15.
Сложность сборочной единицы «Гидроцилиндр в сборе» характеризуется количеством наименований деталей, из которых она состоит. Это количество равно девяти. В соответствии с табл. 1, имеем
А2 = 0,10.
В связи с тем, что при сборке «Гидроцилиндра в сборе» применяются резьбовые соединения (ввинчивание правой и левой крышки в сборе), то оценивающая прогрессивность видов соединений поправка А3 в соответствии с табл. 1 составляет
А3 = 0,10.
Поправка А4, учитывает точность взаимного расположения деталей при сборке «Гидроцилиндра в сборе», а именно: отклонение от параллельности осей резьбовой поверхности М50 «Гайки» (поз. 5) и цилиндрической поверхности «Поршня» (поз. 11) не более 0,05 мм, а также посадка
дисковой поверхности «Поршня» (поз. 11) в «Цилиндре» (поз. 6), предполагающая зазор в пределах 0,01…0,03 мм. Поскольку указанные отклонения составляют величины ≤ 0,1 мм, то, в соответствии с табл.1, поправка
А4 = 0,15.
В связи с тем, что при сборке «Гидроцилиндра в сборе» деталь «Пружина» (поз. 14) меняет свою форму, то поправка А5, оценивающая приспособленность деталей и сборочных единиц «Гидроцилиндра в сборе» к условиям его сборки, в соответствии с табл. 1 составляет
А5 = 0,20
При сборке «Гидроцилиндра в сборе» подгоночные и доводочные работы не предусматриваются. Поэтому в соответствии с табл. 1, поправка А6 составляет
А6 = 0,00.
Поправка А7, учитывающая удобство монтажа, демонтажа, ремонта и доступность мест сборки «Гидроцилиндра в сборе», в связи с тем, что при ввинчивании «Крышки правой в сборе» необходимо сжать «Пружину» (поз. 14) и удерживать её в сжатом состоянии, что является неудобством, в соответствии с табл. 1, составляет
А7 = 0,10.
Поскольку коэффициент агрегатирования «Гидроцилиндра в сборе» равен Ка = 0,8 (общее число деталей сборочной единицы равно десяти, из них только «Пружина» (поз. 14) и «Цилиндр» (поз. 6) не входят в состав составляющих «Гидроцилиндр в сборе» сборочных единиц»), то в соответствии с табл. 1, поправка А8 составляет
А8 = 0,05.
Подставляя выбранные поправки Ai в формулу (11), получаем показатель КIVС.О для сборочной единицы «Гидроцилиндр в сборе»
Рассчитанное значение величины КIVС.О вносим в соответствующую вершину графа на рис. 4. Расчёт остальных показателей КIС.О приведём в табл. 2. Полученные численные значения этих показателей внесены в граф на рис. 4.
ПРИЛОЖЕНИЕ
















