125205 (717555)
Текст из файла
Міністерство освіти та науки України
Національний університет водного господарства та природокористування
Кафедра дорожніх, меліоративних машин і обладнання
Реферат
На тему:
"Обертові печі"
Виконала:
Студентка 3-го курсу МЕФ
Групи ОХВ-31 Ніколайчук Я.О.
Перевірив: Науменко Ю.В.
Рівне - 2006р.
Обертові печі
Пічні агрегати мокрого і сухого способів виробництва
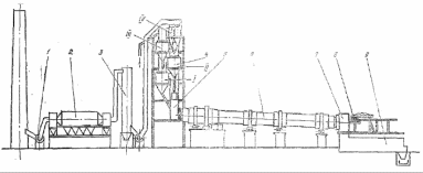
Пічний агрегат є основним технологічним устаткуванням цементного заводу. Агрегат мокрого способу виробництва (мал.1) є піччю, що обертається, 4, до якої з холодного кінця примикають пилеосаджувальна камера 8, шламовий живильник 3, електрофільтри 2, головний димосос 1, устаткування для повернення пилу в піч 9, а з гарячого кінця - розвантажувальна головка 5, пристрій для введення і спалювання палива 6, охолоджувач клінкеру 7. Агрегат обладнаний пристроями Циркуляційного рідкого мастила вузлів печі. Комплекс контрольно-вимірювальних і регулюючих приладів і пристроїв дозволяє управляти всіма процесами з пульта машиніста.
Зварний металевий корпус печі, що обертається, футерований зсередини вогнетривкою цеглиною. На корпусі закріплені бандажі, якими пекти спирається на роликоопоры.
Пекти приводиться в обертання при йодом. Завдяки обертанню і нахилу (ухил складає 3...4%) обпалюваний матеріал просувається від холодного до гарячого кінця печі і піддається тепловій дії димових газів, просмоктуваних димососом назустріч матеріалу, що рухається.
В пилеосаджувальній камері крупні частинки пилу з потоку димових газів, що виходять з печі, осідають унаслідок різкого збільшення діаметра поперечного перетину і, отже, зменшення швидкості газів. Димові гази викидаються в атмосферу після остаточного очищення в електрофільтрах. Уловлений пил з бункерів пиловловлюючих пристроїв гвинтовими конвейєрами подається в пневмонасоси, які повертають її в піч. Ущільнення на кінцях печі, що обертається, що входять в пилеосаджувану камеру і розвантажувальну головку, перешкоджають підсосам в піч зовнішнього повітря.
Пристрій для спалювання палива вводиться в піч через розвантажувальну головку, до нижньої частини якій примикає шахта охолоджувача клінкеру.
Пічні агрегати звичайно комплектуються колосниковими охолоджувачами типа "Волга".
При мокрому способі виробництва матеріал подається в піч у вигляді шламу влажностью36.,42%. Впечи розрізняють технологічні зони - сушки, підігріву, декарбонізації, екзотермічних реакцій, спікання, попереднього охолоджування.
В зоні сушки для збільшення поверхні теплообміну між матеріалом і газами, що відходять, встановлена ланцюгова завіса, довжина якої досягає 30...50 м. Ланцюгова завіса служить накопичувачем шламу і добрим пиловловлювачем.
В зоні підігріву можуть встановлюватися внутрішньопічні теплообмінники різних конструкцій (ланцюгові, лопатеві, осередкові). Зони сушки і підігріву складають близько 60% довжини печі.
Температура матеріалу в зоні спікання підіймається до 1500 °С, а температура газів - до 1750 °С.
В результаті фізико-хімічних процесів, що відбуваються з матеріалом в печі, утворюється клінкер, який розвантажується в охолоджувач, маючи температуру до 1300 °С. В охолоджувачі клінкер охолоджується до температури 70...90 °С.
Пічний агрегат сухого способу виробництва (мал.2) складається з печі, що обертається, 6, системи теплообмінників 4, завантажувальної головки 5, зволожувача S, електрофільтрів 2, димососів 1, розвантажувальної головки 7, пристрої для спалювання палива 8, охолоджувача клінкеру 9. Агрегат оснащений станцією циркуляційного мастила вузлів печі, а також комплексом контрольно-вимірювальних і регулюючих пристроїв управління. На відміну від мокрого способу виробництва, при сухому способі матеріал у вигляді сухої сировинної муки перед подачею в піч заздалегідь підігрівається в циклонних теплообмінниках потоком гарячих газів, що виходять з печі.
При сухому способі печі, що обертаються, виконуються короткими і температура що відходять з печі газів не перевищує 1100 °С. Сировинна мука подається після дозування транспортуючими пристроями у вихідний газохід циклопа ступеня ІІІ і завдяки високій швидкості потоку димових газів в газоходах (12.20 м/с) вноситься в циклони ступеня ІV. Тут сировинна суміш уловлюється і по тічках поступає у вихідний газохід циклопа ступеня ІІ, звідки потім вноситься в циклоп ступеня ІІІ. Між гарячими газами і сировинною сумішшю відбувається інтенсивний теплообмін, який таким же чином здійснюється і в циклонах ступенів ІІ, І. З циклону ступеня І матеріал подається в піч. Пройшовши чотири ступені циклонів, сировина нагрівається до 700...800°С і частково декарбонизируется. Остаточна декарбонізація і процеси клинкерообразования здійснюються в печі.
Рис.1.
Температура димових газів на виході батареї циклонів ступеня ІV не перевищує 300 °С. Коефіцієнт очищення цих циклонів складає приблизно 0,85.
Перед електрофільтрами, що проводять остаточне очищення димових газів, звичайно вмонтовується зволожувальна установка, що знижує температуру газів до 200...250 °С. Для подолання великих опорів в газовому тракті пічного агрегату необхідні димососи, створюючі високе розрідження (5...6 кПа). Часто використовується система двох димососів - перед електрофільтрами і за ними.
В сучасних технологічних лініях тепло що відходять з циклонних теплообмінників газів використовується для сушки сировини в помольних відділеннях.
Пічні агрегати сухого способу виробництва мають більш високі техніко-економічні показники в порівнянні з агрегатами мокрого способу. На випалення сировини в них затрачується значно менша кількість тепла.
В розвитку пічних агрегатів сухого способу виробництва цементу спостерігається тенденція до поєднання запічних циклонних теплообмінників з виносними реакторами декарбонізаторами. Вони встановлюються безпосередньо за піччю, будучи додатковим ступенем теплообмінника. На мал.3 приведена схема пічного агрегату з реактором-декарбонизатором однієї з поширених систем SF. Тут за піччю встановлений реактор-декарбонизатор І, є вихровою камерою з додатковим пристроєм спалювання палива 2. Для спалювання палива в реактор подається нагрітий до 600 °З повітря з охолоджувача клінкеру по воздуховоду 5.
Рис.2.
Сировина з циклону ступеня ІІ поступає в реактор, піддається тепловій обробці, вноситься в циклон ступеня І і потім поступає в піч, В реакторі-декарбонізаторі спалюється до 50...60% загальної кількості палива, у зв'язку з чим в ньому здійснюється майже повна декарбонізація сировини (приблизно 95%).
Рис.3.
У зв'язку із значним зменшенням теплового навантаження на піч представляється можливим зменшити її діаметр, отже, понизити металоємність, підвищити стійкість футеровки, спростити обслуговування.
Так, в пічному агрегаті продуктивністю 3000 т клінкеру в доба пекти 6,4 х 95 м замінюється піччю 4,5 х 80м.
Конструкції печей, що обертаються
До основних елементів і вузлів печей, що обертаються, відносяться наступні: корпус, бандажі, роликоопори, відкрита зубчата передача, головний і допоміжний приводи, пристрої для утримання печі від сповзання, внутрішньопічні теплообмінні пристрої, ущільнення гарячого і холодного кінців печі.
Корпус печі, що обертається, 5 X 185 м (мал.4), вживаної при мокрому способі виробництва цементу, є зварним барабаном І з листової сталі завтовшки 30...110мм, футерований всередині вогнетривкою цеглиною і що спирається бандажами 2 на сім роликоопор 3. Роликоопори у вигляді двох що рознесли по ширині роликів змонтовані на рамах і встановлені на фундаментних опорах 4
Піч має ухил до горизонту, становлячий 3,5%. В даній конструкції вона утримується від сповзання гідроупорами. При такій системі пекти забезпечується наполегливими роликами 5 і гідроциліндрами 6. Печі старих конструкцій утримують від сповзання роликами, встановленими на декількох опорах з перекосом по відношенню до подовжньої осі печі.
Пекти приводиться в зрощення головним приводом 7, розташованим на опорі IV, через відкриту зубчату передачу 8. Привід печі двосторонній. Пекти забезпечується також допоміжним приводом 9, який використовується для провертання корпусу з малою частотою обертання при виконанні ремонтних і футеровочних робіт, а також в аварійних ситуаціях.
В печі навішується ланцюгова завіса 10 у вигляді гірлянд або кінців ланцюгів, що вільно висять. Холодний і гарячий кінці печі мають ущільнення 11,12. Ущільнення гарячого кінця печі виконано аеродинамічним.
Рис.4.
Піч забезпечена пристроєм 13 для введення уловлюваної в пиловловлювачах пилу за ланцюгову зону. Станції циркуляційного рідкого мастила 14 призначені для подачі масла в редуктор і підшипники приводу, в підшипники роликоопор, в ті, що зачіпляють вінцевих і підвінцевих шестерень. Гарячий кінець печі охолоджується установкою вентилятора 15.
Розглянемо конструкцію основних вузлів і деталей печей.
Корпус. Один з найвідповідальніших елементів печі, що обертається, піддається не тільки силовим діям вагових навантажень, але випробовує і температурні напруги, нагріваючись в зоні спікання до 300...400 °С. Стійкість футеровки великою мірою залежить від жорсткості оболонки корпусу. Значні деформації корпусу приводять до різкого скорочення термінів служби футеровки. Найбільші деформації обичайок корпусу мають місце над опорами, отже, у опор жорсткість обичайок повинна бути більше, ніж в прольотах. Виходячи з цього обичайки корпусів розділяють на рядові (пролітні) і підбандажні, товщина яких більше, ніж пролітних.
Корпуси печей зварюються з окремих обичайок на місці монтажу в секції. Зварка монтажних секцій проводиться після збірки і вивіряння всього корпусу і нівелювання його по бандажах. Для виготовлення обичайок використовують листову сталь М16С або ВСТЗсц, при експлуатації печей в північно-східних районах рекомендується низьколегована сталь 09Г2С з низьким порогом холодоломкості. Розглянемо конструкцію корпусу печі 7/6,4 х 95 м (мал.5). Для зниження швидкості газового потоку у вихідному перетині печі діаметр кінця корпусу на довжині близько 15 м збільшений до 7 м.
Товщина пролітних обичайок корпусу І по довжині печі різна - від 36 до 60 мм, а підбандажних - від 60 до 90 мм На підбандажні обичайки наварені накладки 2, на які проводиться посадка бандажів. Для запобігання пересипання що подається в піч сировинної суміші в завантажувальну головку до холодного кінця корпусу прикріплений усічений конус 3, діаметр вхідного перетину якого рівний 4950 мм На гарячому кінці корпусу після перехідної секції, яка зменшує діаметр з 6,4 до 5,3 м, встановлений кожух охолоджування, виконаний у вигляді зовнішньої обичайки 4 з конусною частиною. Простір між корпусом печі і кожухом утворює сорочку охолоджування, в яку для запобігання перегріву гарячого кінця корпусу нагнітається з боку конуса повітря установкою вентилятора.
На зовнішній обичайці кожуха 4 передбачені елементи ущільнення гарячого кінця печі. Таке рішення, вживане в сучасних конструкціях печей як типове, достатньо ефективно. Воно дозволяє значно поліпшити умови роботи не тільки обичайки гарячого кінця корпусу, але і елементів ущільнення, завдяки тому, що останні розташовуються на охолоджуваному кожусі, температура стінок якого значно нижче за температуру корпусу.
Торець розвантажувального кінця корпусу захищається футеровочними плитами 5 з жаростійкої сталі. Для подачі і видалення елементів футеровки, а також для відбору проб обпалюваного матеріалу по довжині корпусу печі встановлені спеціальні люки 6.
Конструкції гарячих кінців корпусів печей 5 X 185 м і 6,4 X 95 м. Для запобігання переливання шламу в пилеосаджувальну камеру на холодному кінці печі 5 х 185 м в корпус печі вварено підпірне кільце, діаметр вхідного перетину якого складає 3500 мм
В печах мокрого способу виробництва з холодного кінця навішуються ланцюги (ланцюгова зона). Для цього до корпусу печі приварюють вузли кріплення ланцюгів.
Бандажі. Корпус печі спирається на роликоопори бандажами. Збірка і зварка останніх проводиться на місці монтажу з напівкілець, заздалегідь оброблених на заводі-виготівнику. При установці бандажів враховують різне теплове розширення підбандажної обичайки і бандажа. В холодному станів між бандажем і підбандажною обичайкою передбачають зазор на теплове розширення обичайки. Зазори вибираються такими, щоб забезпечувалася щільна посадка бандажа. Якщо зазор в сполученні бандаж - підбандажна обичайка не усунений, при обертанні печі має місце відносне переміщення поверхонь, що сполучаються, отже, їх зношування. Для виключення цього зазор вибирають так, щоб при розігріванні корпусу печі отримати посадку з деяким тепловим натягом, що забезпечує більш надійне з'єднання бандажа з корпусом. Проте в цьому випадку при розрахунку підбандажної обичайки і бандажа слід враховувати напруги від теплового натягу. Бандажі, як правило, встановлюють на заздалегідь приварені до підбандажної обичайки корпуси печі накладки завтовшки 25...40 мм неповним, рівними ширині накладок.
Характеристики
Тип файла документ
Документы такого типа открываются такими программами, как Microsoft Office Word на компьютерах Windows, Apple Pages на компьютерах Mac, Open Office - бесплатная альтернатива на различных платформах, в том числе Linux. Наиболее простым и современным решением будут Google документы, так как открываются онлайн без скачивания прямо в браузере на любой платформе. Существуют российские качественные аналоги, например от Яндекса.
Будьте внимательны на мобильных устройствах, так как там используются упрощённый функционал даже в официальном приложении от Microsoft, поэтому для просмотра скачивайте PDF-версию. А если нужно редактировать файл, то используйте оригинальный файл.
Файлы такого типа обычно разбиты на страницы, а текст может быть форматированным (жирный, курсив, выбор шрифта, таблицы и т.п.), а также в него можно добавлять изображения. Формат идеально подходит для рефератов, докладов и РПЗ курсовых проектов, которые необходимо распечатать. Кстати перед печатью также сохраняйте файл в PDF, так как принтер может начудить со шрифтами.















