98510 (704541)
Текст из файла
81
4 ОХРАНА ТРУДА
4.1 Краткая характеристика объекта исследования по вопросам охраны труда
Региональное представительство расположено в гражданском здании. Арендуемое помещение имеет площадь 72 м2. Работает 8 человек: бухгалтер, экономисты, операторы. Работа заключается в управлении, экономическом анализе, умственном труде, бухгалтерских расчетах.
4.2 Выявление и анализ опасных и вредных производственных факторов в рассматриваемой рабочей зоне
4.2.1 Анализ состояния воздушной среды
Так как в рассматриваемом помещении не происходит производственный процесс, то концентрация вредных веществ находится в предельно допустимых значениях по ГОСТ 12.1.005–88 «ССБТ. Общие санитарно-гигиенические требования к воздуху рабочей зоны».
Температура и скорость воздуха соответствуют СН 4088–86 «Санитарные нормы микроклимата производственных помещений».
Параметры микроклимата
Таблица 4.1
| Показатели | Оптимальное Значение | Допустимое Значение | Фактическое значение |
| Температура, °С | 20 – 23 | 19 – 25 | 20 - 21 |
| Относительная влажность, % | 40 – 60 | 75 | 55 |
| Скорость движения воздуха, м/с | 0,1 | 0,2 | 0,2 |
Ионизация воздуха в рабочем помещении не соответствует СанПиН 2152–80 «Санитарно-гигиенические нормы допустимых уровней ионизации воздуха производственных и общественных помещений». Концентрация отрицательных ионов составляет 100 ионов на 1см3 воздуха. В пункте 4.3.3 мы объясним приобретение аппаратов аэроионопрофилактики для повышения концентрации отрицательных ионов в воздухе рабочего помещения.
4.2.2 Анализ производственного освещения
В данной рабочей зоне имеются 2 боковых световых проема окна, не дающие достаточно уровня освещения, поэтому использовано совмещенное освещение, при котором в светлое время суток естественное освещение дополняется искусственным, однако и оно не соответствует СНиП II–4–79 «Строительные нормы и правила. Естественное и искусственное освещение».
Фактическая освещенность в рабочем помещении равна 300 лк. В пункте 4.3.1 мы рассчитаем необходимое значение освещенности и схему расположения светильников.
4.2.3 Выявление и анализ наличия шума, вибрации, инфра- и ультразвука
Так как помещение находится в гражданском здании, производственные шумы отсутствуют. А бытовые шумы заглушают потолочные звукопоглощающие плиты, металлопластиковые окна, поэтому значение шума находится в норме по ГОСТ 12.1.003 – 83 «Защита от шума. Требования безопасности».
Инфра- и ультразвук отвечают соответственно СН 22-74-80 и ГОСТ 12.1.001-75.
Инфразвук
Таблица 4.2
| Показатели | Допустимое значение | Фактическое значение |
| 2, 4, 8 и 16 Гц | Не более 105 дБ | 80 дБ |
| 32 Гц | Не более 102 дБ | 75 дБ |
Ультразвук
Таблица 4.3
| Показатели | Допустимое значение | Фактическое значение |
| 11 – 20 кГц | 75 – 110 дБ | 60 дБ |
| 20 – 100 кГц | Не выше 110 дБ | 85 дБ |
Вибрация в рабочей зоне соответствует нормам ГОСТ 12.1.012-90 «Вибрационная безопасность. Общие требования».
4.2.4 Выявление и анализ ЭМП (магнитные поля, электрические поля, ЭМП радиочастотного диапазона)
Электромагнитное излучение радиочастотного диапазона соответствует ГОСТ 12.1.006 – 84 «ССБТ. Электромагнитные поля радиочастот. Допустимые уровни на рабочих местах и требования к проведению контроля».
4.2.5 Эргономические характеристики рабочего места
Начальные рабочие места и их взаимное расположение не соответствует ГОСТ 21958–76 «Система «человек-машина». Зал и кабины операторов. Взаимное расположение рабочих мест. Общие эргономические требования» и ГОСТ 21839–76 «Система «человек-машина». Кресло человека-оператора. Общие эргономические требования». Расчет будет произведен в пункте 4.3.2.
4.3 Разработка мероприятий, направленных на устранение или снижение вредного воздействия выявленных производственных факторов
4.3.1 Расчет освещенности
Длина помещения А=12 м.
Ширина помещения А=6 м.
Расчетная высота подвеса светильника Н=3,0 м.
Наименьший размер объекта различения 0,35 мм.
Контраст объекта различения с фоном – малый.
Характеристика фона – темный.
Система освещения – общая.
Светильник – ЛП021.
Концентрация пыли – 0,3 мг/м3.
Расчет освещения
В зависимости от разряда зрительной работы (0,35 мм), контраста объекта с фоном (малый), характеристики фона (темный) и системы освещения (общая) вычисляем норму освещенности – Етабл = 500лк.
Определение типа ламп для заданного светильника
Таблица 4.4
| Светильник | Тип КСС | Тип ламп | Мощность ламп - Р, Вт Световой поток - Ф, лм Число ламп - n | ||
| ЛП021 | Д | Люминес-центная лампа (ЛЛ) | 20 1180 2; 4 | 40 3000 2; 4 | 65 4650 2; 4 |
Определяем норму освещенности
в зависимости от типа ламп:
для газоразрядных ламп
= Етабл.
В рабочем помещении фактическая освещенность Еф = 300 лк, что меньше нормы освещения
= 500лк, то есть освещенность недостаточна.
Определим освещенность, которую должно создавать общее освещение в зависимости от системы освещения. Для системы общего освещения
=
= 500лк.
Вычисляем коэффициент запаса Кз в зависимости от концентрации пыли: Кз = 1,5.
Рассчитаем коэффициент минимальной освещенности: для ЛЛ
.
Определим тип КСС заданного светильника: КСС – Д.
Найдем значения b и c в зависимости от типа КСС и заданного сочетания коэффициентов отражения соответственно потолка, стен и рабочей поверхности
:
b = 1,2;
c = 0,53.
Определим значения
и
в зависимости от типа КСС:
Определим площадь помещения S = A · B:
S = 12 · 6 = 72 м2
Вычислим индекс помещения по формуле:
Определим коэффициент использования
Найдем эквивалентную площадь Sэ по
Рассчитаем оптимальное расстояние между светильниками:
Определим оптимальное число светильников
:
Вычислим требуемый световой поток светильника
:
Выберем световой поток лампы Ф, лм, мощность лампы Р, Вт, и число ламп в светильнике n в зависимости от
, чтобы приближенно выполнялось условие
.
Р = 80 Вт, Ф = 5220 лм, n = 4.
Определим длину светильника Lc, м, в зависимости от типа и мощности лампы:
Вычислим освещенность Е1, создаваемую одним светильником:
Определим предварительное число светильников:
Найдем предварительное расстояние между светильниками:
Рассчитаем предварительное значение отношения расстояния между светильниками к расчетной высоте подвеса светильников:
Вычислим число рядов светильников вдоль стороны А, округлив значение до ближайшего меньшего числа:
Найдем число рядов светильников вдоль стороны B, округлив значение до ближайшего большего числа:
Рассчитаем число светильников:
Определим минимальную освещенность:
Найдем относительное отклонение минимальной освещенности от нормированной, %:
Определим расстояние между светильниками вдоль стороны А:
Определим расстояние между светильниками вдоль стороны B:
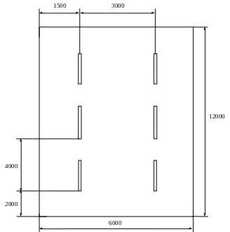
Рис. 4.1 – Схема размещения светильников. [41]
4.3.2 Расчет эргономических характеристик
Размещение рабочих мест в помещении.
С учетом линейных размеров:
а) Фактическая площадь поля (Sф) и объем исследуемого помещения (Vф):
Sф = А B = 12 6 = 72 м2,
где B - ширина, A - длина.
Vф = Sф h = 72 3,5 = 252 м3,
где h - высота.
б) Размеры площади пола (Sн) и объем помещения (Vн) необходимые для размещения указанного количества рабочих мест пользователей ВДТ:
Sн = Nвдт Sвдт = 8 6 = 48 м2,
Характеристики
Тип файла документ
Документы такого типа открываются такими программами, как Microsoft Office Word на компьютерах Windows, Apple Pages на компьютерах Mac, Open Office - бесплатная альтернатива на различных платформах, в том числе Linux. Наиболее простым и современным решением будут Google документы, так как открываются онлайн без скачивания прямо в браузере на любой платформе. Существуют российские качественные аналоги, например от Яндекса.
Будьте внимательны на мобильных устройствах, так как там используются упрощённый функционал даже в официальном приложении от Microsoft, поэтому для просмотра скачивайте PDF-версию. А если нужно редактировать файл, то используйте оригинальный файл.
Файлы такого типа обычно разбиты на страницы, а текст может быть форматированным (жирный, курсив, выбор шрифта, таблицы и т.п.), а также в него можно добавлять изображения. Формат идеально подходит для рефератов, докладов и РПЗ курсовых проектов, которые необходимо распечатать. Кстати перед печатью также сохраняйте файл в PDF, так как принтер может начудить со шрифтами.
















