98510 (704541), страница 2
Текст из файла (страница 2)
где Nвдт - количество рабочих мест; Sвдт - const.
Vн = Nвдт Vвдт = 8 20 = 160 м3,
где Vвдт - const.
в) коэффициент вместимости исследуемого помещения по площади (Кs) и по объему (Кv):
Кs = Sф/Sн = 72/48 = 1,5,
Кv = Vф/Vн = 252/160 = 1,57,
г) количество рабочих мест, которые можно разместить в помещении с учетом линейных размеров:
Ns = Nвдт Кs = 8 1,5 = 12,
Nv = Nвдт Кv = 8 1,57 = 13,
В данном помещении с учетом линейных размеров можно разместить 12 рабочих мест пользователей ВДТ [40]
С учетом расположения окон и требований к пространственному размещению ВДТ
а) длина и ширина помещения относительно сторон света:
р1 стена с окнами = 12 м
р2 стена без окон =6 м
б) количество рабочих мест в ряду:
Nвдт = (р1 - 1)\ (г1 + 1)= 5,7 = 6 ВДТ,
в) количество рядов:
Nвдт = (р2 - 1)/ (г2 + 0,5)= 1,6 = 2 ВДТ,
г) количество рабочих мест, которые можно разместить в помещении расположения окон и требований к пространственному размещению:
Nвдт = Nвдт Nвдт = 6 1,6 = 10 ВДТ,
Учитывая результаты расчетов в данном помещении можно разместить 10 рабочих мест пользователей ВДТ.
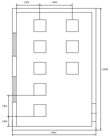
Учитывая численность работающих в помещении количестве 8 человек, устанавливаются 8 рабочих столов, расположение которых показано на рис. 4.2.
Эргономические параметры рабочей мебели пользователя ВДТ
Высота сиденья:
a1 = s5 = 506 мм,
где s5 - высота колена.
Высота подлокотников:
a2 = a1 + s4 + 5 = 743мм,
где s4 - высота локтя над сиденьем.
Высота стола:
a3 = a1 + s4 = 506 +232 = 738мм,
Верхний край монитора:
a4 = a1 +s2 = 506 + 770 = 1276мм,
где s2 - высота глаз над сиденьем.
Расстояние от глаз монитора:
a5 = s1 = 743мм,
где s1 - высота руки, вытянутой вперед.
Расстояние до переднего края стола:
a6 = s6 - 15 = 405 - 14 = 390мм,
где s6 - длина предплечья.
Высота спинки:
a7 = a1 + s3 = 506 + 586 = 1092мм,
где s 3 - высота глаз над сиденьем.
Расчет произведен согласно ДНАОН 0.00-31-99 «Правила охраны труда при эксплуатации ЭВМ».[43]
Рисунок 4.2 – Размещение рабочих мест в помещении.
4.3.3 Мероприятия по улучшению состояния воздушной среды рабочего помещения
Исследования, проведенные различными научными и медицинскими институтами и лабораториями показали, что при уменьшении отрицательного заряда на клеточной мембране, частицы крови начинают слипаться, что осложняет кровообращение, и приводит к различным заболеваниям.
При воздействии излучения с достаточной энергией на какой-либо атмосферный газ электроны внешних орбит атомов возбуждаются, ускоряются и уходят в свободный полет, оставляя положительно заряженный молекулярный ион. Отделившийся же электрон захватывается одной из нейтральных молекул, которая с этого момента становится отрицательно заряженным молекулярным ионом. Среди них самый биологически активный - легкий ион кислорода O2-, живущий от нескольких секунд до нескольких минут. Благодаря постоянному взаимодействию нейтральных молекул и разнополярно заряженных ионов, а также огромной скорости их столкновения происходит непрерывный перенос зарядов от одной газообразной молекулы к другой. Вредное влияние на состояние здоровья человека оказывают положительно заряженные аэроионы воздуха (например СО2+), т. к. они угнетают мерцательную активность бронхолегочного эпителия и понижают его проницаемость.
Отрицательные ионы воздуха O2-, NO2- повышают иммунитет организма. Расправляются легкие, становится более «текучей» кровь, излечиваются многие заболевания. Благодаря легким отрицательным аэроионам выживают больные с ожогами более 40 % поверхности кожи.
Сравнительное содержание аэроионов в воздухе различных местностей
Таблица 4.5
| Места определения концентрации | Концентрация отрицательных аэроионов в 1 см3 воздуха |
| Нормы СНИП №2152-80 на содержание отрицательных аэроионов в воздухе производственных и общественных помещений: необходимый минимум 600 ионов/см3 оптимальный уровень 3000-5000 ионов/см3 | |
| Воздух городских квартир | 50-100 ионов/см3 |
| Воздух городских улиц | 100-500 ионов/см3 |
| Лесной и морской воздух | 1000-5000 ионов/см3 |
| Воздух горных курортов | 5000-10000 ионов/см3 |
| Воздух у водопада | 10000-50000 ионов/см3 |
| Воздух после грозы | 50000-1000000 ионов/см3 |
Гигиенический сертификат Госкомэпиднадзора РФ № 4-6 ВТ/11-1 от 20 апреля 1994 года. Сертификат Госстандарта №РОСС RU АЯ 46 ВОО 647 от 30 мая 1996 года.
Принцип действия Люстры Чижевского заключается в насыщении воздуха отрицательными ионами кислорода. В свою очередь, вдыхаемые человеком аэроионы отдают свои электрические заряды эритроцитам крови, а с ними - клеткам всего организма, нормализуя обменные процессы.
Люстра Чижевского прекрасное профилактическое и лечебное средство, спасающее нас от многих заболеваний. Аппарат:
-
повышает умственную и физическую работоспособность;
-
нейтрализует «смог» положительных ионов от электронных приборов;
-
«оживляет» кондиционированный воздух, удаляет из атмосферы пыль и микроорганизмы.
Причем, в отличие от сложной аппаратуры, оздоровление с помощью этого аэроионизатора требует минимума временных и трудозатрат. Достаточно только хорошо проветрить помещение, затем включить Люстру и на четверть часа выйти из комнаты.
За это время она очистит воздух от пыли и микробов. Ну а затем вы, сидя рядом с аэроионизатором, занимаетесь своими делами. Люстра лечит вас сама.
Люстра Чижевского позволяет продлить жизнь на 40-45 %. Причем, не период старости, а молодость - физическую и творческую активность. Это доказали современные исследования, проведенные в НИИ скорой помощи им. Н.В.Склифосовского, Люстру Чижевского рекомендуется использовать не только для «оздоровления» воздуха жилых зданий и офисов, но и в помещениях, требующих осаждения пылевой взвеси, будь то фотографическая лаборатория или часовой завод.
Если же у вас в доме есть инфекционный больной - Люстра Чижевского поможет стерилизовать помещение, поскольку после получасовой обработки отрицательными ионами количество микробов в помещении уменьшается в 4-5 раз. Причем под влиянием люстры обеззараживается не только воздух, но и мокрота - больной становится неопасным для окружающих.
Лечебно-профилактическое действие уникального аэронизатора подтверждается учеными из ведущих научно-исследовательских институтов:
-
НИИ скорой помощи им. Н.В. Склифосовского;
-
Институт высшей нервной деятельности и нейрофизиологии РАН;
-
Научно-практическое объединение «Фтизиопульмонология» МЗ РФ;
-
Институт теоретической и экспериментальной биофизики РАН.
Применять Люстру Чижевского следует с осторожностью, постепенно выходя на нормальный режим работы. Продолжительность первого сеанса не должна превышать 30-ти минут. Затем, увеличивая дозировку на полчаса в день, пребывание под аэронизатором доводится до 3-4 часов в сутки.
Люстра Чижевского не дает побочных эффектов, однако людям, страдающим 3-й степенью стенокардии, 3-ей степенью атеросклероза, 2-ой и 3-ей стадиями туберкулеза, онкозаболеваниями, а также при инфаркте применять Люстру следует только после консультации с врачом.
Предложенный А.Л. Чижевским метод получил широкое распространение во всем мире. За последние годы ученые разных стран предложили еще несколько способов искусственной аэроионизации воздуха, а также различные типы аэроионизаторов. Однако ни один из них не смог «обойти» аппарат, предложенный Чижевским, чья высокая эффективность была подтверждена несколькими исследованиями.
Сейчас Люстра Чижевского представляет собой легкие изящные конструкции из токопроводящего пластика, аппарат выполняет не только оздоравливающие функции, но и вносит «изюминку» в дизайн интерьера. Безопасность эксплуатации Люстры Чижевского подтверждена НИИ гигиены им. Эрисмана и НИИ медицины труда.
Аппарат аэроионопрофилактики «Элион-132» (модель ЗОНТ) представляет собой современную технически усовершенствованную электроэффлювиальную Люстру Чижевского в настенном исполнении. Аппарат предназначен для обогащения воздуха жилых и нежилых помещений легкими аэроионами отрицательного знака. Для установки в помещениях большой площади, то есть в школьных классах, больничных палатах, офисах и производственных цехах.
Аппарат применяется в быту, сельском хозяйстве и промышленности с целью получения общего оздоровительного эффекта, а также для очистки воздуха от пыли и микроорганизмов.
Технические характеристики:
Импульсный ионный ток - 23мкА + 30 %.
Напряжение на излучателе (пиковое значение) - 30кВ + 15%.
Энергия разряда при замыкании электрода на землю - не более 350мДж.
Максимальная площадь для аэронизации аппаратом - 20м2.
Средний срок службы аппарата до списания - не менее 5 лет.
Габаритные размеры: преобразователя - 170х250х70 мм; ионизирующего электрода - диаметр 850 мм, высота 20мм.
Масса в упаковке: не более 2 кг.
Аппарат аэроионопрофилактики «Элион-132Ш» (модель ШАР) представляет собой современную технически усовершенствованную электроэффлювиальную Люстру Чижевского в настенном исполнении. Аппарат предназначен для обогащения воздуха жилых и нежилых помещений легкими аэроионами отрицательного знака. Похожая на китайский фонарик, она рассчитана на жилые комнаты среднего размера.
Аппарат применяется в быту, сельском хозяйстве и промышленности с целью получения общего оздоровительного эффекта, а также для очистки воздуха от пыли и микроорганизмов.
Технические характеристики:
Импульсный ионный ток - 23мкА + 30 %.
Напряжение на излучателе (пиковое значение) - 30кВ + 15%.
Энергия разряда при замыкании электрода на землю - не более 350мДж.
Максимальная площадь для аэронизации аппаратом - 20м2.
Средний срок службы аппарата до списания - не менее 5 лет.
Габаритные размеры: преобразователя - 170х250х70 мм; ионизирующего электрода - диаметр 400 мм, высота 20 мм.
Масса в упаковке: не более 3 кг.
А
ппарат аэроионопрофилактики «Элион-132С» (модель БРА) представляет собой современную технически усовершенствованную электроэффлювиальную Люстру Чижевского в настенном исполнении. Аппарат предназначен для обогащения воздуха жилых и нежилых помещений легкими аэроионами отрицательного знака.
Аппарат применяется в быту, сельском хозяйстве и промышленности с целью получения общего оздоровительного эффекта, а также для очистки воздуха от пыли и микроорганизмов.
Технические характеристики:
Импульсный ионный ток - 23 мкА + 30 %.
Напряжение на излучателе (пиковое значение) - 30кВ + 15%.
Энергия разряда при замыкании электрода на землю - не более 350мДж.
Максимальная площадь для аэронизации аппаратом - 10м2.
Средний срок службы аппарата до списания - не менее 5 лет.
















