125687 (690641)
Текст из файла
Исходные данные для проектирования
Выходная мощность Рвых = 1,1 кВт; число оборотов выходного вала nвых = 35; режим работы – тяжелый; срок службы привода – 3 года (рабочих дней – 300, одна смена длится 8 часов, число смен работы – 3); передаточное число редуктора Uр = 14; первая ступень редуктора – прямозубая; разработать рабочий чертеж большего шкива клиноременной передачи.
1. Выбор электродвигателя (ЭД) и расчет основных параметров для всех ступеней передачи
1) Мощность на валу электродвигателя передается всем приводом, состоящим из клиноременной передачи и редуктора. Ее значение определяем по потребной мощности:
где Р – требуемая мощность электродвигателя, кВт
Рвых – требуемая мощность на выходном валу привода, кВт
общ – общий КПД привода,
где 12, 34, 56 – КПД первой, второй и третьей ступени привода соответственно.
В соответствии с рекомендациями с. 3 [1] принимаем:
12 = 0,96
34 = 56 = 0,98
Тогда:
кВт
По табл. 1.1 (с. 4, [1]) принимаем асинхронный короткозамкнутый обдуваемый двигатель 4А80В4У3 с синхронной частотой вращения 1500 об/мин, мощностью Рдв = 1,5 кВт и асинхронной частотой 1415 об/мин.
2) Передаточное число привода определяется из выражения:
где nдв – асинхронная частота вращения вала ЭД, об/мин
nвых – заданная частота вращения выходного вала привода, об/мин.
Тогда:
Передаточное число клиноременной передачи:
3) Общее передаточное число редуктора определяется из выражения:
где UБ – передаточное число первой (быстроходной) ступени редуктора,
UТ – передаточное число второй (тихоходной) ступени редуктора.
По рекомендациям табл. 1.4 (с. 8, [1]) принимаем:
Принимаем UТ = 3,5.
Тогда:
Тогда:
– разбивка произведена точно.
4) Определяем расчетные параметры для ступеней привода.
Расчетная мощность на валах привода определяется по формулам:
РI = Рдв; РII = РI12; РIII = РII34; РIV = РIII56
где Рдв – мощность на валу электродвигателя, кВт;
12, 34, 56, – КПД соответствующих ступеней привода.
Частота вращения валов привода определяется из соотношений:
nI = nдв;
;
;
где nдв – асинхронная частота вращения вала привода, об/мин;
n I – IV – частоты вращения соответствующих валов привода, об/мин.
Крутящие моменты на валах привода определяются по формуле:
, Нм,
где Р – мощность, передаваемая валом, кВт;
n – частота вращения вала, об/мин.
Все расчеты по вышеприведенным формулам сведем в таблицу 1.1.
Таблица 1.1
| Номер вала | КПД ступени привода | Мощность на валу Р, кВт | Передаточное число U | Частота вращения вала, об/мин | Крутящий момент на валу, Нм | ||
| I | 0,96 | - | 1,5 | 2,89 | - | 1415 | 10,1 |
| II | 0,98 | 1,44 | 4 | 490 | 28,1 | ||
| III | 0,98 | 1,41 | 3,5 | 122,5 | 110 | ||
| IV | - | 1,38 | - | 35 | 376,5 | ||
2. Расчет зубчатых передач редукторов
2.1 Расчет тихоходной ступени редуктора
Расчет зубчатых передач нашего редуктора начинаем с расчета тихоходной ступени, поскольку в соосных редукторах она нагружена больше, нежели быстроходная ступень.
Суммарное время работы привода в часах определяется по формуле:
где Lгод – срок службы привода, лет;
С – число смен работы привода;
300 – количество рабочих дней в году;
8 – число рабочих часов за одну смену.
Тогда:
ч.
Выбор термической обработки заготовок
По табл. 2.2 (с. 10, [1]) выбираем материал для изготовления зубчатых колес – сталь 12ХН3А. Принимаем твердость рабочих поверхностей зубьев > НВ 350. В этом случае зубья во время работы не прирабатываются и обеспечивать разность твердостей зубьев шестерни и колеса не требуется. Выбираем термообработку – улучшение + цементация + закалка. Твердость поверхности HRC 56…63, сердцевины НВ 300…400.
Определение механических свойств материалов зубчатых колес и допускаемых напряжений
-
Средние значения твердостей зубьев:
-
Предельные характеристики материалов:
В = 1000 МПа, Т = 800 МПа (см. табл. 2.2, [1]).
-
Допускаемые напряжения для расчета передачи на контактную выносливость:
(см. табл. 2.5, [1]).
В этих формулах:
ОН – длительный предел контактной выносливости
МПа (см. табл. 2.6, [1]);
SН – коэффициент безопасности, SН = 1,2 (см. табл. 2.6, [1]).
Тогда:
МПа.
NНО – число циклов перемены напряжений, соответствующее длительному пределу выносливости; NНО = 200106 (рис. 2.1, [1]);
NНЕ – эквивалентное число циклов перемены напряжений для расчета на контактную выносливость:
КНЕ – коэффициент приведение; при тяжелом режиме работы КНЕ = 0,5 (табл. 2.4, [1]);
N – суммарное число циклов перемены напряжений
где ni – частота вращения i-го зубчатого колеса.
Для шестерни: N1 = 6021600122,5 = 158,8106 циклов
Для колеса: N2 = 602160035 = 45,4106 циклов
Таким образом,
циклов
циклов
Так как NНЕ1 < NНО и NНЕ2 < NНО, то:
МПа
МПа
В качестве
принимаем меньшее из
и
, т.е.
= 1330 МПа.
Предельное допускаемое напряжение определим по формуле:
МПа
Условие
<
выполняется.
-
Допускаемое напряжение для расчета передачи на изгибную выносливость:
(см. табл. 2.5, [1]).
В этих формулах:
ОF – длительный предел изгибной выносливости
МПа (см. табл. 2.6, [1]);
SF – коэффициент безопасности, SF = 1,55 (см. табл. 2.6, [1]).
Тогда:
МПа.
NFЕ – эквивалентное число циклов перемены напряжений для расчета на изгибную выносливость:
КFЕ – коэффициент приведение; при тяжелом режиме работы КFЕ = 0,2 (табл. 2.4, [1]);
Таким образом,
Для шестерни:
циклов
Для колеса:
циклов
Так как NFЕ1 > 4106 циклов и NFЕ2 > 4106 циклов, то принимаем NFЕ1 = NFЕ2 = 4106 циклов.
Тогда:
МПа
Так как
МПа (табл. 2.6, [1]), то условие
<
выполняется.
Определение коэффициента нагрузки
По рекомендациям стр. 21 и 24 ([1]) принимаем для 7–9 степени точности зубчатых колес и соосной схемы редуктора:
-
коэффициент нагрузки при расчете на контактную выносливость
= 1,75; -
коэффициент нагрузки при расчете на изгибную выносливость
= 1,8.
Проектирование зубчатой передачи
-
Определение предварительного значения межосевого расстояния производим по формуле:
, мм
Здесь: Т2 – номинальный вращающий момент на валу колеса, Нм;
U – передаточное число;
КН – коэффициент расчета на контактную выносливость;
ba – коэффициент ширины зубчатых колес передачи, ba = 0,4 (см. табл. 2.9 с. 18, [1]);
– допускаемое напряжение при расчете на контактную выносливость, МПа.
Тогда:
мм
По табл. 3.2 (с. 22, [1]) принимаем аw = 100 мм.
-
Определение рабочей ширины зубчатых колес.
Рабочая ширина колеса:
мм (в соответствии с ГОСТ 6636–69).
Ширина шестерни: b1 = b2 + (2…4) = 40 + 4 = 44 мм. По ГОСТ 6636–69 принимаем b1 = 45 мм.
-
Определение ориентировочного значения модуля производим по формуле:
m = (0,01…0,02)аw = 1,0…2,0 мм.
По табл. 3.3 (с. 22, [1]) принимаем m = 2 мм.
-
Суммарное число зубьев:
-
Число зубьев зубчатых колес:
шестерни
, принимаем z1 = 22
колеса
= 100 – 22 = 78
-
Определяем фактическое значение передаточного числа:
Ошибка:
% = 1,4% < 4%, что допустимо.
Проверка зубьев на выносливость при изгибе
-
Проверка колеса на выносливость при изгибе производится по формуле:
где YF2 – коэффициент, учитывающий форму зуба колеса.
По табл. 3.4 (с. 25, [1]) для несмещенных колес YF2 = 3,6.
Тогда:
МПа <
МПа
-
Напряжение в опасном сечении зуба шестерни:
где YF1 – коэффициент, учитывающий форму зуба шестерни.
По табл. 3.4 (с. 25, [1]) для несмещенных колес YF1 = 3,9.
Тогда:
МПа <
МПа
Определение основных параметров зубчатого зацепления
-
Диаметры делительных окружностей:
мм
мм
Проверка:
мм – равенство выполняется.
-
Диаметры окружностей вершин:
мм
мм
-
Диаметры окружностей впадин:
мм
мм
Силы, действующие в зацеплении
-
Окружная сила:
Н
-
Радиальная сила:
Н
2.2 Расчет быстроходной ступени редуктора
Выбор термической обработки заготовок
Для уменьшения сортамента материала, применяемого при изготовлении редуктора, для изготовления зубчатых колес быстроходной ступени редуктора применяем ту же сталь, что и тихоходной ступени редуктора, а именно сталь 12ХН3А с цементацией после улучшения и закалки.
Определение механических свойств материалов зубчатых колес и допускаемых напряжений
-
Средние значения твердостей зубьев:
(см. выше)
-
Предельные характеристики материалов:
В = 1000 МПа, Т = 800 МПа (см. табл. 2.2, [1]).
-
Допускаемые напряжения для расчета передачи на контактную выносливость:
(см. табл. 2.5, [1]).
В этих формулах:
ОН – длительный предел контактной выносливости
МПа (см. табл. 2.6, [1]);
SН – коэффициент безопасности, SН = 1,2 (см. табл. 2.6, [1]).
Тогда:
МПа.
NНО – число циклов перемены напряжений, соответствующее длительному пределу выносливости; NНО = 200106 (рис. 2.1, [1]);
NНЕ – эквивалентное число циклов перемены напряжений для расчета на контактную выносливость:
КНЕ – коэффициент приведение; при тяжелом режиме работы КНЕ = 0,5 (табл. 2.4, [1]);
N – суммарное число циклов перемены напряжений
где ni – частота вращения i-го зубчатого колеса.
Для шестерни: N1 = 6021600490 = 635106 циклов
Для колеса: N2 = 6021600122,5 = 158,8106 циклов
Таким образом,
циклов
циклов
Так как NНЕ1 > NНО, то и NНЕ1 = NНО = 200106, и тогда:
МПа
МПа
В качестве
принимаем меньшее из
и
, т.е.
= 1330 МПа.
МПа.
Условие
<
выполняется.
-
Допускаемое напряжение для расчета передачи на изгибную выносливость:
(см. табл. 2.5, [1]).
В этих формулах:
ОF – длительный предел изгибной выносливости
МПа (см. табл. 2.6, [1]);
SF – коэффициент безопасности, SF = 1,55 (см. табл. 2.6, [1]).
Тогда:
МПа.
NFЕ – эквивалентное число циклов перемены напряжений для расчета на изгибную выносливость:
КFЕ – коэффициент приведение; при тяжелом режиме работы КFЕ = 0,2 (табл. 2.4, [1]);
Таким образом,
Для шестерни:
циклов
Для колеса:
циклов
Так как NFЕ1 > 4106 циклов и NFЕ2 > 4106 циклов, то принимаем NFЕ1 = NFЕ2 = 4106 циклов.
Тогда:
МПа
Так как
МПа (табл. 2.6, [1]), то условие
<
выполняется.
Определение коэффициента нагрузки
-
Определяем коэффициент ширины быстроходной ступени по формуле:
где U – передаточное число быстроходной ступени, U = 4;
аw – межосевое расстояние, полученное при расчете тихоходной ступени, аw = 100 мм;
КН – коэффициент концентрации нагрузки при расчете на контактную выносливость. По рекомендациям на с. 21 ([1]), КН = 1,75;
Т2 – крутящий момент на валу шестерни быстроходной ступени, Т2 = 110 Нм.
Подставляя значения в формулу, получаем:
Принимаем ba = 0,2 (см. рекомендации с. 26, [1]).
Коэффициент нагрузки на изгибную выносливость принимаем по рекомендациям на с. 24 ([1]) КF = 1,8.
Проектирование зубчатой передачи
-
Межосевое расстояние получаем из расчета тихоходной ступени редуктора:
аw = 100 мм.
-
Определение рабочей ширины зубчатых колес.
Рабочая ширина колеса:
мм. По ГОСТ 6636–69 принимаем b2 = 20 мм.
Ширина шестерни: b1 = b2 + (2…4) = 20 + 2 = 22 мм (в соответствии с ГОСТ 6636–69).
-
Определение ориентировочного значения модуля производим по формуле:
m = (0,01…0,02)аw = 1,0…2,0 мм.
По табл. 3.3 (с. 22, [1]) принимаем m = 2 мм.
-
Суммарное число зубьев:
-
Число зубьев зубчатых колес:
шестерни
, принимаем z1 = 20
колеса
= 100 – 20 = 80
-
Определяем фактическое значение передаточного числа:
Проверка зубьев на выносливость при изгибе
-
Проверка колеса на выносливость при изгибе производится по формуле:
где YF2 – коэффициент, учитывающий форму зуба колеса.
По табл. 3.4 (с. 25, [1]) для несмещенных колес YF2 = 3,6.
Тогда:
МПа <
МПа
-
Напряжение в опасном сечении зуба шестерни:
где YF1 – коэффициент, учитывающий форму зуба шестерни.
По табл. 3.4 (с. 25, [1]) для несмещенных колес YF1 = 3,9.
Тогда:
МПа <
МПа
Определение основных параметров зубчатого зацепления
-
Диаметры делительных окружностей:
мм
мм
Проверка:
мм – равенство выполняется.
-
Диаметры окружностей вершин:
мм
мм
-
Диаметры окружностей впадин:
мм
мм
Силы, действующие в зацеплении
-
Окружная сила:
Н
-
Радиальная сила:
Н
3. Проектирование ременной передачи
Ременная передача – это вид механической передачи, осуществляемой при помощи ремня, натянутого на шкивы. Передача крутящего момента происходит посредством силы трения, возникающей между шкивами и ремнем при его натяжении.
Клиноременная передача – частный случай ременной передачи с ремнем в сечении трапецеидальной формы (клиновых). Благодаря повышенному сцеплению со шкивами, обусловленному эффектом клина, несущая способность клиновых ременных передач выше, чем плоскоременных. Поэтому в нашем курсовом проекте мы будем использовать передачу с клиновым ремнем.
3.1 Расчет ременной передачи
-
Выбираем сечение ремня.
По графику рис. 11 ([2]) выбираем ремень сечением А с размерами (см. табл. 1, [2]): Wр = 11 мм, W = 13 мм, Т0 = 8 мм, площадью сечения А = 81 мм2, масса одного метра длины ремня = 0,105 кг/м, минимальный диаметр ведущего шкива dmin = 90 мм.
-
Определяем диаметры шкивов.
С целью увеличения рабочего ресурса передачи принимаем d1 > dmin. Из стандартного ряда ближайшее большее значение d1 = 100 мм. Расчетный диаметр ведомого (большего) шкива:
где – коэффициент скольжения, = 0,01;
U – передаточное число клиноременной передачи, U = 2,89 (см. раздел 1 КП).
Тогда:
мм
Округляем d2 до ближайшего стандартного значения. Тогда: d2 = 280 мм.
Уточняем передаточное число клиноременной передачи:
Отличие от заданного передаточного числа:
% = 2,1% < 5%, что допустимо.
3) Межосевое расстояние ременной передачи:
мм
мм
Принимаем промежуточное стандартное значение а = 300 мм.
4) Определяем расчетную длину ремня:
мм
Ближайшее стандартное значение по табл. 1 ([2]): Lр = 1250 мм.
5) Уточняем межосевое расстояние:
где
мм
мм
Тогда:
мм
Принимаем ауточн = 315 мм.
6) Для установки и замены ремней предусматриваем возможность уменьшения а на 3% (т.е. на 0,03315 = 9,5 мм). Для компенсации удлинения ремней во время эксплуатации предусматриваем возможность увеличения а на 5,5% (т.е. на 0,055315 = 17,3 мм).
7) Определяем угол обхвата ремнями ведущего шкива:
8) Для определения числа ремней определяем коэффициенты: угла обхвата С = 0,91 (табл. 6, с. 22, [2]); длины ремня СL = 0,96 (табл. 8, с. 23, [2], Lр = 1250 мм); режима работы Ср = 1,6 (табл. 10, с. 24, [2], режим тяжелый, число смен работы – три); числа ремней Сz = 0,95 (табл. 4, с. 20, [2], приняв ориентировочно z = 2…3).
По табл. 7 (с. 22, [2]) находим номинальную мощность Р0 = 1,494 кВт, передаваемую одним ремнем сечением А с расчетной длиной Lр = 2240 мм, при d1 = 100 мм, Uуточн = 2,83 и n1 = 1415 об/мин.
Определяем расчетную мощность, передаваемую одним ремнем:
кВт.
Определяем число ремней:
Принимаем число ремней z = 2.
9) Окружная скорость ремней:
м/с
10) Начальное натяжение каждой ветви одного ремня:
Н
где = 0,105 – коэффициент центробежных сил (табл. 11, с. 24, [2]).
11) Силы, действующие на валы и опоры:
Н
12) Средний рабочий ресурс принятых ремней:
ч
где Тср = 2000 ч (ресурс работы ремней по ГОСТ 1284.2–89);
К1 = 0,5 – коэффициент для тяжелого режима работы;
К2 = 1 – коэффициент климатических условий.
13) Суммарное число ремней z, необходимое на весь срок службы привода Lпр = 21 600 ч:
шт.
14) По результатам расчетов принят:
Ремень А – 1250 Ш ГОСТ 1284.1–80 – ГОСТ 1284.3–80.
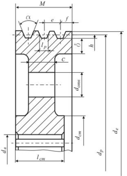
3.2 Конструирование шкива
В соответствии с заданием необходимо сконструировать ведомый (больший) шкив.
Эскиз шкива приведен на рис. 2.
Характеристики
Тип файла документ
Документы такого типа открываются такими программами, как Microsoft Office Word на компьютерах Windows, Apple Pages на компьютерах Mac, Open Office - бесплатная альтернатива на различных платформах, в том числе Linux. Наиболее простым и современным решением будут Google документы, так как открываются онлайн без скачивания прямо в браузере на любой платформе. Существуют российские качественные аналоги, например от Яндекса.
Будьте внимательны на мобильных устройствах, так как там используются упрощённый функционал даже в официальном приложении от Microsoft, поэтому для просмотра скачивайте PDF-версию. А если нужно редактировать файл, то используйте оригинальный файл.
Файлы такого типа обычно разбиты на страницы, а текст может быть форматированным (жирный, курсив, выбор шрифта, таблицы и т.п.), а также в него можно добавлять изображения. Формат идеально подходит для рефератов, докладов и РПЗ курсовых проектов, которые необходимо распечатать. Кстати перед печатью также сохраняйте файл в PDF, так как принтер может начудить со шрифтами.
= 1,75;
= 1,8.














