125081 (690265)
Текст из файла
ВВЕДЕНИЕ
Барабанные печи применяются для обжига каустизационного шлама при регенерации извести. По конструкции эти печи сходи с печами, используемыми для получения цемента. Главными параметрами, определяющими производительность печи, являются внутренний диаметр корпуса и его длина: диаметр 6 м., длина 70...170 м., масса печи 250...1250 т.
В химической промышленности для обжига, прокалки или разложения исходных и промежуточных продуктов широко применяются печи различных конструкций и размеров. Наибольшее распространение из них получили барабанные вращающиеся печи.
Вращающиеся барабанные печи относятся к типу горизонтальных аппаратов. Горизонтальные аппараты могут быть смонтированы одним или спаренными кранами. Способ подъема и грузоподъёмность кранов выбирается в зависимости от размера и массы аппарата, высоты и конфигурации фундамента или постамента под аппарат, наличия расположенных рядом строительных конструкций и смонтированного оборудования. Основные схемы подъёма горизонтальных аппаратов одним стреловым краном приведены на рис. 1 схемы 1а и 1б применяют в том случае, когда возможен проезд крана между фундаментами монтируемого аппарата. Наиболее целесообразно уложить аппарат перед подъёмом в положение, близкое к проектному 1а таким образом, чтобы центр его тяжести находился на одной вертикали с грузоподъёмным полиспастом крана, а грузоподъёмность крана на данном вылете стрелы соответствовала массе поднимаемого аппарата.
Рис. 1.Схемы подъёма горизонтальных аппаратов одним краном - положения аппаратов
На схеме 16 показан подъём горизонтальных аппаратов с перемещением крана при минимальном вылете стрелы или при маневрировании стрелы в пределах грузоподъёмности крана.
Схему 2 применяют при невозможности заезда крана между фундаментами аппарата; схему 2а - при установке аппаратов на низкие фундаменты, при этом кран необходимо передвигать на новую стоянку после установки по одному аппарату в каждом ряду. При установке аппаратов по схеме 2б необходимо следить за тем, чтобы стрела крана не соприкасалась с постаментом, а зазор между ними не превышал 0,2 м. Для предотвращения соприкосновения поднимаемого аппарата с расположенными рядом конструкциями и стрелой крана к днищам аппаратов закрепляют оттяжки из пенькового каната, с помощью которых аппарат направляют в процессе подъёма.
Горизонтальные аппараты, особенно большой массы и при подъёме на значительную высоту, часто монтируют при помощи двух кранов. На рис.2 изображены наиболее распространённые схемы подъёма аппарата с помощью двух кранов.
Для обеспечения равномерных нагрузок на краны аппараты рекомендуется стропить при условии максимального удаления мест строповки аппарата от кранов, т.е. в районе днищ аппаратов с помощью кольцевых стропов, ложных штуцеров или с использованием проектных люков или штуцеров. При невозможности значительного удаления мест строповки аппарата от кранов (рис. 2 г) необходимо применить балансирную траверсу.
Рис.2.Схемы подъёма горизонтальных аппаратов двумя кранами - положения аппаратов
На рисунке 2 а, показаны наиболее благоприятные условия работы кранов при монтаже аппаратов на любую высоту в пределах характеристики кранов. На рисунке 2 о, показан монтаж, когда установка одного из спаренных кранов с внешней стороны фундаментов невозможна. В этих случаях монтаж аппаратов производится только маневрированием стрелы крана. На рисунке 2 в, показан подъём аппаратов при невозможности расположения кранов с внешней стороны фундаментов и проезда между фундаментами. В этом случае монтаж аппаратов производится за счёт увеличения вылета стрелы кранов или перемещения кранов с поднятым аппаратом в пределах грузовой характеристики кранов.
На рисунке 2 г, приведены наиболее неблагоприятные условия работы кранов при монтаже аппаратов. После строповки аппаратов с помощью балансирной траверсы приподнятый аппарат перемещается на постамент поочерёдным передвижением кранов на встречу друг другу и поворачиванием стрелы в сторону постаментов без увеличения вылета стрелы. Подъём аппарата по этой схеме требует особой синхронности работы кранов, а также исключительно четкой организации работ.
При подъёме метотодом скольжения оборудование выкладывается в исходном горизонтальном положении вершиной к фундаменту и стропится за неё или за образующую между центром массы и вершиной. Краны устанавливаются непосредственно у фундамента так, чтобы в процессе подъёма и установки оборудования на фундамент вылет крюка был минимальным. Во избежание отклонения грузовых полиспастов кранов от вертикали основание оборудования подтаскивается на санях или тележке к фундаменту одновременно с подъёмом верхней части оборудования.
Метод скольжения имеет две разновидности: подъём оборудования с отрывом нижней части от земли (опоры) и без её отрыва. При установке оборудования методом скольжения с отрывом от земли краны подбирают так. Чтобы их грузоподъёмность была не меньше массы оборудования, а высота подъёма крюков независимо от места строповки обеспечивала подъём основания оборудования выше фундамента. При этом следует учитывать наличие достаточного подстрелового пространства монтажных кранов для размещения поднятого оборудования. Максимальные нагрузки на краны возникают на завершающей стадии подъёма при отрыве оборудования от земли и соответствуют его массе.
При использовании метода скольжения без отрыва от земли грузоподъёмность кранов значительно меньше, чем масса оборудования, и определяется специальным расчетом.
1 ОБЩАЯ ЧАСТЬ
1.1 Основные и технические и монтажные характеристики и возможности транспортировки барабанной печи на монтажную площадку
Барабанные вращающиеся печи, применяемые в химической промышленности для обжига твердых веществ, представляют собой стальной цилиндрический кожух, длиной до 180 м., футерованный изнутри огнеупорными материалами. Вес печи достигает сотен тонн. На кожух печи надето два или несколько бандажей, посредством которых он опирается на ролики. Печь приводится во вращение от электродвигателя через привод, подвенцовую и венцовую шестерни. Печь устанавливается под углом 2-3 к горизонту. Основными требованиями, предъявляемыми к смонтированной барабанной печи, являются: прямолинейность продольной оси печи, лёгкость её вращения, наличие проектных зазоров для компенсации теплового расширения между бандажами и корпусом печи, отсутствие биения корпуса печи и зубчатого венца при вращении печи, отсутствие тенденции к смещению печи вдоль продольной оси при её вращении, надёжное уплотнение в листах примыкания концов барабана печи к неподвижным частям (особенно в тех случаях, когда при работе печи выделяются вредные газы)
Рис.3. Габаритные ограничения перевозок аппаратов.
1-3 верхние границы перевозок водным, автодорожным и железнодорожным транспортом
Перевозка оборудования по железной дороге наиболее экономична, так как заводы-изготовители и строящиеся заводы связаны общей сетью железных дорог. Но ж/д транспортом можно перевезти оборудование определённых габаритов. Для перевозки блоков печи этот вид транспортировки не подходит.
Для транспортировки блоков печи выбираем автопоезд.
Габаритами погрузки называют предельное поперечное, перпендикулярное оси пути очертание, внутри которого должен помещаться погруженный на открытый подвижный состав груз (с учетом упаковки и крепления). При этом подвижной состав должен находиться на прямом горизонтальном пути и продольные оси подвижного состава должны совмещаться в одной вертикальной плоскости.
Тяжеловесное крупногабаритное оборудование по автодорогам перевозят на специальных транспортных средствах - прицепах-тяжеловозах, состоящих из отдельных тележек.
Транспортные средства должны выбираться или разрабатываться исходя из следующих условий:
-
Удельное давление на поверхности контакта движителей транспортных средств (колес или гусениц) с грунтом должно быть не больше 0,65 МПа.
-
В соответствии с весовыми и габаритными ограничениями автомобильных дорог нагрузка (вес) на одиночную наиболее нагруженную ось при расстоянии между осями 3 м и более не должна быть больше 100 кН. Нагрузки на оси предусматриваются для транспортных средств, перемещающихся со скоростью 80-100 км/ч, а тяжеловесное оборудование перевозят с максимальной скоростью 25-30м/ч. Поэтому можно нагрузки на оси значительно увеличивать. Эти нагрузки лимитируются фактически допускаемой нагрузкой на колесо и числом колес на оси.
-
Средствами перевозки должны быть автопоезда, состоящие из одного или нескольких тягачей и тележек, на которых закрепляется оборудование. Габариты этих поездов определяются их проходимостью по дорогам, как на прямых участках, так и на поворотах, т.е. габаритным коридором. Различают дороги общей сети и промышленных предприятий. Тяжеловесное оборудование приходится перевозить и по тем, и другим дорогам.
Высота перевозимого груза ограничена различными воздушными линиями, проходящими над дорогой, и проходами под мостом.
Перемещение аппаратов водным путем имеет ряд преимуществ. Этим видом транспорта можно перевозить аппараты длиной более 50 м, диаметром более 4,2 м независимо от массы. При движении тяжеловесных аппаратов по автодороге на пути следования могут встретиться мосты, которые необходимо усилить, прежде чем везти по ним аппарат, или необходимо строить временные переходы, что требует больших трудовых затрат. Всего этого не нужно при перевозке аппарата водным путем.
Аппараты водным путем можно перевозить на палубе грузового судна, на барже и на плаву. Наиболее сложной операцией при транспортировании водным путем является погрузка аппаратов на судно и баржу и разгрузка с них.
Все более широкое применение получают для монтажа в труднодоступных местах вертолеты. Уже сейчас имеются вертолеты, позволяющие поднимать грузы массой до 20 т. С помощью вертолетов монтируют тяжеловесные детали доменных печей, доставляют в труднодоступные места и устанавливают в проектное положение бурильное и технологическое оборудование газо-нефтедобывающих предприятий.
1.2 Подготовка к монтажу барабанной печи
1.2.1 Разработка ситуационного плана монтажной площадки
В состав ППР входит монтажный стройгенплан, в котором предусматриваются временные железнодорожные и автомобильные пути для подачи материалов и оборудования в зону монтажа, площадки для приёма, укрупнительной сборки в монтажные блоки оборудования, конструкций и трубопроводов, место установки основных монтажных механизмов и пути их передвижения. В стройгенплане также указано место размещения бытовок для рабочих, инструментальных и различных складских помещений и площадок для хранения материалов, а также прорабских и бригадных передвижных помещений.
Оборудование вращающейся печи подаётся под кран КМК-120 на автомобилях с прицепом или без таковых. Часть обечаек выгружается вблизи зоны действия козлового крана с перевалкой при помощи гусеничного крана СКГ -50.
Пересечение пути козлового крана с автодорогой должно быть выполнено вполне надёжно, чтобы не допустить смещения рельса.
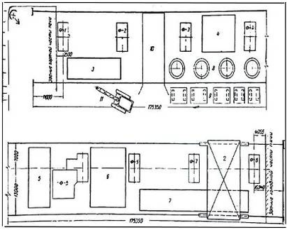
Генеральный план монтажный площадки представлен на рис.7
Механическая мастерская, площадка изготовления технологических металлоконструкций, контора, кладовая и другие временные сооружения монтажного участка находятся вне пределов монтажной площадки печи.
На каждом чертеже наносят:
1. здания и сооружения строительных объектов;
2. железнодорожные пути и безрельсовые дороги (постоянные и временные), по которым оборудование подаётся на строительную площадку;
3. приобъектные площадки для хранения оборудования, сборки и других операций;
4. расположение основных монтажных механизмов;
5. подсобные помещения монтажного участка (мастерскую, кладовую, помещения для рабочих и т.п.)
6. энергетические коммуникации (воздух, пар, электроэнергия) и сети телефонной связи.
Проектом организации строительства (ПОС) предусматривается единое складское хозяйство для всего строительства цементного завода с тепло-холодным складом, навесами и открытыми площадками для хранения оборудования.
Место для установки монтажных механизмов должно быть выбрано так, чтобы в процессе производства работ не возникала необходимость их перестанавливать. Механизмы не следует устанавливать на месте будущих сооружений и железнодорожных путей; расположение их относительно возводимых сооружений не должно мешать возведению этих сооружений. Коммуникации сжатого воздуха, воды, силового и осветительного электроснабжения, а также телефонной связи при решении генерального плана должны быть осуществлены с учётом потребности всех организаций, участвующих в строительстве. Монтажники должны определить свои потребности и своевременно заявить о них. Электроснабжение строительной площадки обычно находится в руках генерального подрядчика. Монтажникам должны быть предоставлены определённые пункты питания для подключения монтажных механизмов и сварочных аппаратов. Снабжение энергией крупных механизмов должно быть решено в каждом случае особо.
Организация строительной площадки, участков работ и рабочих мест должна обеспечивать безопасность труда работающих на всех этапах выполнения работ.
Все территориально обособленные участки должны быть обеспечены телефонной связью или радиосвязью.
Характеристики
Тип файла документ
Документы такого типа открываются такими программами, как Microsoft Office Word на компьютерах Windows, Apple Pages на компьютерах Mac, Open Office - бесплатная альтернатива на различных платформах, в том числе Linux. Наиболее простым и современным решением будут Google документы, так как открываются онлайн без скачивания прямо в браузере на любой платформе. Существуют российские качественные аналоги, например от Яндекса.
Будьте внимательны на мобильных устройствах, так как там используются упрощённый функционал даже в официальном приложении от Microsoft, поэтому для просмотра скачивайте PDF-версию. А если нужно редактировать файл, то используйте оригинальный файл.
Файлы такого типа обычно разбиты на страницы, а текст может быть форматированным (жирный, курсив, выбор шрифта, таблицы и т.п.), а также в него можно добавлять изображения. Формат идеально подходит для рефератов, докладов и РПЗ курсовых проектов, которые необходимо распечатать. Кстати перед печатью также сохраняйте файл в PDF, так как принтер может начудить со шрифтами.















