123802 (689623), страница 2
Текст из файла (страница 2)
Световые приборы обычно выбирают по трем категориям:
-
конструктивному исполнению;
-
светотехническим характеристикам;
-
экономическим показателям.
От конструктивного исполнения СП зависит их надежность и долговечность в данных условиях среды, безопасность в отношении пожара, взрыва и поражения электрическим током, а также удобство обслуживания. В практике проектирования решение этой задачи сводится к выбору степени защиты световых приборов IP от воздействия окружающей среды.
Распределение светового потока в верхнюю и нижнюю полусферы окружающего пространства, а также форма кривой силы света являются основными показателями, определяющими качество освещения. С увеличением доли потока, направляемого световым прибором в верхнюю полусферу, смягчаются и исчезают тени, уменьшается блескость, улучшаются условия освещения различно ориентированных в пространстве поверхностей, но при этом всегда возрастает мощность осветительной установки. Поэтому в производственных помещениях следует применять световые приборы класса П и Н, в общественных – класса Н и реже Р. Выбор светового прибора с той или иной кривой силы света зависит от характеристики помещения. Для очень высоких помещений наиболее выгодны светильники с концентрированной кривой силы света К, а по мере уменьшения высоты – с кривыми Г и Д. В помещениях, где рабочие поверхности находятся в произвольно расположенных или вертикальных плоскостях, применяются светильники с кривой силы света Л и М. Для большинства сельскохозяйственных помещений выбираются световые приборы с кривыми силы света М, Д и Г.
Основным фактором, определяющим энергетическую эффективность для данного типа источника света, является коэффициент использования светового потока, который зависит от КПД светильника и, в наибольшей степени, от формы кривой силы света. Таким образом, нужно выбирать световые приборы с наибольшим КПД и более концентрированной (в пределах светотехнических требований) кривой силы света.
Наиболее целесообразный тип светового прибора должен выбираться на основе полного технико-экономического сопоставления различных возможных вариантов.
Таблица 3 – Выбор светового прибора [1, стр. 240].
| IP 53-54 | КСС | КПД |
| ЛСП 16 | ЛСП 16 (Д1) | ЛСП 16 (60%) |
| ПВЛ П | ПВЛ П (Д1) | ПВЛ П (65%) |
| ЛСП 13 | ЛСП 13 (Д1) | ЛСП 13 (80%) |
| ЛВП 04 | ЛВП 04 (Г1) | ЛВП 04 (45%) |
| ЛВП 31 | ЛВП 31 (Г1) | ЛВП 31 (45%) |
Выберем световой прибор ЛСП 13.
1.3.2 Размещение световых приборов
Существует два вида размещения световых приборов: равномерное и локализованное. При локализованном способе размещения вопрос выбора места расположения светового прибора должен решаться в каждом случае индивидуально на основе размещения освещаемых объектов. При равномерном размещении световых приборов следует руководствоваться рядом общих положений. Световые приборы обычно размещают по вершинам квадратов или ромбов, оптимальный размер стороны которых определяется по формуле:
, (1)
где Э и С – относительные светотехническое и энергетическое наивыгоднейшее расстояние между светильниками; НР – расчетная высота осветительной установки, м.
Численные значения Э и С зависят от типа кривой силы света [2, с. 12].
, (2)
где Н0 – высота помещения, м;
hСВ – высота свеса светильника, м;
hР – высота рабочей поверхности от пола, м.
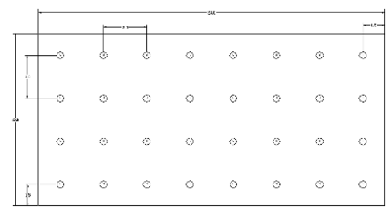
Крайние светильники устанавливаются на расстоянии (0,5…0,7)L от стены. Светильники с люминесцентными лампами располагаются обычно рядами параллельно стенам с окнами или длинной стороне помещения. В зависимости от уровня нормированной освещенности светильники располагаются непрерывными рядами или рядами с разрывами. Расстояние между рядами определяется так же, как и в случае одинарных светильников по формуле (1).
Так как световой прибор ЛСП 13 имеет кривую силы света типа Д1, то
с=1,4 и э=1,6.
м.
м.
Определим количество световых приборов в помещении:
.
.
.
Согласно расчету в данном помещении необходимо разместить 32 световых приборов данного типа.
Рисунок 1 – Помещение для стрижки овец
1.3.3 Определение мощности осветительной установки
Для решения этой задачи в практике применяют три метода: точечный, метод коэффициента использования светового потока и метод удельной мощности.
Точечный метод применяется для расчета общего равномерного и локализованного освещения помещений и открытых пространств, а также местного освещения при любом расположении освещаемых поверхностей.
Метод коэффициента использования светового потока применяется для общего равномерного освещения горизонтальных поверхностей только закрытых помещений со светлыми ограждающими поверхностями. Когда нормирована средняя освещенность, его можно применять и для расчета наружного освещения.
Метод удельной мощности является упрощенным методом коэффициента использования и рекомендуется для расчета освещения второстепенных помещений, а также осветительной нагрузки, когда расчет освещения не входит в задание проекта.
Помещение для стрижки овец рассчитываем методом коэффициента использования, так как этот метод используется для расчета закрытых помещений при общей равномерной системе освещения.
Определим индекс помещения по следующей формуле:
, (3)
где а, b – длина и ширина помещения, м.
.
По справочной литературе [2] определим коэффициент использования светового потока. Этот коэффициент учитывает долю светового потока генерируемого источником света, доходящую до рабочей поверхности. Коэффициент использования светового потока СП прямо пропорционален КПД светильника. Он зависит от кривой силы света светильника, возрастает с увеличением степени концентрации светового потока, с увеличением площади помещения и уменьшением расчетной высоты, с увеличением коэффициента отражения ограждающих конструкций; убывает по мере удаления формы помещения от квадрата, так как при этом уменьшается среднее расстояние светильника от стен и увеличивается доля светового потока, падающего на стены.
Вычислим световой поток лампы в светильнике по следующей формуле:
Фр = Енор·А·Кз·Z / N·ηоу·ηсв, (4)
где А – площадь помещения, м2
Z = 1,1 – коэффициент неравномерности;
N – число светильников.
К3 – коэффициент запаса, К=1,3.
лм.
лм.
По численному значению потока и каталожным данным выберем типоразмер стандартной лампы и ее мощность: ЛБ – 20 - 1 Фк=1200 лм.
Рассчитаем отклонение каталожного потока от расчетного по формуле:
(5)
.
- отклонение находится в допустимых пределах.
Мощность светильника: Рл = 20 Вт. Рсв = 40 Вт.
Определим удельную мощность осветительной установки по формуле:
Руд = Рл∙N/A, Вт/м2 (6)
Руд = 40·32/288 = 4,44 Вт/м2.
1.4 Помещение №2 (Помещение классировки и прессования шерсти)
Вид освещения: рабочее; система: общая – равномерная.
Нормированная освещенность Енор = 200 лк, при ГРЛ.
Коэффициент запаса для с. – х. помещений при ЛН: Кз = 1,3, выбирается для того, чтобы освещенность не снижалась ниже нормируемого значения.
Выбор светового прибора:
По конструктивному исполнению выбираем светильник со степенью защиты IP20, так как среда в помещении сухая. По светотехническим характеристикам световой прибор выбирается с кривой силы света М или Д.
Выбираем светильник: ЛСП 13 с КСС – «Д» ηобщ = 80%
1.4.1 Определяем расчетную высоту осветительной установки
Нр = Н0 – hсв – hр
где Н0 = 2,4 – высота помещения, м.
hсв = 0 – высота свеса светильника, м.
hр = 0,8 – высота рабочей поверхности от пола, м.
Нр = 2,4-0-0,8 = 1,6 м.
1.4.2 Найдем оптимальные расстояния между светильниками
с·Нр L э·Нр,
где с и э – относительное светотехническое и энергетическое наивыгоднейшее расстояние между светильниками.
Нр – расчетная высота осветительной установки, м.
с = 1,4; э = 1,6 для КСС – «Д».
2,24м ≤ L ≤ 2,56м.
Определим количество световых приборов в помещении:
.
.
.
Рисунок 2 – Помещение классировки и прессования шерсти
1.4.3 Определение мощности светового прибора
Помещение классировки и прессования шерсти рассчитываем методом коэффициента использования, так как этот метод используется для расчета закрытых помещений при общей равномерной системе освещения.
Коэффициенты отражения ограждающих конструкций:
ρпотолка = 70%; ρстен = 50%; ρпола = 30%.
Индекс помещения:
i = a·b/Hр·(a + b)
где a, b – длина и ширина помещения, м.
i = 9·12 / 1,6·(9+12) = 3,21
Коэффициент использования светового потока осветительной установки: ηоу = 0,47.
Этот коэффициент учитывает долю светового потока генерируемого источником света, доходящую до рабочей поверхности.
Световой поток светильника:
Фр = Енор·А·Кз·Z / N·ηоу·ηсв
где А – площадь помещения, м2;
Z = 1,1 – коэффициент неравномерности;
N – число светильников.
Фсв = 200·108·1,3·1,1 / 20·0,79·0,75 = 2444 лм.
Фл =2444/2=1222 лм
По численному значению потока и каталожным данным выбираем лампу:
ЛЖ – 40 с Фк = 1450 лм.
Определим отклонение расчетного светового потока от каталожного:
-0,1 ≤ (Фк – Фр)/Фр ≤ +0,2
(1450-1222)/1222 = 0,187 – отклонение находится в допустимых пределах.
Мощность светильника: Рл = 40 Вт. Рсв = 80 Вт.
Удельная мощность:
Руд = Рсв·N/A, Вт/м2;
Руд = 80·20/108 = 14,81 Вт/м2;
1.5 Помещение №3 (Лаборатория)
Вид освещения: рабочее; система: общая – равномерная.
Нормированная освещенность Енор = 10 лк, при лампах накаливания.
Коэффициент запаса для с.–х. помещений при ГРЛ: Кз = 1,3, выбирается для того, чтобы освещенность не снижалась ниже нормируемого значения.
Выбор светового прибора:















